Найти в Дзене
Диана Исмайлова ✨

Проект домика для базы отдыха

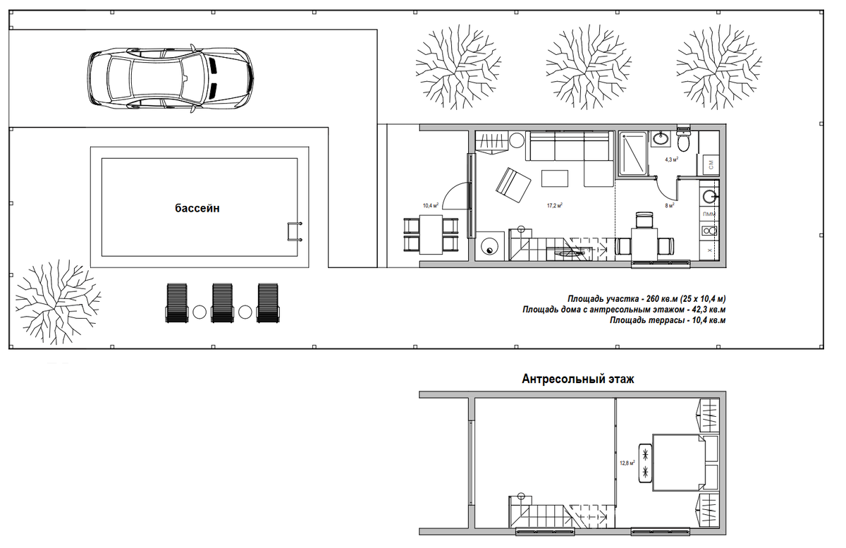
Этот проект разработан для базы отдыха. Дом рассчитан на размещение 2-4 гостей. В нём предусмотрено всё необходимое для комфортного краткосрочного проживания: просторная гостиная, мини-кухня, санузел с душевой и стиральной машиной, полноценная спальня на антресольном этаже. План дома с привязкой к участку: Экстерьер дома: И немного интерьера: Перед домом может быть индивидуальный бассейн или площадка для барбекю.  Возле дома легко смогут припарковаться два автомобиля. С нетерпением ждём начала реализации проекта🙏🏼😍 А вы бы хотели остановиться в таком домике на выходные? Или может даже на недельку?

  • Общая площадь: 52,7 кв.м
  • Местонахождение: Астраханская область 
  • Назначение: домики для базы отдыха

Этот проект разработан для базы отдыха. Дом рассчитан на размещение 2-4 гостей. В нём предусмотрено всё необходимое для комфортного краткосрочного проживания: просторная гостиная, мини-кухня, санузел с душевой и стиральной машиной, полноценная спальня на антресольном этаже.

План дома с привязкой к участку:

Экстерьер дома:

-2

-3

-4

И немного интерьера:

Вид от входа на гостиную, мини-кухню и спальню на антресольном этаже
Вид от входа на гостиную, мини-кухню и спальню на антресольном этаже

Гостиная
Гостиная

Мини-кухня
Мини-кухня

Мини-кухня
Мини-кухня

Перед домом может быть индивидуальный бассейн или площадка для барбекю. 

Возле дома легко смогут припарковаться два автомобиля.

С нетерпением ждём начала реализации проекта🙏🏼😍

А вы бы хотели остановиться в таком домике на выходные? Или может даже на недельку?