Добавить в корзинуПозвонить
Найти в Дзене
Homes66

Планировки чешских одноэтажных домов

Планы продуманы очень удобно и логично. По ним сразу видно, насколько наши менталитеты похожи — братья-славяне, что уж говорить! Минимальная ширина участка — 25 метров. Если у вас есть такой, стоит обратить внимание на эти проекты. Общие особенности планировок: Перед вами — только планировки. Но если какая-то из них
вас вдохновит, мы создадим уникальный облик дома и оптимизируем
внутреннее пространство под ваши пожелания! Меня зовут Татьяна Кузнецова (Кашина), я — архитектор. С 2007 года занимаюсь проектированием загородных домов. Окончила Уральскую архитектурно-художественную академию. Подробнее вы можете узнать на моем сайте: homes66.ru. В шапке профиля вы найдёте все ссылки для связи со мной. Буду рада сотрудничеству!

Чехия
Чехия

Планировки чешских одноэтажных домов с тремя спальнями и гаражом на два автомобиля

Планы продуманы очень удобно и логично. По ним сразу видно, насколько наши менталитеты похожи — братья-славяне, что уж говорить!

Минимальная ширина участка — 25 метров. Если у вас есть такой, стоит обратить внимание на эти проекты.

Общие особенности планировок:

  • Площадь дома — до 200 кв.м.
  • Техническое помещение для размещения оборудования.
  • Просторная закрытая прихожая-тамбур, где можно комфортно раздеться. В отличие, например, от индийских домов, мы не попадаем сразу в гостиную.
  • В каждом доме предусмотрен камин. Для наших широт камин — это символ загородного уюта, тепла и атмосферы.
  • Удобная кухня с островом и небольшой кладовой.
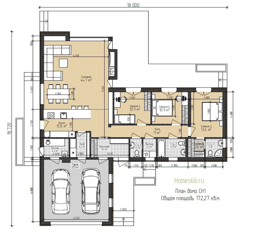
План одноэтажного дома с размерами CH1
План одноэтажного дома с размерами CH1
План одноэтажного дома с размерами CH2
План одноэтажного дома с размерами CH2
План одноэтажного дома с размерами CH3
План одноэтажного дома с размерами CH3

Перед вами — только планировки. Но если какая-то из них
вас вдохновит, мы создадим уникальный облик дома и оптимизируем
внутреннее пространство под ваши пожелания!

Меня зовут Татьяна Кузнецова (Кашина), я — архитектор. С 2007 года занимаюсь проектированием загородных домов. Окончила Уральскую архитектурно-художественную академию.
Подробнее вы можете узнать на моем сайте: homes66.ru.
В шапке профиля вы найдёте все ссылки для связи со мной. Буду рада сотрудничеству!