Добавить в корзинуПозвонить
Найти в Дзене
Территория бани

Проект современного дома с 4-я спальнями и сауной

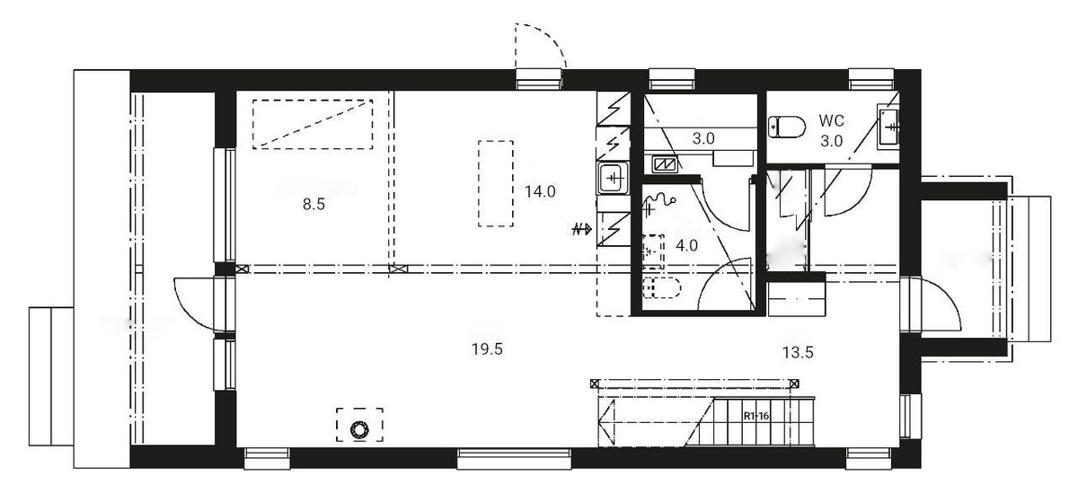
Представляем вашему вниманию проект двухэтажного дома, который идеально сочетает в себе комфорт, стиль и функциональность. Этот дом — ваша крепость уюта, в которой каждая деталь продумана до мелочей. Основные характеристики: Количество спален - 4
Жилая площадь - 146,5 м2
Общая площадь -175,5 м2 Первый этаж: На первом этаже располагаются просторная гостиная, объединенная с кухней в современном стиле, где вы сможете наслаждаться семейными ужинами и встречами с друзьями. Большие панорамные окна наполняют пространство светом и создают атмосферу уюта. Также на первом этаже находятся одна спальня, удобный санузел и прихожая с функциональными гардеробными. Выход на террасу позволит вам наслаждаться свежим воздухом и зеленым садом. Второй этаж: На втором этаже расположены три уютные спальни, каждая из которых является уединенным уголком для отдыха. Здесь также предусмотрен второй санузел и многофункциональная область — идеальная для создания рабочего кабинета или детской игровой зоны. Просто

Представляем вашему вниманию проект двухэтажного дома, который идеально сочетает в себе комфорт, стиль и функциональность. Этот дом — ваша крепость уюта, в которой каждая деталь продумана до мелочей.

Основные характеристики:

Количество спален - 4
Жилая площадь - 146,5 м2
Общая площадь -175,5 м2

Первый этаж:

На первом этаже располагаются просторная гостиная, объединенная с кухней в современном стиле, где вы сможете наслаждаться семейными ужинами и встречами с друзьями. Большие панорамные окна наполняют пространство светом и создают атмосферу уюта. Также на первом этаже находятся одна спальня, удобный санузел и прихожая с функциональными гардеробными. Выход на террасу позволит вам наслаждаться свежим воздухом и зеленым садом.

-2

Второй этаж:

На втором этаже расположены три уютные спальни, каждая из которых является уединенным уголком для отдыха. Здесь также предусмотрен второй санузел и многофункциональная область — идеальная для создания рабочего кабинета или детской игровой зоны. Просторные коридоры и возможность организации встроенных шкафов обеспечат вам дополнительное пространство для хранения.

-3

Сауна:

Одной из изюминок этого проекта является встроенная сауна, которая станет местом расслабления и восстановления здоровья. Здесь вы сможете наслаждаться теплом и расслабляющей атмосферой после долгого дня.

-4

Этот проект станет идеальным выбором для семьи, стремящейся к современному комфорту и качественной жизни.
Не упустите возможность заказать консультацию и узнать больше о вашем будущем доме мечты!