Добавить в корзинуПозвонить
Найти в Дзене
ДОМ ДЛЯ СЕМЬИ

❗️В продаже — новый кирпичный дом на завершающей стадии готовности в микрорайоне Немецкая деревня, Прикубанский округ города Краснодара

❗️В продаже — новый кирпичный дом на завершающей стадии готовности  в микрорайоне  Немецкая деревня, Прикубанский округ города Краснодара. 📍Двухэтажный коттедж расположен в коттеджном поселке "Зеленая долина-1". ❗️Отличные подъездные пути, асфальтированная дорога к самому дому. Тихое место, обжитой район, современные коттеджи и особняки —  вокруг.  🏡Коттедж общей площадью 130 кв.м современной планировки: первый этаж  — крыльцо, прихожая, гостевая спальня 11,3 кв.м, кухня-гостиная 25 кв.м с выходом на крытую террасу,  санузел 5,2 кв.м, котельная — вход с террасы,  лестница на второй этаж монолитная.  ◾️На втором этаже — холл, санузел, три комнаты. ◾️Коттедж будет в полной предчистовой отделке. 🌳Дом расположен на земельном участке 3 + 1 сотка (зона отчуждени) сотки земли, назначения ИЖС.  💧Коммуникации: свет —три фазы 15 кВт, канализация — биосептик ЕВРОЛОС ПРО 4+,  вода — скважина, центральная и газ — по меже.   📍Большая зона отчуждения, широкая улица, до Немецкой деревни — 7

❗️В продаже — новый кирпичный дом на завершающей стадии готовности  в микрорайоне  Немецкая деревня, Прикубанский округ города Краснодара.

📍Двухэтажный коттедж расположен в коттеджном поселке "Зеленая долина-1".

❗️Отличные подъездные пути, асфальтированная дорога к самому дому. Тихое место, обжитой район, современные коттеджи и особняки —  вокруг. 

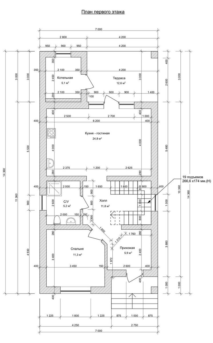
🏡Коттедж общей площадью 130 кв.м современной планировки: первый этаж  — крыльцо, прихожая, гостевая спальня 11,3 кв.м, кухня-гостиная 25 кв.м с выходом на крытую террасу,  санузел 5,2 кв.м, котельная — вход с террасы,  лестница на второй этаж монолитная. 

◾️На втором этаже — холл, санузел, три комнаты.

◾️Коттедж будет в полной предчистовой отделке.

🌳Дом расположен на земельном участке 3 + 1 сотка (зона отчуждени) сотки земли, назначения ИЖС. 

💧Коммуникации: свет —три фазы 15 кВт, канализация — биосептик ЕВРОЛОС ПРО 4+,  вода — скважина, центральная и газ — по меже. 

 📍Большая зона отчуждения, широкая улица, до Немецкой деревни — 700 м, рядом — школа, детский сад. 

❗️Дом готов.

❗️❗️Заканчиваются работы по благоустройству придомовой территории, установке забора.

🖊Если остались вопросы, пишите в комментарии

Либо позвоните

☎️ +7 (960) 498-47-95

#куплюдом

#новыекоттеджи

#домЕА

#немецкаядеревня

#зеленаядолина

#домдлясемьи

#перееезднаюг

#переездвкраснодар

-2
-3
-4
-5
-6
-7
-8