Добавить в корзинуПозвонить
Найти в Дзене

ПРОЕКТ ДОМА В СТИЛЕ РАЙТ, 597 м2

Это один из самых популярных проектов в нашем портфолио: просторный двухэтажный дом в стиле Прерий (его еще называют стилем Райта). 🏠Обратите внимание на цветовую гамму фасада: она прекрасно впишется в любую местность, а обилие натуральных теплых оттенков, комбинация уникального клееного бруса с камнем, кровля с широкими выносами создает образ стильного и статусного загородного дома. Простые линии, чёткие геометрические формы, обилие окон – всё это создает максимальную гармонию дома с природой вокруг. ОПИСАНИЕ ПЛАНИРОВКИ Первый этаж Центральную часть здесь занимают гостиная и столовая, к которой примыкает кухня. Также здесь спланированы 2 спальни, 2 санузла, большая веранда, терраса, кладовая и постирочная. Второй этаж Здесь расположены холл, 4 спальни, гардеробные комнаты, 3 санузла. ХАРАКТЕРИСТИКИ ПРОЕКТА 🔹Площадь дома: 597 м2 🔹Спален: 6 🔹Санузлов: 5 Друзья, на нашем сайте вы найдете готовые проекты на любой вкус! А если вы все же не найдете свой идеальный готовый проект, мы

Это один из самых популярных проектов в нашем портфолио: просторный двухэтажный дом в стиле Прерий (его еще называют стилем Райта).

🏠Обратите внимание на цветовую гамму фасада: она прекрасно впишется в любую местность, а обилие натуральных теплых оттенков, комбинация уникального клееного бруса с камнем, кровля с широкими выносами создает образ стильного и статусного загородного дома.

Простые линии, чёткие геометрические формы, обилие окон – всё это создает максимальную гармонию дома с природой вокруг.

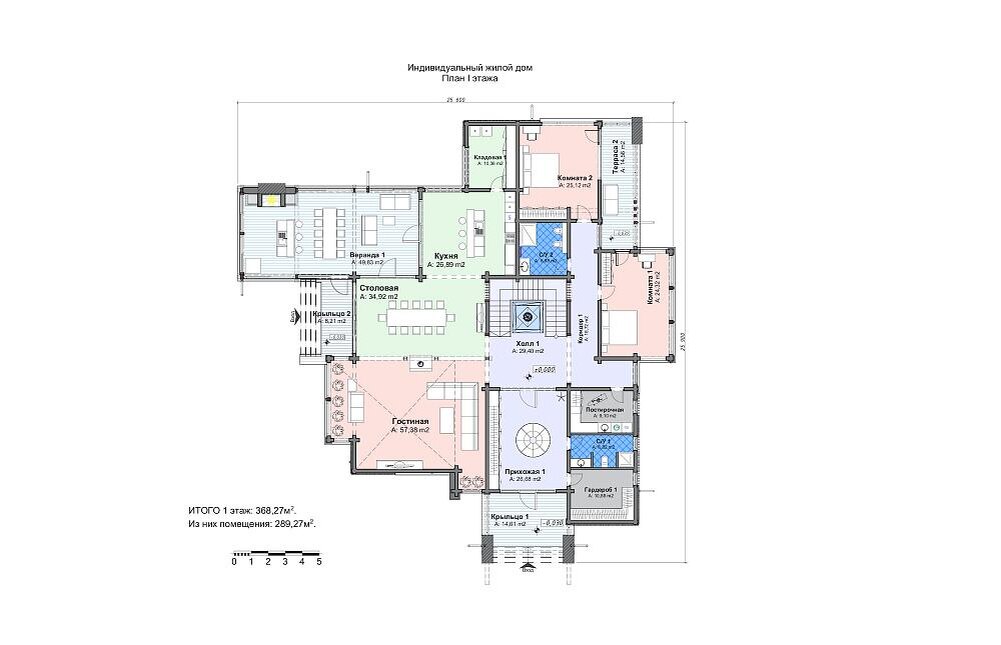
ОПИСАНИЕ ПЛАНИРОВКИ

Первый этаж

Центральную часть здесь занимают гостиная и столовая, к которой примыкает кухня. Также здесь спланированы 2 спальни, 2 санузла, большая веранда, терраса, кладовая и постирочная.

-2

Второй этаж

Здесь расположены холл, 4 спальни, гардеробные комнаты, 3 санузла.

-3

ХАРАКТЕРИСТИКИ ПРОЕКТА

🔹Площадь дома: 597 м2

🔹Спален: 6

🔹Санузлов: 5

Друзья, на нашем сайте вы найдете готовые проекты на любой вкус! А если вы все же не найдете свой идеальный готовый проект, мы разработаем для вас индивидуальный: он будет точно соответствовать всем вашим запросам!