Добавить в корзинуПозвонить
Найти в Дзене
ПСК "Градиент"

Дом 100 м2: проектирование, дизайн и строительство под ключ.

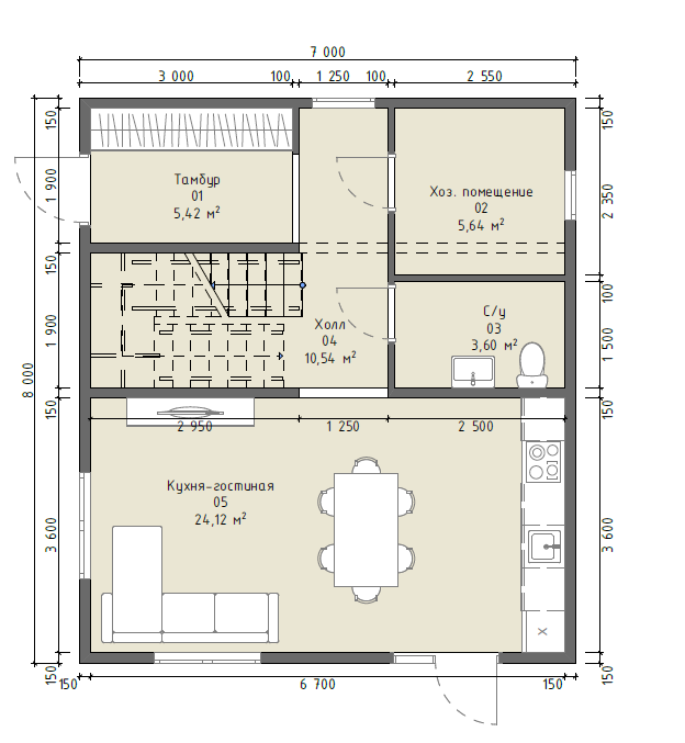
Строительство собственного дома это не просто процесс, а целое искусство, требующее профессионального подхода на каждом этапе. Мы рады представить наш проект — каркасный дом, который мы полностью сопровождали: от разработки архитектурного проекта до его строительства и реализации дизайн-проекта. Первый этап нашего сотрудничества с клиентами заключался в создании архитектурного проекта. Мы учли все пожелания заказчиков и разработали функциональную планировку. На первом этаже мы попадаем в прихожую, в которой продумано место для хранения одежды и обуви, далее расположена постирочная и душевая комната. Пройдя по холлу мы попадаем в кухню-гостиную, которая функционально разделена на две зоны: зона готовки (приёма пищи) и зона отдыха. На втором этаже находятся мастер-спальня с гардеробной, для удобной организации хранения, детская и ванная комната. Общая площадь дома составила 98,57 м², что делает его прекрасным вариантом для комфортной жизни небольшой семьи. Мы также уделили внимание внеш
Оглавление

Строительство собственного дома это не просто процесс, а целое искусство, требующее профессионального подхода на каждом этапе. Мы рады представить наш проект — каркасный дом, который мы полностью сопровождали: от разработки архитектурного проекта до его строительства и реализации дизайн-проекта.

Проектирование: от концепции до плана

Первый этап нашего сотрудничества с клиентами заключался в создании архитектурного проекта. Мы учли все пожелания заказчиков и разработали функциональную планировку. На первом этаже мы попадаем в прихожую, в которой продумано место для хранения одежды и обуви, далее расположена постирочная и душевая комната. Пройдя по холлу мы попадаем в кухню-гостиную, которая функционально разделена на две зоны: зона готовки (приёма пищи) и зона отдыха.

План 1 этажа
План 1 этажа

На втором этаже находятся мастер-спальня с гардеробной, для удобной организации хранения, детская и ванная комната.

План 2 этажа
План 2 этажа

Общая площадь дома составила 98,57 м², что делает его прекрасным вариантом для комфортной жизни небольшой семьи.

Визуализация: внешний вид дома

Мы также уделили внимание внешнему облику нашего дома. Визуализация фасада была разработана с акцентом на современный стиль и гармонию с окружающей природой. Дом отделан фасадной плиткой в нейтральных оттенках, что придаёт ему элегантный и стильный вид.

Особое внимание мы уделили деталям: водосточная система выполнена в графитовом цвете, что создает гармонию с основным цветом фасада и добавляет лаконичности. Окна также оформлены в этом оттенке и
подчеркивают общий стиль дома, делая его более выразительным.

Дизайн-проект: уют и стиль

После завершения проектирования мы приступили к разработке дизайн-проекта. Мы выбрали элегантные бежевые оттенки в интерьере, которые создают атмосферу уюта и спокойствия. В нашем проекте мы использовали прекрасные сочетания керамогранита и акцентные решения мебели, которые подчеркивают стиль и индивидуальность дома.

Визуализации и коллажи дизайн-проекта были тщательно проработаны, чтобы клиенты могли увидеть, как будет выглядеть их будущий дом. Мы уделили внимание каждой детали: от выбора текстиля до расстановки мебели.

Кухня-гостиная
Кухня-гостиная

Строительство: воплощение мечты

Следующим этапом стало строительство. Мы использовали каркасную технологию, которая обеспечивает надежность и долговечность конструкции. На каждом этапе работы наши специалисты контролировали качество выполнения всех работ, чтобы гарантировать высокий стандарт.

Подробнее об объекте в нашем видео

Создание дома это сложный, но увлекательный процесс. Мы гордимся тем, что смогли реализовать этот проект с нуля до готового жилья. Если вы мечтаете о своем доме и хотите получить профессиональное сопровождение на всех этапах строительства, ПСК Градиент готовы помочь вам в этом!

-10