Добавить в корзинуПозвонить
Найти в Дзене

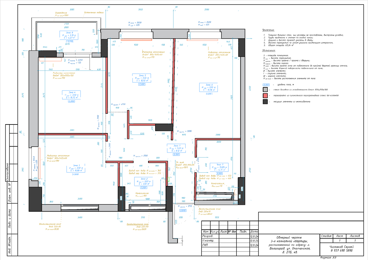
Если ты делаешь ремонт — замер нужен тебе, даже если ты не знаешь об этом

Многие начинают ремонт с идеи: «Сейчас просто переклеим обои и поменяем ламинат». Но постепенно воронка решений затягивает — нужно выровнять стены, перенести розетки, заказать встроенную мебель... А вот здесь и начинается самое интересное: без точного замера помещения вы не сможете сделать ремонт грамотно, даже если думаете, что он «простой». Давайте разберемся, почему обмер нужен каждому, кто делает ремонт — даже если он об этом ещё не знает. 📏 1. Ни один мастер не скажет вам точные размеры «на глаз» — А сколько тут до угла?
— Да где-то 2,30... плюс-минус. Так строятся диалоги, которые заканчиваются лишними листами гипсокартона, мебелью, не влезающей в нишу, и розетками за холодильником.
✅ Только профессиональный обмер помещения даёт точные данные, на которые можно опираться в каждом этапе ремонта. 🛋 2. Мебель и техника могут не поместиться Планируете встроенную кухню, гардеробную, угловой диван, холодильник или стиральную машину? Тогда вам важны: ⚠ Даже 1–2 см ошибки — и шкаф не в

Многие начинают ремонт с идеи: «Сейчас просто переклеим обои и поменяем ламинат». Но постепенно воронка решений затягивает — нужно выровнять стены, перенести розетки, заказать встроенную мебель... А вот здесь и начинается самое интересное: без точного замера помещения вы не сможете сделать ремонт грамотно, даже если думаете, что он «простой».

Давайте разберемся, почему обмер нужен каждому, кто делает ремонт — даже если он об этом ещё не знает.

📏 1. Ни один мастер не скажет вам точные размеры «на глаз»

— А сколько тут до угла?
— Да где-то 2,30... плюс-минус.

Так строятся диалоги, которые заканчиваются лишними листами гипсокартона, мебелью, не влезающей в нишу, и розетками за холодильником.
✅ Только профессиональный обмер помещения даёт точные данные, на которые можно опираться в каждом этапе ремонта.

🛋 2. Мебель и техника могут не поместиться

Планируете встроенную кухню, гардеробную, угловой диван, холодильник или стиральную машину? Тогда вам важны:

  • точные размеры стен и проемов;
  • глубина ниш и выступов;
  • реальный угол между стенами (он редко 90°);
  • уровень пола и потолка.

⚠ Даже 1–2 см ошибки — и шкаф не встанет, кухня не соберётся, а техника будет выступать из мебели.

🔌 3. Электрика, сантехника и вентиляция — это точка невозврата

На этапе черновых работ вы закладываете все коммуникации. Если неправильно определить:

  • высоты розеток,
  • места для выключателей,
  • выводы воды или слива —

переделка будет стоить дороже и по деньгам, и по нервам.
📍 Замеры позволят сделать технический план разводки без "примерки на глаз".

🧱 4. Отделка требует точности

  • Сколько плитки нужно на ванную?
  • Сколько метров обоев?
  • Сколько ламината и подложки?

Без точного замера вы либо закупите слишком много (лишние деньги), либо не хватит в самый ответственный момент (срыв сроков, разные партии материалов).

📦 Экономия на замерах — это всегда потери на отделке.

🧑‍🎨 5. Даже дизайнер не начнет работу без обмера

Если вы планируете заказать дизайн-проект — вас сразу попросят обмерный план. Ни один профессионал не работает с чертежами от застройщика или вашими эскизами на салфетке.

📌 Итог: хочешь нормальный ремонт — начни с замера

Даже если вы делаете «обычный косметический ремонт» — обмер нужен. Это основа планирования, точных расчетов и контроля подрядчиков.
И чем раньше вы это поймете — тем меньше ошибок и затрат будет по ходу работ.

Заказать обмер квартиры в Волгограде и Волжском

На сайте obmerpro.ru вы можете заказать профессиональные замеры помещений:

  • быстро
  • с высокой точностью
  • с готовым обмерным планом в PDF и DWG

Работаем с частными клиентами, строителями, дизайнерами и застройщиками.