Найти в Дзене

Как выбрать подходящий проект каркасного дома для своей семьи?

Выбор проекта каркасного дома является важным шагом при строительстве собственного жилья. Он должен соответствовать потребностям и предпочтениям вашей семьи, а также учитывать аспекты комфорта, энергоэффективности и функциональности. В этой статье мы рассмотрим некоторые важные факторы, которые следует учесть при выборе подходящего проекта каркасного дома для вашей семьи.

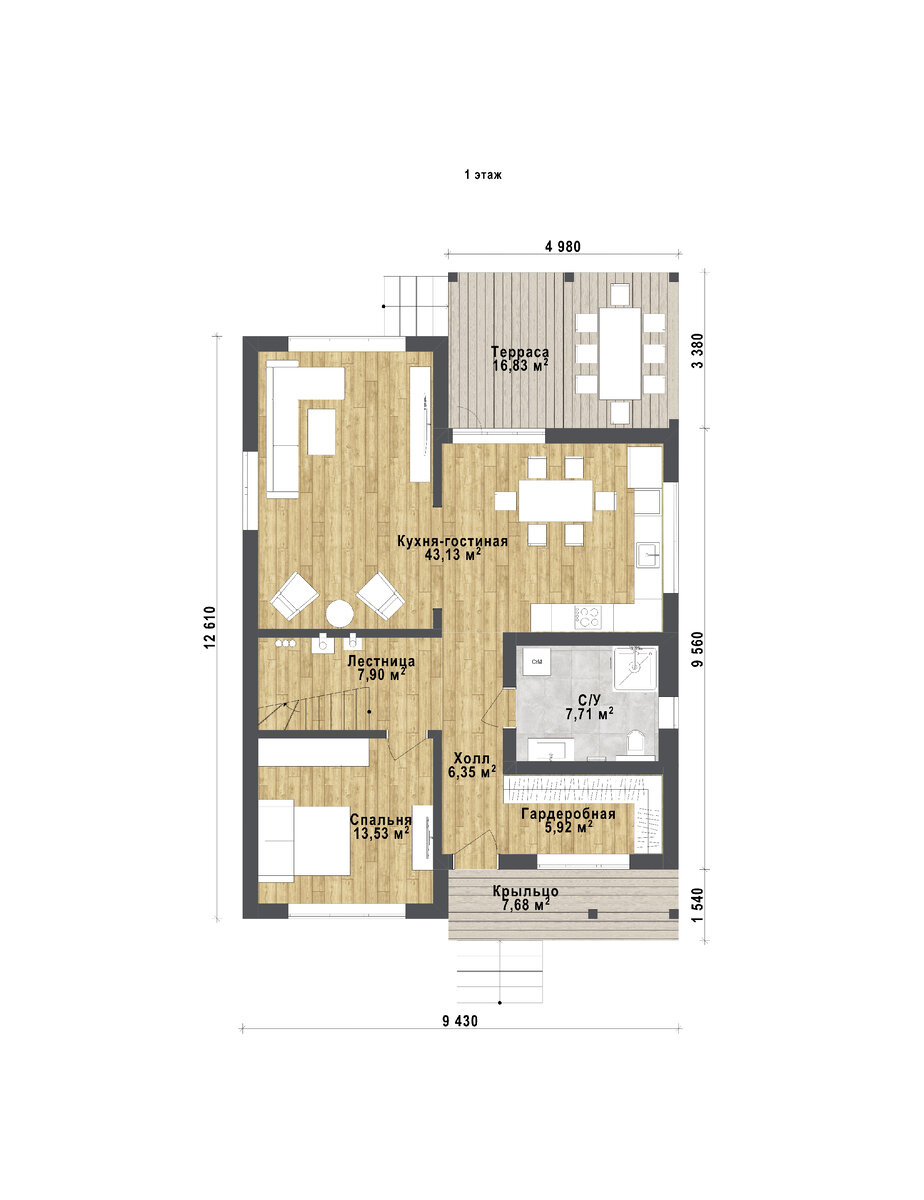
1. Планировка и площадь дома:

Важно определить желаемую площадь дома и его планировку с учетом количества комнат, спальных мест, санузлов, гостиных и других функциональных зон. Проект дома должен соответствовать вашей семье и удовлетворять ее потребностям в пространстве.

2. Стиль и дизайн:

Выбор стиля и дизайна дома играет важную роль в создании его уникального облика. Рассмотрите различные варианты стилей, такие как современный, традиционный или скандинавский, и выберите тот, который соответствует вашим предпочтениям и гармонирует с окружающей местностью.

-3

3. Материалы и отделка:

При выборе проекта каркасного дома обратите внимание на предлагаемые материалы и отделку. Высококачественные материалы обеспечат долговечность и прочность конструкции. Также рассмотрите варианты отделки интерьера и экстерьера, чтобы создать уютную и привлекательную обстановку в доме.

4. Энергоэффективность:

В современных условиях особое внимание уделяется энергоэффективности зданий. Проверьте, соответствует ли выбранный проект каркасного дома современным требованиям по энергоэффективности. Это позволит снизить затраты на отопление и кондиционирование воздуха, а также обеспечить комфортное проживание вашей семьи.

5. Цена и бюджет:

Определите свой бюджет на строительство и найдите проект каркасного дома, который соответствует вашим финансовым возможностям. Учтите, что помимо стоимости проекта, существуют и дополнительные расходы на земельный участок, коммуникации и другие работы.

-4

6. Собственные потребности:

Каждая семья имеет свои уникальные потребности и предпочтения. При выборе проекта каркасного дома обратите внимание на особенности, которые важны именно для вашей семьи. Это могут быть дополнительные помещения, технические характеристики или другие особенности, которые обеспечат максимальный комфорт проживания.

В итоге, выбор подходящего проекта каркасного дома для вашей семьи требует внимательного обдумывания и анализа различных факторов. Не спешите с решением и обратитесь к профессионалам, которые помогут вам выбрать наиболее подходящий вариант. Помните, что ваш дом должен быть не просто домом, а идеальным местом для жизни вашей семьи.

Вы можете получить бесплатную консультацию по вашему будущему дому, переходите на сайт и оставляйте заявку, с вами свяжутся наши специалисты и сориентируют по вашим вопросам.