Добавить в корзинуПозвонить
Найти в Дзене
yoyo CATCH UP ↑

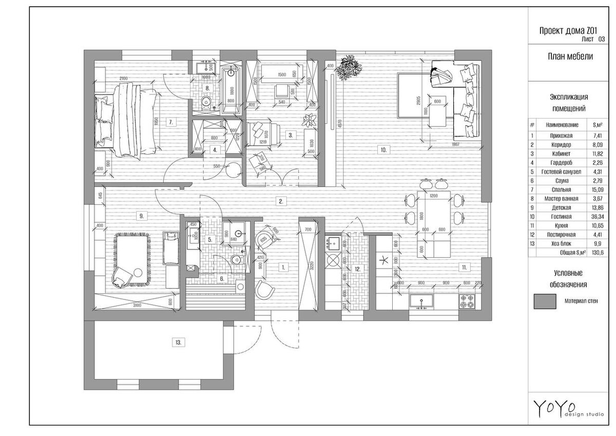
Проект дома Z01

Подборка материалов по созданию этого проекта — ссылка Последние 4 дня /хотя скорее ночи/ перед Новым годом я занималась созданием панорамы по гостевой ванной и оформлением части схем — все схемы выполнены в связке SKETCHUP+ENSCAPE По этим хэштегам в TELEGRAM — ссылка — можно посмотреть весь путь создания #проектдомаZ01 #чертежиsketchup
После новогодней распродажи и создания новогоднего ИНТЕНСИВА я подвыгорела и мне было очень сложно заставить себя сесть за компьютер, но по итогу результатом я довольна
Теперь панорамы собраны по одной ссылке — кликните, чтобы посмотреть — после праздников добавлю видео в МАРАФОН как так сделать, в дополнение к тем, что уже выложены Панорама получилась не с первого раза
Сначала не могла определиться с зеркалом и бра, мне не нравилось по композиционному весу / финал — 1-я картинка
Потом поняла, что плитка арабеска не в том направлении, слишком ассоциативна, перевернула
И сам материал плитки не с первого раза вышел такой, как мне надо — по этой пли

Подборка материалов по созданию этого проекта — ссылка

Последние 4 дня /хотя скорее ночи/ перед Новым годом я занималась созданием панорамы по гостевой ванной и оформлением части схем — все схемы выполнены в связке SKETCHUP+ENSCAPE

По этим хэштегам в TELEGRAM — ссылка — можно посмотреть весь путь создания #проектдомаZ01 #чертежиsketchup

После новогодней распродажи и создания новогоднего
ИНТЕНСИВА я подвыгорела и мне было очень сложно заставить себя сесть за компьютер, но по итогу результатом я довольна

Теперь панорамы собраны по одной ссылке —
кликните, чтобы посмотреть — после праздников добавлю видео в МАРАФОН как так сделать, в дополнение к тем, что уже выложены

Панорама получилась не с первого раза

Сначала не могла определиться с зеркалом и бра, мне не нравилось по композиционному весу
/ финал — 1-я картинка

Потом поняла, что плитка арабеска не в том направлении, слишком ассоциативна, перевернула

И сам материал плитки не с первого раза вышел такой, как мне надо — по этой плитке тоже дозапишу кусочек в
МАРАФОН

Обратите внимание, что представленные изображения — скриншоты из панорам

При создании панорамы учитывается дизайн и просчет материалов всего помещения, а не только детали на конкретной ракурсе, из-за чего в последствии на статичных рендерах что-то докручивается по материалам, двигается, если двигается, уже для композиции выбранного ракурса

Но панорама дает возможность убедиться в цельности композиции и стилистического решения всего помещения

Для этого помещения я выбрала другое зеркало и другое бра, помимо композиционного веса и акцентов, ещё и из-за того, что арабеска вносит в интерьер классическую нотку, хотя в остальном помещении её нет, а прямоугольное зеркало тоже из классической оперы, какой-нибудь французской по ассоциациям в моей голове, и бра с бусинами с характером — получился винегрет

А выбранное зеркало по итогу имеет современный силуэт
/свежий, без ассоциаций/ и оно бОльшего размера, бра из-за стекла и меньшего размера — аккуратное и почти незаметное, хоть и скорее ар-деко, чем минимализм

Отказываться от арабески я не хотела
/моя любовь к керамической плитке в глазури заметна, я думаю, как и к сочетанию красного и бежевого, хотя тут я задумывалась о другом цвете, желто-оранжевом каком-нибудь/ поэтому менялись сопутствующие детали

Но это лишь мой взгляд на выбор предметов и дизайна, и моя логика

Я считаю, что тут работают внутренние ощущения дизайнера и его личная призма

В какую стилистику бы я не уходила, все равно красной нитью тянутся какие-то нотки конструктивизма и/или баухауса

В выборе предметов, в создании объемов, в выборе акцентных цветов, в выборе деталей, пусть это может быть и не сильно очевидно

Но нынче рендер панорамы в Enscape 3.5.6 у меня идет часа полтора, и эти ожидания выбешивали

ENSCAPE разбаловал временем рендера, а с каждым обновлением оно все увеличивается, но пропорционально качеству, так что тут, конечно, грех сетовать

Благо я уже получила ответ от заказчицы и дизайн ей очень понравился
Хороший итог уходящего года
⭐️

Ванная в проекте MALOOHTINSKII
Ванная в проекте MALOOHTINSKII

Кстати, там, где крючки с полотенцами, должен был быть полотенцесушитель, но я вместо него предложила сделать кусок теплого пола

Мы реализовали такое же решение на проекте MALOOHTINSKII

Благодаря такому решению можно убрать лишние детали из интерьера, главное, чтобы ваш строитель не забыл отметить, где проходит теплый пол, чтобы потом при монтаже крючков не пробить его

Поэтому при таком решение лучше лишний раз сакцентировать внимание и прописать его в схемах