Добавить в корзинуПозвонить
Найти в Дзене
ЭТО ВАШ ИНТЕРЬЕР

"Шикарная однушка" — женщина показала, что она сотворила со своей "убитой" квартирой площадью 39 м² (фото До и После)

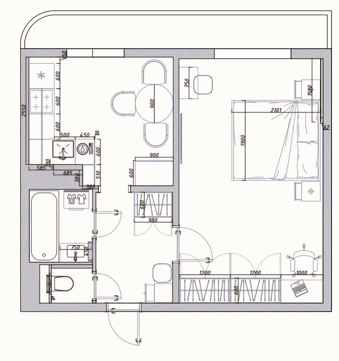
Героиня сегодняшней статьи — молодая женщина, которая купила эту стандартную однокомнатную квартиру не для себя, а как инвестиционный проект, а точнее для последующей перепродажи. Она купила квартиру с "убитым" интерьером, поэтому, чтобы выставить квартиру на продажу, её необходимо было полностью преобразить. И для того, чтобы из запущенного интерьера создать удобное, стильное и функциональное жилье — был приглашен дизайнер. Проект Прихожая Цветовую гамму для всей квартиры выбрали в максимально светлых тонах. На полу уложен светлый ламинат, а для стен выбрали классическую белую краску. Входную дверь заменили на новую со встроенным зеркалом. Справа повесили открытую вешалку для верхней одежды, которая выполнена в контрастном черном цвете. Под ней располагается мягкая банкетка с секцией для обуви. А между кухней и комнатой поставили большой белый шкаф с черными ручками. Кухня Отделка кухни выполнена теми же материалами, что и прихожая: ламинат и краска. Слева от входа располагается
Оглавление

Героиня сегодняшней статьи — молодая женщина, которая купила эту стандартную однокомнатную квартиру не для себя, а как инвестиционный проект, а точнее для последующей перепродажи. Она купила квартиру с "убитым" интерьером, поэтому, чтобы выставить квартиру на продажу, её необходимо было полностью преобразить.

И для того, чтобы из запущенного интерьера создать удобное, стильное и функциональное жилье — был приглашен дизайнер.

Проект

  • Местоположение: г. Санкт-Петербург
  • Площадь квартиры: 39 кв. м
  • Владельцы: женщина
  • Бюджет: 1,3 млн рублей
-2

Прихожая

Цветовую гамму для всей квартиры выбрали в максимально светлых тонах. На полу уложен светлый ламинат, а для стен выбрали классическую белую краску. Входную дверь заменили на новую со встроенным зеркалом.

-3

Справа повесили открытую вешалку для верхней одежды, которая выполнена в контрастном черном цвете. Под ней располагается мягкая банкетка с секцией для обуви. А между кухней и комнатой поставили большой белый шкаф с черными ручками.

-4

Кухня

Отделка кухни выполнена теми же материалами, что и прихожая: ламинат и краска. Слева от входа располагается кухонный гарнитур сложной формы, который был сделан на заказ. Справа от входа встал вместительный шкаф для различных бытовых предметов, круп, закруток и тд. Нижние фасады были выполнены в белой расцветке, а вот верхние имитируют деревянную поверхность.

Фартук облицевали не плиткой, а зеркальными панелями, которые зрительно увеличивают площадь и так же делают кухню светлее (правда вряд ли такое решение будет практичным). На противоположной стене от рабочей зоны располагается белоснежная столовая группа со светильником.

-6
-7

На прилегающей лоджии тоже сделали ремонт: выровняли стены и подготовили их под покраску, а на полу использовали белую плитку.

-8

Комната

Жилую комнату сделали максимально светлой и просторной, без большого количества мебели и декора. Стены оклеили обоями под покраску. Справа от входа установили большой белый шкаф почти до самого потолка. Слева от него организовали рабочий уголок.

Ближе к окну находится двуспальная кровать бежевого цвета с мягким изголовьем. Стену возле изголовья задекорировали стеновыми панелями. Слева от окна расположился минималистичный туалетный столик с большим зеркалом.

Ванная комната и санузел

Сантехника в ванной комнате осталась на своих местах, лишь напротив раковины сделали вывод под стиральную машинку, которая появиться чуть позднее. В отделке стен скомбинировали керамогранит песчаного оттенка и белую влагостойкую краску.

Если вам понравилась статья, то не забудьте поставить лайк и подписаться, чтобы не пропустить новый материал!

Так же пишите в комментариях, что вам понравилось в этом проекте, а что вызывает сомнения.