Найти в Дзене

Роскошный двухэтажный дом с плоской кровлей.

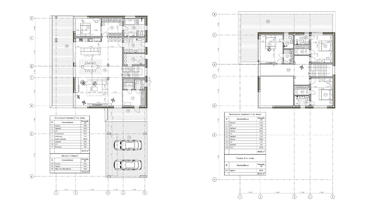
Свою первую публикацию в 2024 году мы хотим посвятить роскошному двухэтажному дому с плоской кровлей, завершение разработки проекта которого пришлось на конец декабря.
 
Мы уже показывали его в ходе рабочего процесса. Дом с 4-мя мастер-спальнями, поистине завораживающей кухней-гостиной и вторым светом запомнился многим. А теперь хотим продемонстрировать его завершенный вид.
Планировка дома не изменилась, добавилась лишь крытая парковка - популярное решение в современном домостроении. Выбирая, как будет храниться автомобиль на участке, многие заказчики отказываются от обустройства гаража и отдают предпочтение крытому навесу, который органично вписывается в архитектурный стиль основного строения, дополняя его.
 
Во многих профилях строительных компаний идут оживленные дискуссии на эту тему: нужен ли в собственном доме гараж или достаточно навеса.
 
Мы на этот вопрос отвечаем традиционно: любые планировочные решения, применяемые для конкретного дома, должны отвечать потребностям его ж

Свою первую публикацию в 2024 году мы хотим посвятить роскошному двухэтажному дому с плоской кровлей, завершение разработки проекта которого пришлось на конец декабря.

Мы уже показывали его в ходе рабочего процесса. Дом с 4-мя мастер-спальнями, поистине завораживающей кухней-гостиной и вторым светом запомнился многим. А теперь хотим продемонстрировать его завершенный вид.

Планировка дома не изменилась, добавилась лишь крытая парковка - популярное решение в современном домостроении. Выбирая, как будет храниться автомобиль на участке, многие заказчики отказываются от обустройства гаража и отдают предпочтение крытому навесу, который органично вписывается в архитектурный стиль основного строения, дополняя его.

Во многих профилях строительных компаний идут оживленные дискуссии на эту тему: нужен ли в собственном доме гараж или достаточно навеса.

Мы на этот вопрос отвечаем традиционно: любые планировочные решения, применяемые для конкретного дома, должны отвечать потребностям его жильцов.

Если в семье много техники: автомобили, мотоциклы, велосипеды, квадроциклы, разные виды габаритной спортивной экипировки, которую нужно где-то хранить, обсуждать нечего, гараж - необходимость.

Для других же гараж может стать излишество, помещением, в которое машину будет загонять лень, но при этом в него перекочуют все утратившие актуальность, но еще работоспособные, вещи, которые жаль выкинуть. Примеров тому, думаем, вы знаете немало.

Листайте фото, чтобы подробнее рассмотреть этот интересный проект.