Добавить в корзинуПозвонить
Найти в Дзене

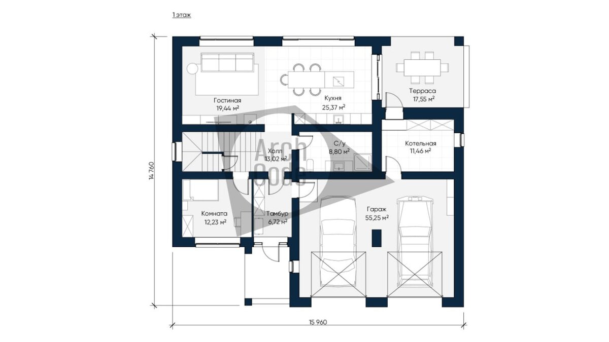
Коттедж в стиле хай-тек "Альматея"

Выбирая коттедж в стиле хай-тек под названием "Альматея", вы получаете идеальное сочетание современного дизайна и функциональности.
Основные характеристики:
- Общая площадь дома - 262.67 м2.
- Предусмотрена терраса площадью 17.55 м².
- Количество комнат - 5.
- Количество санузлов - 2.
- Гараж находится внутри дома.
Пять жилых комнат расположены на двух этажах, обеспечивая максимальный комфорт для всей семьи. Также в доме имеется гараж на два автомобиля.
Коттедж "Альматея" будет прекрасным украшением для любого загородного поселка и добавит неповторимый шарм в вашу жизнь. Если у вас есть особые пожелания относительно планировки, мы всегда рады внести нужные изменения, чтобы ваш дом соответствовал вашим предпочтениям. Как построить дом в Тюмени? Как построить дом в Москве? Готовые дома в Тюмени Готовые дома в Москве Земельные участки в Тюмени Задать вопрос в ТГ И подписывайтесь на наш канал, чтобы не пропустить новые интересные проекты. #проектдома #проектдвухэтажногодома #построитьдо

Выбирая коттедж в стиле хай-тек под названием "Альматея", вы получаете идеальное сочетание современного дизайна и функциональности.

Основные характеристики:
- Общая площадь дома - 262.67 м2.
- Предусмотрена терраса площадью 17.55 м².
- Количество комнат - 5.
- Количество санузлов - 2.
- Гараж находится внутри дома.

Пять жилых комнат расположены на двух этажах, обеспечивая максимальный комфорт для всей семьи. Также в доме имеется гараж на два автомобиля.

Коттедж "Альматея" будет прекрасным украшением для любого загородного поселка и добавит неповторимый шарм в вашу жизнь. Если у вас есть особые пожелания относительно планировки, мы всегда рады внести нужные изменения, чтобы ваш дом соответствовал вашим предпочтениям.

Понравился проект? Заказать проект или выбрать подобный можно по телефону: +79323212510. Звоните или пишите. Заявки принимаются по вотцап, телеграмм. Готовы рассчитать для вас смету!

Как построить дом в Тюмени?

Как построить дом в Москве?

Готовые дома в Тюмени

Готовые дома в Москве

Земельные участки в Тюмени

Задать вопрос в ТГ

И подписывайтесь на наш канал, чтобы не пропустить новые интересные проекты.

#проектдома #проектдвухэтажногодома #построитьдом #купитьдом

#двухэтажныйдом #лучшиедвухэтажныедома #дом #новыедома