Добавить в корзинуПозвонить
Найти в Дзене
ЭТО ВАШ ИНТЕРЬЕР

Женщина в возрасте купила старенькую питерскую квартиру и изменила её до неузнаваемости. Смотрите, что вышло (фото до и после)

Героиня сегодняшней статьи — состоятельная женщина. Она живет в данной квартире одна, но время от времени к ней в гости приезжает её взрослая дочь с мужем и ребенком. Поэтому квартира была приобретена с хорошим метражом, чтобы здесь было комфортно всей семье. Ремонта здесь не было много лет, поэтому хозяйка обратилась за помощью к профессионалам. Проект Прихожая и коридор После демонтажа старой отделки здесь открылся старинный кирпич, который новая хозяйка решила оставить в первозданном виде, создав тем самым изюминку пространства. Остальные же стены оклеили классическими серыми обоями и обоями с растительным узором. Возле кирпичной стены поставили большой черный сундук, который выполняет сразу три функции: является арт объектом, дополнительным местом для хранения и своеобразным столиком для всяких мелочей, по типу сумок, перчаток и тд. Напротив него имеется стул и зеркало. В нише напротив входа расположилась вместительная система хранения, которая была сделана на заказ. Кухня-гости
Оглавление

Героиня сегодняшней статьи — состоятельная женщина. Она живет в данной квартире одна, но время от времени к ней в гости приезжает её взрослая дочь с мужем и ребенком. Поэтому квартира была приобретена с хорошим метражом, чтобы здесь было комфортно всей семье. Ремонта здесь не было много лет, поэтому хозяйка обратилась за помощью к профессионалам.

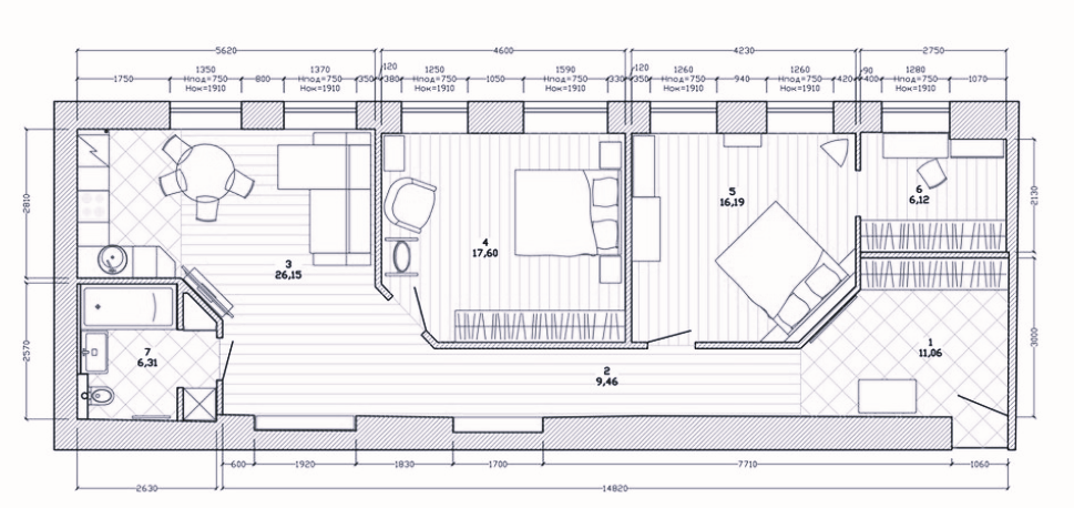
Проект

  • Местоположение: г. Санкт-Петербург
  • Площадь квартиры: 94 кв. м
  • Владельцы: женщина
-2

Прихожая и коридор

После демонтажа старой отделки здесь открылся старинный кирпич, который новая хозяйка решила оставить в первозданном виде, создав тем самым изюминку пространства. Остальные же стены оклеили классическими серыми обоями и обоями с растительным узором.

Возле кирпичной стены поставили большой черный сундук, который выполняет сразу три функции: является арт объектом, дополнительным местом для хранения и своеобразным столиком для всяких мелочей, по типу сумок, перчаток и тд.

-4

Напротив него имеется стул и зеркало. В нише напротив входа расположилась вместительная система хранения, которая была сделана на заказ.

-5

Кухня-гостиная

Смежную стену с улицей хозяйка тоже решила оставить кирпичной и ничем её не закрывать. Напольное покрытие в этом помещении комбинированное: в кухонной зоне использовали плитку, а в зоне гостиной — ламинат. В кухне установили угловой гарнитур. Фасады выполнены из МДФ и покрашены в белый цвет. Фартук облицован красивой шестиугольной плиткой.

На стыке между гостиной и кухней разместили столовую группу с антикварным обеденным столом и стульями.

-7

У стены появился угловой диван, который при необходимости может стать дополнительным спальным местом, а на скошенной стене находится телевизор с небольшим столиком в виде полукруга.

Гостевая

Эту комнату было решено отдать под гостевую. Именно здесь остается с ночевкой дочь хозяйки со своей семьей. Отделка пола и стен такая же, как и в гостиной. В центре находится двуспальная кровать, а напротив неё появилось яркое желтое кресло, зеркало и небольшой комод. Так же в комнате имеется большой шкаф для одежды.

Хозяйская спальня

В хозяйской спальне нет каких-либо изыскав: на полу ламинат, а стены оклеены обоями. У стены располагается кровать с прикроватными тумбочками. Здесь так же имеется зеркало, комод и буфет.

Главная особенность спальни в том, что к ней прилегает небольшая комната, где хозяйка организовала компактный рабочий уголок с вместительной системой хранения.

Ванная комната

В отделке ванной комнаты использовали три вида плитки и влагостойкую серую краску. С двух сторон от входа появились шкафы, в одном из которых спрятана стиральная машинка и нагревательный бойлер.

Над инсталляцией повесили картину, которая маскирует лючок коммуникаций. Над головой красуется шикарная люстра, которую хозяйка привезла после очередной поездки в Турцию.

Если вам понравилась статья, то не забудьте поставить лайк и подписаться, чтобы не пропустить новый материал!

Так же пишите в комментариях, что вам понравилось в этом проекте, а что вызывает сомнения.