Добавить в корзинуПозвонить
Найти в Дзене
Филдс

Сложные цвета, уютное дерево и много света: однушка 35 м² в завораживающих оттенках

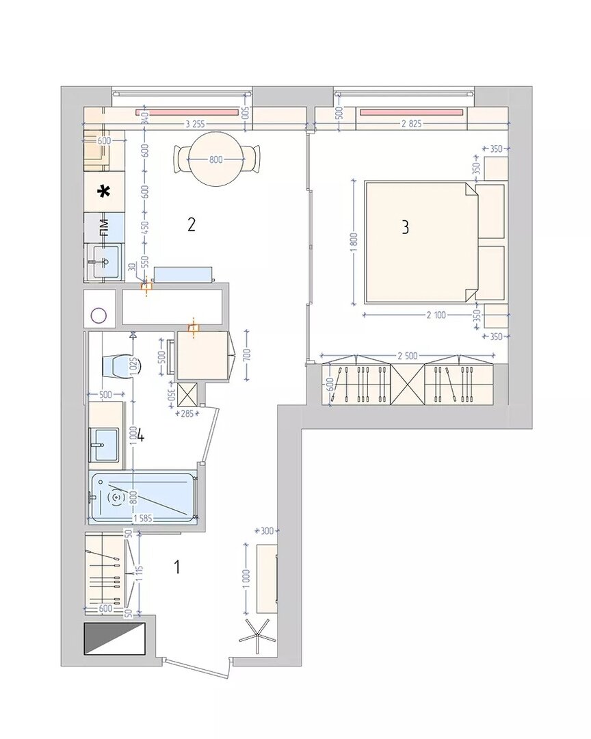
Дизайнеры Светлана Хабеева и Светлана Кикина оформили однушку площадью 35 м² для сдачи в аренду. В основу палитры легли завораживающие сложные оттенки, а перепланировка позволила наполнить квартиру естественным светом. Планировка Между кухней и комнатой располагалась глухая стена. Ее демонтировали и установили стеклянную перегородку. Это позволило визуально расширить пространство и наполнить его светом и воздухом. Ванную и уборную объединили, благодаря чему также удалось организовать мини-постирочную. Кухня Стены в кухне и спальне выкрасили в приглушенный зеленый цвет. Прохладную гамму смягчает напольное покрытие и обеденная группа из светлого дерева. Чтобы верхние шкафы гарнитура не утяжелили пространство, их слили по тону с отделкой. Нижний ярус подобрали в светло-сером оттенке. Необычный асимметричный рисунок плитки на фартуке вносит контрастные штрихи и перекликается с графикой на стене. Поскольку единственную комнату отвели под спальню, и как таковой гостиной в квартире нет, по
Оглавление

Дизайнеры Светлана Хабеева и Светлана Кикина оформили однушку площадью 35 м² для сдачи в аренду. В основу палитры легли завораживающие сложные оттенки, а перепланировка позволила наполнить квартиру естественным светом.

  • Общая площадь: 35 м²
  • Место: Москва
  • Тип дома: ЖК «Береговой»
  • Количество комнат: 1
  • Кто здесь живет: для сдачи в аренду
  • Фото: Ольга Мелекесцева

Планировка

Между кухней и комнатой располагалась глухая стена. Ее демонтировали и установили стеклянную перегородку. Это позволило визуально расширить пространство и наполнить его светом и воздухом. Ванную и уборную объединили, благодаря чему также удалось организовать мини-постирочную.

Кухня

Стены в кухне и спальне выкрасили в приглушенный зеленый цвет. Прохладную гамму смягчает напольное покрытие и обеденная группа из светлого дерева.

-2

Чтобы верхние шкафы гарнитура не утяжелили пространство, их слили по тону с отделкой. Нижний ярус подобрали в светло-сером оттенке. Необычный асимметричный рисунок плитки на фартуке вносит контрастные штрихи и перекликается с графикой на стене.

-3

Поскольку единственную комнату отвели под спальню, и как таковой гостиной в квартире нет, подоконник в кухне расширили и тем самым создали небольшую зону для отдыха. Откосы, штора, полки под окном поддерживают основной цвет палитры, помогая довершить выразительный цельный интерьер.

-4

Спальня

Спальню в целом выдержали в той же гамме. Зону кровати выделили круглым ковром. Припыленно-розовая обивка оттеняет преобладающий зеленый. Прикроватные тумбы La Redoute вносят умеренный акцент. Графика над изголовьем перекликается с черными деталями — выключателями, светильниками — и концептуально связывает кухню и спальню.

В глубине комнаты установили встроенные шкафы для вещей, их закрыли фасадами в тон стенам, поэтому системы хранения зрительно растворяются в пространстве. Зону окна оформили по той же схеме, которую применили в кухне. Подоконник также нарастили и дополнили полками для книг и декора.

Прихожая

Прихожую выполнили в более нейтральном оттенке. Рисунок на напольной плитке открывает тему графичных темных кругов, которая раскрывается подробнее с помощью аксессуаров — напольной вешалки, фурнитуры, лампы. Деревянная консоль для мелочей добавляет уюта. Напротив нее, слева от входа встроили систему хранения.

Санузел

Строгость черно-белой палитры санузла разбавили вставками сложных оттенков серого и зеленого. Хаотичные фигуры на плитках оживляют интерьер, делают его динамичнее. Заказчики сделали выбор в пользу просторной душевой. Для хранения предусмотрели тумбу под раковину и высокий открытый стеллаж.

Интересные мнения в комментариях приветствуются. Если материал понравился — ставь лайк!

🖤 Филдс — это не только блог на Дзене, но и магазин дизайнерских предметов интерьера. Заходите на сайт, чтобы увидеть мебель, которую дизайнеры выбирают для своих проектов.