Добавить в корзинуПозвонить
Найти в Дзене
Ё-Haus

Дом мечты 🔥🔥

Проект 2ЁК107 представляет собой двухэтажный дом площадью 107 м², построенный в элегантной облицовке с контрастными вставками. Стоимость составляет 5 670 000 рублей, а срок возведения - от 6 месяцев. Дом с панорамными окнами, которые обеспечат отличное естественное освещение. Также есть маленький балкончик, который можно использовать не только как декоративное украшение, но и как место, где можно любоваться видом 😍  Данный проект подойдет для семьи из 4-5 человек. План первого этажа включает в себя одну спальную комнату, санузел и просторную кухню, совмещенную с гостиной. Второй этаж состоит из четырех спален и санузла. В целом, проект 2ЁК107 представляет собой уютный и функциональный дом для большой семьи 👨‍👩‍👧‍👦

-2

-3

-4

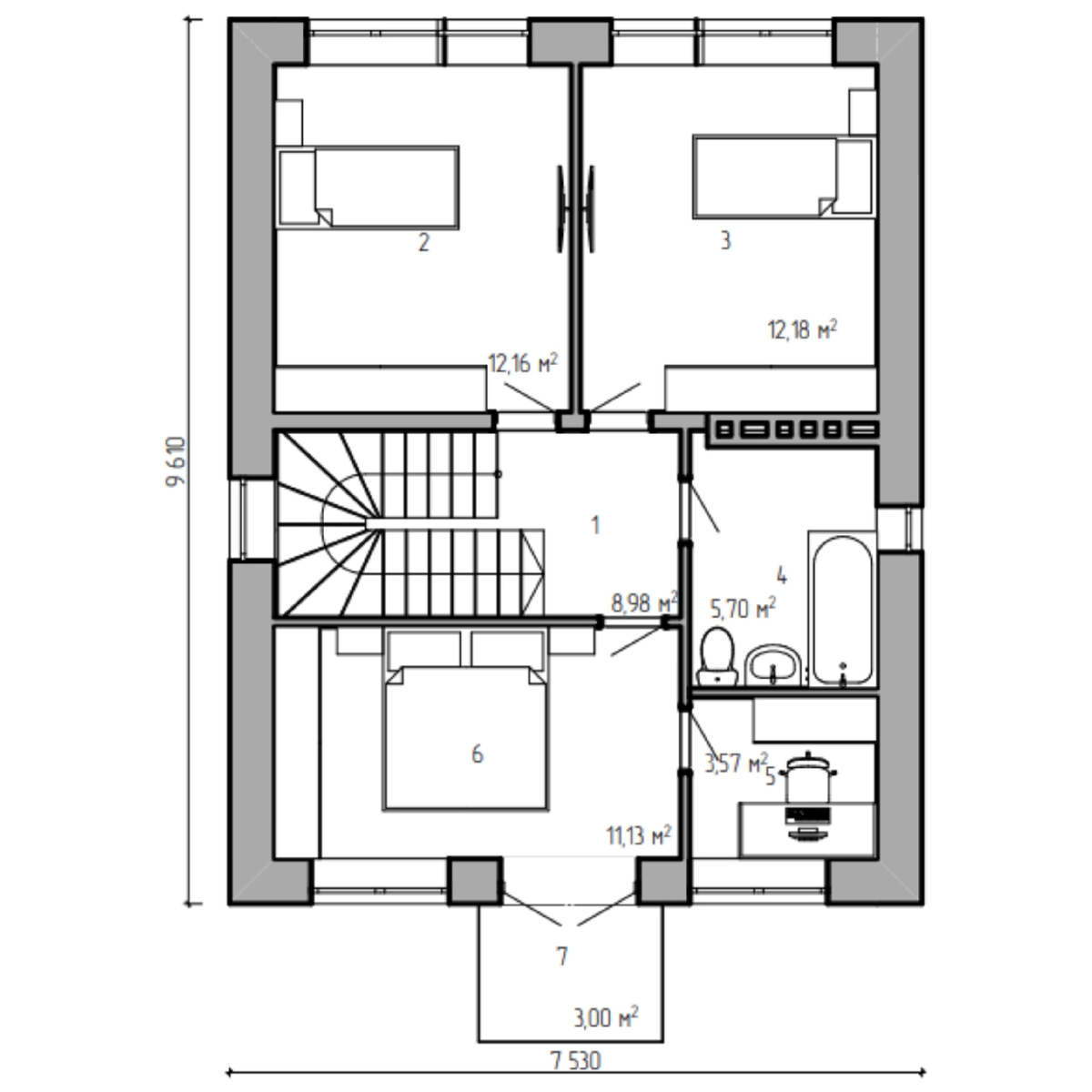
Проект 2ЁК107 представляет собой двухэтажный дом площадью 107 м², построенный в элегантной облицовке с контрастными вставками. Стоимость составляет 5 670 000 рублей, а срок возведения - от 6 месяцев.

Дом с панорамными окнами, которые обеспечат отличное естественное освещение.

Также есть маленький балкончик, который можно использовать не только как декоративное украшение, но и как место, где можно любоваться видом 😍 

Данный проект подойдет для семьи из 4-5 человек.

План первого этажа включает в себя одну спальную комнату, санузел и просторную кухню, совмещенную с гостиной. Второй этаж состоит из четырех спален и санузла.

В целом, проект 2ЁК107 представляет собой уютный и функциональный дом для большой семьи 👨‍👩‍👧‍👦