Найти в Дзене

Проект нового ЖК на месте челябинской гостиницы одобрила госэкспертиза

Проект первого дома нового жилого комплекса на месте бывшего профилактория ЧТЗ и гостиницы «Солнечная» (перекрёсток улиц Худякова и Лесопарковой) получил положительное заключение госэкспертизы: информация об этом появилась в едином реестре. Проект ЖК с многоуровневой автостоянкой и встроенными помещениями для объектов обслуживания для ООО «Солнечное» (входит в группу «НИКС» Николая Серскова) разработала подмосковная компания «Энергопроект-7». Напомним, что весной нынешнего года проект будущего ЖК обсуждали также на публичных слушаниях: у некоторых челябинцев возникли вопросы к проекту, который будет реализован так близко от границ городского бора. Градостроительная комиссия постановила одобрить инициативу застройщика. Как следует из ранее представленного плана ЖК, дом №3 будет строиться в непосредственной близости к перекрёстку (на схеме — внизу справа), в нём будет не менее 20 этажей, в том числе один цокольный. Читайте также на CHEL.DK.RU
В Челябинске обсудят реконструкцию централь

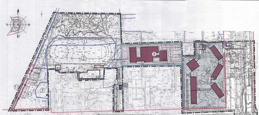
Проект первого дома нового жилого комплекса на месте бывшего профилактория ЧТЗ и гостиницы «Солнечная» (перекрёсток улиц Худякова и Лесопарковой) получил положительное заключение госэкспертизы: информация об этом появилась в едином реестре.

Проект ЖК с многоуровневой автостоянкой и встроенными помещениями для объектов обслуживания для ООО «Солнечное» (входит в группу «НИКС» Николая Серскова) разработала подмосковная компания «Энергопроект-7».

Напомним, что весной нынешнего года проект будущего ЖК обсуждали также на публичных слушаниях: у некоторых челябинцев возникли вопросы к проекту, который будет реализован так близко от границ городского бора. Градостроительная комиссия постановила одобрить инициативу застройщика.

Как следует из ранее представленного плана ЖК, дом №3 будет строиться в непосредственной близости к перекрёстку (на схеме — внизу справа), в нём будет не менее 20 этажей, в том числе один цокольный.

Читайте также на CHEL.DK.RU
В Челябинске обсудят реконструкцию центрального долгостроя