Найти в Дзене
ПРОЕКТ-КОМ

Кухня-столовая в квартире. Как увеличить кухню за счёт: комнаты, туалета и ванной

Как можно увеличить площадь кухни за счёт жилой комнаты и мокрых зон. Кухня-гостиная в квартире многоквартирного дома. Самые популярные вопросы в ходе ремонта квартиры или в его разработке: А может, Вы купили квартиру, в которой уже сделана самовольная перепланировка? И хотите узаконить её до выявления нарушений Жилищного надзора?! Но для начала дадим определение кухни-столовой, и разберём, что потребуют органы местной власти: ПетербургГаз и Администрация (МВК). Определяет названия помещений жилых квартир – СП 54.13330.2022 Здания жилые многоквартирные: Кухня-столовая в большинстве планировок квартир образуется в результате объединения помещений: коридор + комната + кухня = кухня—столовая (вспомогательная площадь). Также можно: увеличить площадь кухни-столовой за счёт части площади мокрых зон: туалета или ванной комнаты. Главное соблюсти требования разграничения кухонной зоны и столовой. Более понятным языком: кухня-столовая — это объединенная кухня с жилой комнатой, не имеющая разделя
Оглавление
Согласование перепланировки СПб и Ленинградской области
Согласование перепланировки СПб и Ленинградской области

Как можно увеличить площадь кухни за счёт жилой комнаты и мокрых зон. Кухня-гостиная в квартире многоквартирного дома.

Самые популярные вопросы в ходе ремонта квартиры или в его разработке:

  • вопрос №1 «Как сделать кухню больше за счёт жилой комнаты? за счёт части площади туалета или ванной комнаты?»
  • вопрос №2 «Как избавиться от нагромождения газовых труб на кухне и в ванной комнате?»

А может, Вы купили квартиру, в которой уже сделана самовольная перепланировка?

И хотите узаконить её до выявления нарушений Жилищного надзора?!

Но для начала дадим определение кухни-столовой, и разберём, что потребуют органы местной власти: ПетербургГаз и Администрация (МВК).

Что такое кухня-столовая

Определяет названия помещений жилых квартир – СП 54.13330.2022 Здания жилые многоквартирные:

  • Пункт 3.1.15 комната жилая: часть квартиры, предназначенная для использования в качестве места непосредственного проживания граждан.
  • Пункт 3.1.18 кухня-столовая: вспомогательное помещение с обеденной зоной для единовременного приёма пищи всеми членами семьи, а также с местом для размещения кухонного оборудования для приготовления пищи, мойки, хранения посуды и инвентаря.

Кухня-столовая в большинстве планировок квартир образуется в результате объединения помещений: коридор + комната + кухня = кухня—столовая (вспомогательная площадь).

Также можно: увеличить площадь кухни-столовой за счёт части площади мокрых зон: туалета или ванной комнаты.

Главное соблюсти требования разграничения кухонной зоны и столовой.

Границы кухонной зоны и столовой

Более понятным языком: кухня-столовая — это объединенная кухня с жилой комнатой, не имеющая разделяющей перегородки с дверью между ними.

Где кухонное электрическое оборудование (плита, духовой шкаф и мойка) находится в прежних границах бывшей кухни.

Так, чтобы оборудование не оказалось НАД жилой комнатой нижерасположенной квартиры, и ПОД санузлом вышерасположенной квартиры (соседи выше и ниже этажами).

Кухонная зона коротко как НЕ должно быть:

  • под Вашей кухонной зоной не должно быть жилой комнаты;
  • над Вашей кухонной зоной не должно быть санузла (туалет, ванная и т.п.).

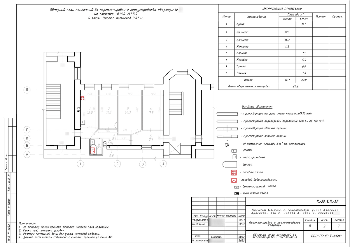
Остальное положение разрешено. Приведём наш пример реализованного проекта, где квартира расположена на последнем этаже, и нижерасположенная квартира имеет схожую планировку и набор помещений.

На проектном чертеже кухня-столовая будет поделена на следующие зоны:

  • столовая зона в границах прежней комнаты и коридора;
  • кухонная зона в границах прежней кухни*

*дополнительно учитываются планировки квартир выше и нижерасположенных

обозначение зон кухни-столовой: кухонная зона и столовая
обозначение зон кухни-столовой: кухонная зона и столовая

С размещением оборудования кухонной зоны разобрались. А есть еще требования в организации кухни-столовой?

Да! И имя ему — минимальная площадь помещений.

Минимальная площадь помещений

Требует соблюдение минимальной площади помещений жилых квартир все тот же – СП 54.13330.2022 Здания жилые многоквартирные:

Пункт 5.11 габариты жилых комнат и вспомогательных помещений квартиры следует определять с учётом требований эргономики и размещения необходимого набора внутриквартирного оборудования и предметов мебели:

  • 14 м² общей жилой площади в однокомнатной квартире;
  • 16 м² общей жилой площади в квартирах с числом комнат 2 и более;
  • 8 м² спальни;
  • 8 м² кухни;
  • 6 м² кухонной зоны в кухне-столовой;
  • 5 м² кухня или кухня-ниша в однокомнатных квартирах.

Дополнительно отметим — для жилой комнаты кроме минимальной площади, требуется соблюдение минимальной ширины каждой её сторон.

СП 31-107-2004 Архитектурно-планировочные решения многоквартирных жилых зданий пункт 6.1.9 Для квартир, проектируемых согласно требованиям таблицы 5.1 СНиП 31-01 и таблицы 6.1 настоящего Свода правил, ширина жилых комнат в новом строительстве должна быть не менее, м: общей комнаты (гостиной) - 3,2; спальни - 2,4.

В квартирах реконструируемых и модернизируемых жилых домов ширина жилых комнат допускается, не менее, м: общей комнаты (гостиной) - 2,8; одной из спален - 2,25.

Минимум: минимальная ширина всех сторон одной из жилых комнат в квартире – 2м 25см. Минимальная площадь жилой комнаты однокомнатной квартиры — 14 м².

Пример: если при перепланировке квартиры одна из жилых комнат не имеет ширину всех сторон 2м 25см, то данную перепланировку согласовать будет невозможно.

Комната и кухонная зона, коротко как должно быть:

  • Площадь жилой комнаты от 14 м² и более – в однокомнатной квартире;
  • Площадь жилой комнаты от 8 м² и более – в двух и более комнатной квартире*1
  • Ширина всех сторон одной из жилых комнат в квартире от 2м 25см и более;
  • Площадь кухонной зоны от 6 м² и более*2

*1 некоторые Администрации города трактуют СП 54.13330.2022 площадь жилой комнаты от 16 м²

*2 возможно реализовать кухонную зону 5 м²

Сразу ответим на возникший у Вас вопрос: это требование начало действовать в 2023 году в соответствии с СП.54.13330.2022 от 2022 года. И условие должно соблюдаться в учёте изменений. Существующие квартиры с наименьшей площадью считается нормой.

С размещением оборудования и площади помещений разобрались. Больше требований нет?

Есть! И оно применяется в том случае, если планируется разместить мойку кухни сильно далеко от кухонного стояка канализации.

И имя ему — коммуникации водоснабжения и водоотведения.

Канализация и вентиляция

Определяет необходимые требования систем водоснабжения и водоотведения СП 30.13330.2020 Внутренний водопровод и канализация зданий:

Пункт 18.11 Прокладка трубопроводов внутренней канализации не допускается:

  • под потолком, у стен, в стенах и в полу жилых комнат, спальных помещений;
  • под потолком кухонь.

Определяет требования к инженерным системам и оборудованию СП 54.13330.2022 Здания жилые многоквартирные:

  • пункт 9.11 Удаление воздуха следует предусматривать из кухонь (кухонь-столовых, кухонь-ниш), уборных (туалетов), ванных комнат (душевых), совмещенных санузлов;
  • пункт 9.12 Объединение вентиляционных каналов из кухонь, уборных, (туалетов), Ванных комнат (душевых), совмещенных санузлов, с газоиспользующим оборудованием не допускается;
  • пункт 9.26 Должна быть обеспечена возможность доступа к оборудованию, арматуре и приборам инженерных систем многоквартирного жилого здания и их соединениям для осмотра, технического обслуживания, ремонта и замены.

Исходя из вышеперечисленных требований, идея перенести мойку кухни далеко от существующего кухонного стояка канализации — имеет ряд ограничений и требует экспертного заключения.

В устройстве же вентиляции всё немного проще: необходимо проложить под потолок вентиляционный патрубок с механическим побуждением, от существующего кухонного канала, к новому размещению плиты.

Важно: размещение мойки надо продумать до заказа новой кухни.

Требований немного больше вышеперечисленного. Указано важное.

А что потребуют в районной межведомственной комиссии (МВК)?

Требования МВК

Разберём требования межведомственной комиссии (МВК) на примере Администрации Петроградского района.

До недавних пор, Администрация Петроградского района была категорически против устройства в квартирах кухонь-столовых, как единое помещение из кухни и жилой комнаты.

Чиновники требовали наличие раздвижных дверей между кухней и комнатой, оставляя по паспорту квартиры отдельно кухня, и отдельно комната.

И конечно же оборудование кухни электрическое.

На сегодняшний день, межведомственная комиссия при Администрации Петроградского района, обновила состав, и переосмыслила планировочное решение в устройстве кухни-столовой с электроплитами. Без каких-либо раздвижных дверей.

И да, закон единый для всех! Но трактуют его уполномоченные органы местной власти — на своё усмотрение. Исходя в первую очередь из соображений безопасности эксплуатации помещений многоквартирного дома.

Важно: кухня-столовая с газовой плитой не может быть согласована в Администрации Петроградского района.

Организации МВК и ПетербургГаз обособленные, и каждый действует по своему уставу.

У каждого свой начальник — а значит и свои распорядки. Вдобавок проект рассматривают в разных кабинетах и в разное время.

Крайне важно балансировать между двух сторон. Что могут разрешить одни, другие могут запретить! Не говоря уже о человеческом факторе.

Собрать и заказать придётся немалый объём документации, а также провести обследование технического состояния основных несущих конструкций здания — на предмет возможности проведения перепланировки, и определения необходимого набора мероприятий (томов проекта).

На основании всего перечисленного будут разработаны 2 проекта:

  1. Проект организации демонтажа внутридомового газопровода;
  2. Проект перепланировки и переустройства квартиры.

Документацию рассматривают уполномоченные органы, а именно:

  • управляющая компания дома;
  • МЧС России (районное ОГПН) - по требованию;
  • ПетербургГаз;
  • Госстройнадзор Санкт-Петербурга (ГСН);
  • межведомственная комиссия при Администрации района (МВК).

Срок получения государственной услуги до 45 календарных дней.

Подробнее о предоставлении государственной услуги Вы можете ознакомиться на портале государственных услуг. А что потребуют в ПетербургГаз?

Требования ПетербургГаз

А Вы уже звонили в ПетербургГаз? Получили сухой ответ?

Для отключения газа в квартире Вам необходимо предоставить проект, согласованный с МВК.

Определяет какие изменения в газифицированной квартире требуют согласования ГОСТ Р 58095.4-2021 «Переустройство сетей газопотребления домов жилых одноквартирных и жилых многоквартирных зданий»:

  • Пункт 8.1 Переустройство сетей газопотребления домов жилых одноквартирных и помещений жилых многоквартирных зданий проводят в соответствии с настоящим разделом с учетом жилищного законодательства.
  • Пункт 8.2 К работам, выполняемым при переустройстве сетей газопотребления. относят следующие:

— установку дополнительного бытового газоиспользующего оборудования;

— замену существующего бытового газоиспользующего оборудования с увеличением его единичной тепловой мощности;

— демонтаж или изменение места установки бытового газоиспользующего оборудования.

— прокладку внутренних газопроводов, в том числе с изменением их местоположения, диаметра или материала труб газопроводов;

— установку дополнительных или изменение местоположения существующих технических устройств.

  • Пункт 8.3 Переустройство сетей газопотребления домов жилых одноквартирных и помещений жилых многоквартирных зданий проводят на основании проекта, разработанного в соответствии с СП 402.1325800.2018. СП 60.13330.2016. СП 62.13330.2011. СП 54.13330.2016, СП 55.13330.2016, ГОСТ Р 58095.0. техническим регламентом, правилами, постановлением Правительства, исходя из объема выполняемых работ. Пакет документов по переустройству определяют в соответствии с нормативными правовыми актами субъекта Российской Федерации и согласовывают с территориальными органами исполнительной власти Российской Федерации в области жилищных отношений. В случае если в рамках переустройства предусмотрено увеличение объема потребляемого газа, заключают договор о подключении в соответствии с правилами.

Требования ПетербургГаз озвученные по телефону от оператора — вроде как понятно обозначены:

  1. Разработать проект;
  2. Согласовать проект с МВК;
  3. Принести им проект и решение МВК;
  4. Подтвердить выделенную электрическую мощность квартиры;
  5. Написать заявление, приложив к нему письменное согласие управляющей компании дома.

Важно: в отсутствии справки о выделенной электрической мощности квартиры и (или) её недостаточности, ПетербургГаз может отказать в отключении квартиры от системы газоснабжения.

Для наглядности приведём реализацию нашего проекта перепланировки и переустройства квартиры с отключением газа навсегда и увеличением электрической мощности с существующих 3 кВт по одной фазе до 15 кВт по трём фазам.

Пример: наш согласованный проект

Исходные данные для проектирования и результат нашего обследования:

  • квартира расположена на последнем этаже жилого дома;
  • нижерасположенная квартира имеет схожую планировку;
  • плита газовая;
  • горячее водоснабжение дома от газовых колонок;
  • междуэтажные перекрытия — деревянные по металлическим балкам;
  • обследование основных несущих конструкций квартиры проведено со вскрытием.

Важно:

  • по результатам обследования междуэтажное перекрытие квартиры (металлические балки) — признано работоспособным. Что не потребовало замены с расчётами нагрузок;
  • обязательным приложением к заключению, является — выписка СРО, документ подтверждающий, что организация является членом СРО*

*строительная бригада не имеет полномочий выдавать заключение.

план проекта с отметкой Администрации Петроградского района — «ПРОЕКТ СОГЛАСОВАН»
план проекта с отметкой Администрации Петроградского района — «ПРОЕКТ СОГЛАСОВАН»

Демонтаж газа ПетербургГаз

Демонтаж газовых труб и оборудования (плита, колонка) проводят на основании:

  1. Согласования МВК (проект и решение о согласовании переустройства);
  2. Письменного согласия управляющей компании дома.
согласие Жилкомсервис (отметка на заявлении ПетербургГаз)
согласие Жилкомсервис (отметка на заявлении ПетербургГаз)

ПетербургГаз выйдет на квартиру 2 раза по согласованию с Вами по телефону:

  1. на снятие объёма работ (обследование);
  2. на проведение работ обрезки внутриквартирного газопровода.

В назначенный день работ, бригаде инженеров ПетербургГаз необходимо предоставить доступ на въезд во двор.

На время проведения работ инженеры отключат газовый стояк парадной лестницы, предварительно оповестив факсограммой жильцов дома. Работы займут порядка 2х часов.

Оплата работ и составление акта об отключении бытового газоиспользующего оборудования оформляется на месте.

Завершающими действиями по отказу газоснабжения квартиры, будут 2 похода в:

  1. Газпром межрегионгаз Санкт-Петербург для подачи заявления на закрытие лицевого счета;
  2. ЕИРЦ Санкт-Петербурга для подачи заявления о смене тарифа с «газовая плита» на «электрическая».

Как изменить тариф за электроэнергию, читайте в нашем издании — Изменить тариф за электроэнергию. Смена тарифа с «газовая плита» на электрическую»

Советы по газу

Требования в организации изменений конфигурации внутридомового газопровода, достаточно обширны и описаны сложным профессиональным языком.

Мы обозначим очень простые, но очень важные рекомендации в организации ремонта и перепланировки газифицированной квартиры.

Рекомендации (самое важное):

  • Не зашивайте внутриквартирный газопровод. Его всё равно придётся оголить для работ обрезки;
  • В дизайне новой кухни необходимо спроектировать лючки доступа к транзитному газопроводу. Дизайнеры и строители в 99% случаев не знают, как это выполнить в соответствии с требованиями ПетербургГаз;
  • Не моделируйте на своё усмотрение лючки доступа к транзитному газопроводу. Большая практика имеется, когда собственникам приходится ломать перегородки для доступа;
  • Не начинайте шумные работы (демонтаж перегородок) без разрешения МВК. Шум и грязь на лестничной клетке спровоцируют звонки соседей в Жилищные ведомства. Отсутствие официального разрешения на проведение работ может повлечь за собой проблемы.

Дополнительная мощность

Существующей выделенной мощности квартиры в размере 3 кВт недостаточно для функционирования электрической плиты и духового шкафа кухни.

Поэтому мощность была увеличена до 15 кВт по трём фазам.

Были получены технические условия в управляющей компании дома — Жилкомсервис. И далее заключён договор с ПАО Россети Ленэнерго.

Как увеличить мощность, читайте в нашем издании — Электрическая мощность в квартире многоквартирного дома, как увеличить?

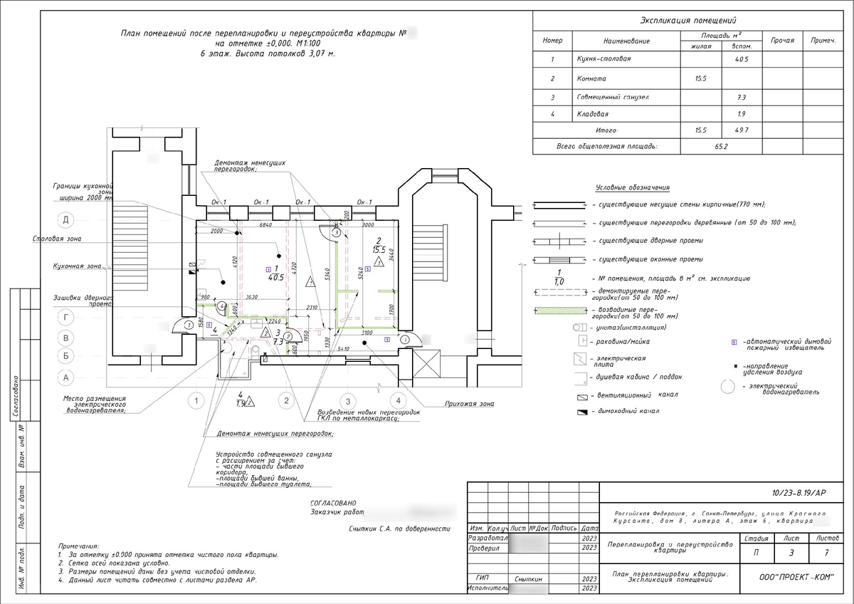
Новая планировка квартиры

планировка квартиры после переустройства и перепланировки
планировка квартиры после переустройства и перепланировки

Часто задаваемые вопросы

Вопрос 1: У меня в однокомнатной квартире площадь жилой комнаты меньше 14 м2, это нарушение?

Ответ: Нет, не нарушение. Эти требования учитываются в учёте изменений.

Вопрос 2: У меня ширина жилой комнаты меньше 2м 25см, это нарушение?

Ответ: Нет, не нарушение. Эти требования учитываются в учёте изменений.

Вопрос 3: А можно кухонную мойку подключить к стояку канализации санузла, и тогда не придется прокладывать трубы к кухонному стояку!?

Ответ: В теории да, это возможно, при условии: что управляющая компания дома не возражает – в письменной форме. А управляющие компании дома часто против этого, т.к. идет по их мнению перенагрузка на стояк канализации. В случае изменения конфигурации коммуникаций водоснабжения канализации, МВК требуют предоставить от управляющей компании дома: 1) Технические условия; 2) Согласие.

Вопрос 4: Администрация района запрещает зашивать трубы коммуникаций, это правомерно?

Ответ: Да, правомерно. Выход из данной ситуации - подготовить гарантийное письмо и заверить его в управдоме.

Вопрос 5: А разве разрешено увеличивать площадь кухни за счёт жилой комнаты, туалета и ванной комнаты?

Ответ: Есть ограничения по СП 54.13330.2022 Здания жилые многоквартирные:

п. 7.20 Размещение уборной (туалета), ванной комнаты (душевой), совмещенного санузла над жилыми комнатами и кухнями (кухнями-нишами и кухнями-столовыми) не допускается.
п. 7.21 Размещение кухни (кухни-ниши и кухонной зоны кухни-столовой) над жилыми комнатами не допускается.

Но у помещения "кухня-столовая" в отличии от помещения "кухня", есть преимущество – помещение делится на 2 зоны: кухонную и столовую.
Важно разместить кухонное оборудование в прежних границах кухни. А та часть, что будет увеличена за счёт жилой комнаты или мокрых зон, будет считаться столовой.