Добавить в корзинуПозвонить
Найти в Дзене

Ленточный фундамент своими руками за копейки

Всем привет! Давно не рассказывал о строительстве бани и дома на моём участке. Прошло уже немало времени, и я успел на 70% закончить баню, которой уже пользуемся, и поставить стены дома из газобетона. Но сегодня речь пойдёт о фундаменте, который мне обошёлся относительно дёшево. С размерами дома я определялся долго, затем сделал проект в программе Remplanner. Судя по мебели и другим элеметам, этой программой пользуются многие строительные организации. Определившись с размером дома и его планировкой, я стал выбирать фундамент. На тему выбора фундамента можно рассуждать много, но я остановился на ленточном мелкозаглубленном типе фундамента. Его размер я выбирал, исходя от нагрузок, которые будут на него воздействовать, а также отталкивался от удобства отделки цоколя и монтажа полов в доме. Таким образом, размер ленты получился следующим: Ширина - 400мм Высота - 600 мм Количество арматуры и её сечение я считал в строительном калькуляторе: Stroy-Calc. Процесс строительства Сперва нужно был
Оглавление

Всем привет! Давно не рассказывал о строительстве бани и дома на моём участке. Прошло уже немало времени, и я успел на 70% закончить баню, которой уже пользуемся, и поставить стены дома из газобетона. Но сегодня речь пойдёт о фундаменте, который мне обошёлся относительно дёшево.

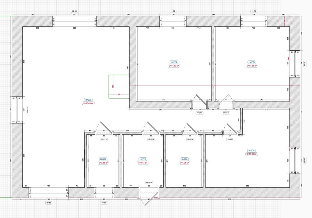
Проект, план дома.
Проект, план дома.

С размерами дома я определялся долго, затем сделал проект в программе Remplanner. Судя по мебели и другим элеметам, этой программой пользуются многие строительные организации.

Определившись с размером дома и его планировкой, я стал выбирать фундамент. На тему выбора фундамента можно рассуждать много, но я остановился на ленточном мелкозаглубленном типе фундамента. Его размер я выбирал, исходя от нагрузок, которые будут на него воздействовать, а также отталкивался от удобства отделки цоколя и монтажа полов в доме. Таким образом, размер ленты получился следующим:

Ширина - 400мм

Высота - 600 мм

Количество арматуры и её сечение я считал в строительном калькуляторе: Stroy-Calc.

Траншея под фундамент.
Траншея под фундамент.

Процесс строительства

Сперва нужно было определиться со способом копки траншеи. Кто-то советовал маленький трактор, кто-то говорил, что лучше в ручную. Мой знакомый согласился помочь мне с этим, и со своим напарником они выполнили эту задачу за 6 часов, попросив за работу 4000 руб. Больше брать отказались. Так как на основной работе они зарабатывали по 2000 в день.

Разделяем слои.
Разделяем слои.

Внешнюю часть ленточного фундамента я предполагал сразу утеплить экструзией 50мм, а опалубку я делал из щитов, собранных из осп плит, поэтому ширину траншеи делал +- 500 мм.

Участок имеет уклон, поэтому траншея получилась разной высоты, я уже сам выравнивал её по горизонту, заняло это у меня 3 часа. Затем я разделил слои с помощью геотекстиля 200-й плотности, который обошелся мне в районе 5000 руб. Сделал песчаную подушку и хорошо её затрамбовал узкой виброплитой. Песок - 10000 руб.

Подушка из песка.
Подушка из песка.

Далее я связал арматурный каркас. На удивление это делается не так уж и долго. Хомуты из 6мм арматуры мы нагнули за несколько часов, затем оставалось разложить горизонтальные пруты арматуры 12мм и можно вязать. Вот вязка это самый долгий процесс в этом деле. А если еще потерять второй крючок для вязки, который как сквозь землю провалился, то этот процесс затянется ещё на два часа :D. Я в итоге вязал самодельным крючком вставленным в шуруповерт, а Илья покупным крючком. Это процесс у нас занял в районе 4 часов. Арматура с доставкой обошлась мне в 19 200 руб.

Также я покупал звездочки и стульчики для фиксации каркаса в опалубке. Покупал с большим запасом. Мешок звёздочек и мешок стульчиков мне обошёлся в 4500 руб.

Каркас из арматуры.
Каркас из арматуры.

Внутренняя часть опалубки сделана из плиты осп - 9мм. Я её купил ещё зимой. И заплатил за неё 8000 руб. Наружняя часть сделана из экструзии, которую поддерживают доски. Саму экструзию я между собой крепил на гвозди. В рассчет можно ещё добавить куб дюймовки - 13000 руб.

Она у меня частично оставалась от строительства бани, и были ещё куски от старых стен бытовки, которые также я применял. Не забываем считать метизы и расходники (саморезы, гвозди, проволока, диски по металлу, бензин, масло и т.д.) - 5000 руб.

Теперь самое дорогое - бетон с доставкой. Я покупал бетон марки М300, но на заводе по знакомству, чтобы привезли нужное количество и качество. Я заказал на 1 куб с запасом - 12 кубов - 72 000 руб. В итоге из-за распертой местами опалубки и пролитых на землю тачек с бетоном, хватило только-только. Я думал, что первая машина забьёт всю площадь на 50 % и пока едет вторая машина я успею усилить опалубку. В итоге все происходило иначе и мне повезло, что опалубка вообще выдержала эту нагрузку. Растаскивать бетон по опалубке мне помогали друзья. Втроём вполне реально все сделать.

Лента после заливки.
Лента после заливки.

Первые 5 дней я каждое утро и вечер поливал её водой. На пятый день снял опалубку и привёл в порядок место вокруг фундамента, чтобы было удобно строить стены. Забегая вперёд скажу, что я сразу вынимал плодородный слой земли и застелил все геотекстилем.

Снятие опалубки и выравнивание земли.
Снятие опалубки и выравнивание земли.

Подведение итогов

Всего я потратил на материалы и некоторые работы - 140 700 рублей. Для фундамента это совсем небольшая сумма. Я звонил в некоторые компании и интересовался стоимостью именно такой ленты под ключ. Цены доходили до 800 000 рублей.

Надеюсь, что моя подготовка траншеи и качество бетона не подведут и все будет хорошо. Сейчас у меня уже стоят стены без армопояса, поэтому весной будет видно как себя чувствует лента.

Тепла и уюта Вашему дому.

Если статья была полезной, ставьте лайк и подписывайтесь на мой канал.

Обязательно пишите свое мнение в комментариях.