Добавить в корзинуПозвонить
Найти в Дзене
ЭТО ВАШ ИНТЕРЬЕР

Одинокая женщина купила "уставшую" квартиру и начала её полностью переделывать под себя (Смотрите фото До и После)

Героиня сегодняшней статьи — одинокая молодая женщина, которая приобрела квартиру в весьма "уставшем" состоянии. Она без раздумий пригласила к себе дизайнера, которой поставила задачу: создание светлого, легкого и современного пространства с элементами классики и винтажными атрибутами. Проект Прихожая Стены во входной группе покрасили светлой краской, а на полу использовали керамогранит с геометрическим узором. Слева от входной двери появился удобный пуфик и стол-консоль. Над пуфом имеется открытая вешалка для верхней одежды, а напротив установили вместительный шкаф. Гостиная Первая комната от прихожей — это гостиная. На стыке между входной группой и гостиной встал гардероб и книжный стеллаж вдоль стены. Напольное покрытие здесь — инженерная доска. У стены встал угловой светлый диван, который можно превратить в дополнительное спальное место для гостей. Напротив него находится телевизионная зона. Кухня Кухня осталась в своих прежних границах. Справа расположился угловой гарнитур с белы
Оглавление

Героиня сегодняшней статьи — одинокая молодая женщина, которая приобрела квартиру в весьма "уставшем" состоянии. Она без раздумий пригласила к себе дизайнера, которой поставила задачу: создание светлого, легкого и современного пространства с элементами классики и винтажными атрибутами.

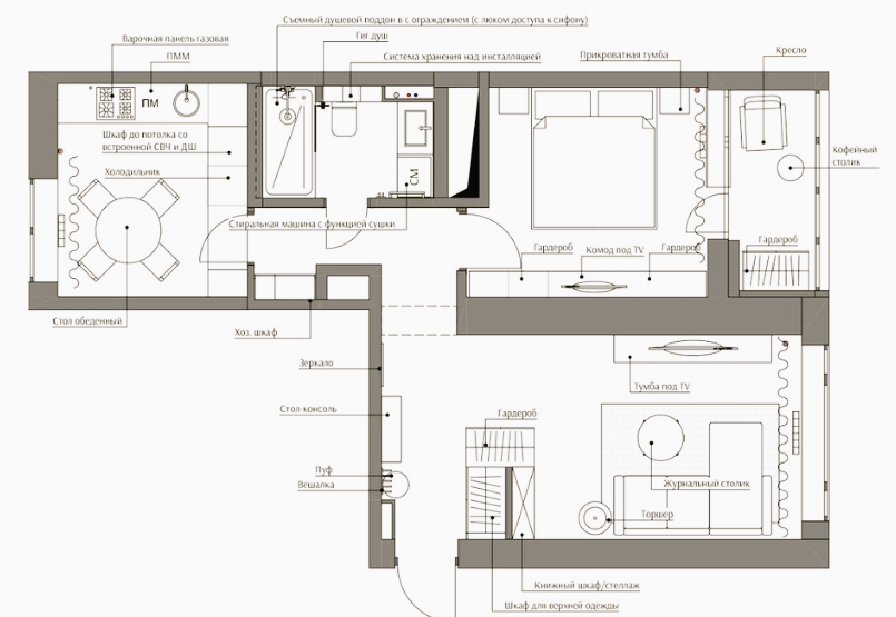
Проект

  • Местоположение: г. Москва
  • Площадь квартиры: 50 кв. м
  • Владельцы: женщина
-2

Прихожая

Стены во входной группе покрасили светлой краской, а на полу использовали керамогранит с геометрическим узором. Слева от входной двери появился удобный пуфик и стол-консоль. Над пуфом имеется открытая вешалка для верхней одежды, а напротив установили вместительный шкаф.

Гостиная

Первая комната от прихожей — это гостиная. На стыке между входной группой и гостиной встал гардероб и книжный стеллаж вдоль стены. Напольное покрытие здесь — инженерная доска. У стены встал угловой светлый диван, который можно превратить в дополнительное спальное место для гостей. Напротив него находится телевизионная зона.

Кухня

Кухня осталась в своих прежних границах. Справа расположился угловой гарнитур с белыми фасадами. От полноценного верхнего яруса хозяйка оказалась, так как ей вполне хватает нижних секций для хранения. К тому же здесь установлены функциональные пеналы, где расположилась вся бытовая техника (кроме посудомоечной машины, она расположена между плитой и раковиной). Напротив рабочей зоны находится обеденная группа.

Спальня

Отделка спальни ничем не отличается от отделки остальных помещений. В центре спальни находится большая кровать в зеленой обивке, которая прекрасно выделяется на белом фоне. Напротив установили большую систему хранения из "икеи", в которой есть небольшая ниша для телевизора.

Примыкающий балкон тоже полностью облагородили и организовали здесь уютную зону отдыха.

-7

Ванная комната

Для отделки стен и пола здесь использовали несколько видов керамической плитки. Слева от входа расположилась просторная душевая со стеклянной перегородкой, а напротив разместили раковину, тумбу и стиральную машину.

Если вам понравилась статья, то не забудьте поставить лайк и подписаться, чтобы не пропустить новый материал!

Так же пишите в комментариях, что вам понравилось в этом проекте, а что вызывает сомнения.