Найти в Дзене
Твоя квартира

Лучшая переделка! Смотрим, что получилось из обычной двухкомнатной хрущевки

Несмотря ни на что, хрущевки остаются одними из самых популярных квартир в России, в них живет большинство жителей нашей страны. Но планировка этих квартир давно устарела, в них очень не хватает мест хранения, маленькая кухня и санузел никого не оставляют равнодушным. Но благодаря современным технологиям из хрущевских квартир сейчас можно добиться того, что необходимо простому современному человеку от квартиры - простора, света и уюта! Итак, представляем вашему вниманию эту переделанную двухкомнатную хрущевку, которая влюбит в себя каждого. Здесь продумано все до мелочей, много встроенных шкафов и дополнительных мест хранения, которые заменили обычные шкафы, которые занимают много пространства. Без планировки здесь не обошлось. Коридор, соединяющий собой комнаты в квартире канул в Лету, на его месте теперь два встроенных шкафа и холодильник, а соединяет между собой комнаты теперь гостиная. Со стороны коридора первый встроенный шкаф, в котором прячется верхняя одежда владельцев квартир

Несмотря ни на что, хрущевки остаются одними из самых популярных квартир в России, в них живет большинство жителей нашей страны. Но планировка этих квартир давно устарела, в них очень не хватает мест хранения, маленькая кухня и санузел никого не оставляют равнодушным.

Но благодаря современным технологиям из хрущевских квартир сейчас можно добиться того, что необходимо простому современному человеку от квартиры - простора, света и уюта!

Итак, представляем вашему вниманию эту переделанную двухкомнатную хрущевку, которая влюбит в себя каждого. Здесь продумано все до мелочей, много встроенных шкафов и дополнительных мест хранения, которые заменили обычные шкафы, которые занимают много пространства.

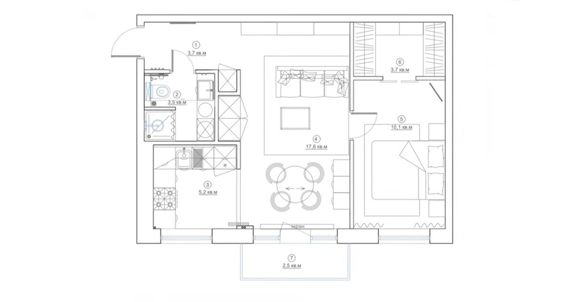
Без планировки здесь не обошлось. Коридор, соединяющий собой комнаты в квартире канул в Лету, на его месте теперь два встроенных шкафа и холодильник, а соединяет между собой комнаты теперь гостиная.

Со стороны коридора первый встроенный шкаф, в котором прячется верхняя одежда владельцев квартиры. В хрущевских коридорах не разгуляешься, поэтому здесь разместили зеркало, чтобы хоть как-то сделать пространство шире и небольшую стремянку, идеально вписавшуюся в интерьер.

Расположение всех встроенных шкафов вы можете увидеть на планировке квартиры!

Перейдем к гостиной. Здесь решили сделать много полок для книг, а диван расположить посередине комнаты лицом к окну. Вместо телевизора в квартире повесили проектор, закрыв плотные шторы, можно поднимать себе настроение новогодними фильмами.

Часть комнаты у окна занимает столовая, как и в большинстве хрущевок с перепланировкой, когда вход в кухню переносят в гостиную, здесь же располагают и столовую зону. Во-первых, так она не занимает место на, и без того маленькой, кухне, во-вторых, такое расположение очень стильное и простой обед дома может стать праздничным.

Кстати, второй встроенный шкаф, который находится в гостиной, является бытовым. Там спрятались гладильная и сушильная доски, пылесос, ведра и многое другое, что неприглядно глазу.

Так как в кухне оставили газ, ее отгородили стеклянной перегородкой от жилой комнаты, но эта перегородка практически всегда открыта, так что места на кухне не убавилось.

Площадь этой малышки 5,2 квадратных метра, но разместилось все и даже посудомоечная машина - незаменимая помощница современной хозяйки. В гарнитуре очень много шкафчиков и ящиков и даже скрытых ящиков.

Уже не новое место для холодильника, как вы уже догадались, он стоит на месте старого входа на кухню. Кстати, положив на подоконник несколько подушек, на нем можно будет сидеть.

То что сделали из этого санузла, выше всяких похвал. Да, от ванны пришлось отказаться, но зато получилось удобно разместить и унитаз, и душевую, и вместить просторную столешницу с раковиной и стиральной машинкой. Все современно и стильно, как и говорилось!

Стенка душевой кабины из стеклянных блоком, не утяжеляет пространство и является необычным украшением этого санузла.

Перейдем к самой интимной комнате в каждой квартире - спальне. Здесь ее разделили на две части: саму спальню и гардеробную комнату. где разместились все остальные вещи владельцев и не только.

Гардеробная комната в маленькой квартире - большая роскошь и мечту каждой девушки!

Учитывая то, что в шкафах потребность отпала, в спальне разместилась большая двуспальная кровать, пара тумбочек и кресло. Этого оказалось вполне достаточно для владельцев.

Как вам такой интерьер хрущевки? Хотели бы себе такой же?

Спасибо за ваши лайки и комментарии! Не забывайте подписываться на канал!