Найти в Дзене

Стильный, современный, комфортабельный дом с бассейном

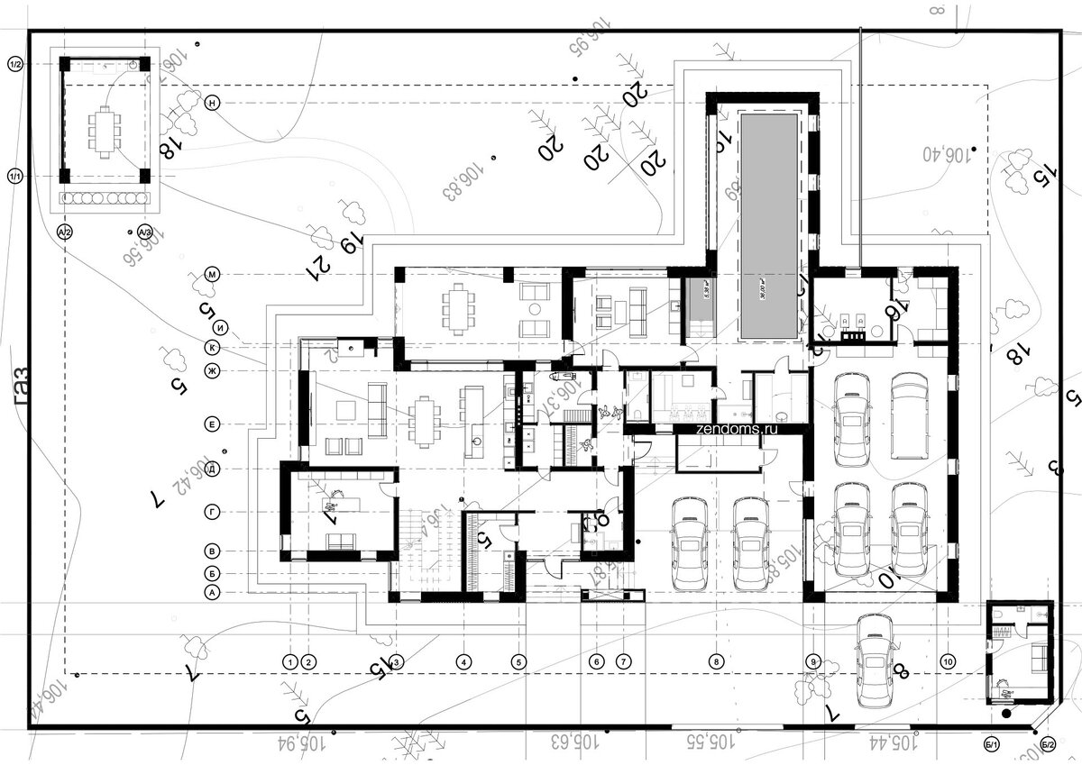
Хотим поделиться с Вами стильным и продуманным проектом, выполненный нашим партнером архитектором Сергеем Зенковым. Проект носит название "Имение" Основные моменты: - Участок площадью 20 соток в сосновом лесу Нижегородской области. Чтобы было проще в жизни, стройке и эксплуатации, решено объединить все в одном строении: дом, гараж, навес, баню и бассейн. Дополнили дом отдельной беседкой и домиком для персонала. Полезная площадь помещений - 640 кв.м.​ Выполненные проекты: эскизный проект, строительный проект в процессе разработки ФАСАД: кирпич ручной формовки, термообработанный планкен, алюмокомпозитная панель Планировка ПЛАН 1-ОГО ЭТАЖА
Хозяйственный блок включает гараж на четыре автомобиля, гардеробную, котельную.
Блок зоны СПА: бассейн, купель, сауна, хамам, комната отдыха, постирочная, раздевалка и туалет.
Жилой блок: гардеробная, гостевой санузел, кабинет, кухня с продуктовой кладовой и объединенную со столовой гостиную зону. ПЛАН 2-ОГО ЭТАЖА
Второй этаж вмещает в себя спальню су

Хотим поделиться с Вами стильным и продуманным проектом, выполненный нашим партнером архитектором Сергеем Зенковым. Проект носит название "Имение"

Основные моменты:

- Участок площадью 20 соток в сосновом лесу Нижегородской области. Чтобы было проще в жизни, стройке и эксплуатации, решено объединить все в одном строении: дом, гараж, навес, баню и бассейн. Дополнили дом отдельной беседкой и домиком для персонала.

Полезная площадь помещений - 640 кв.м.

Выполненные проекты: эскизный проект, строительный проект в процессе разработки

ФАСАД: кирпич ручной формовки, термообработанный планкен, алюмокомпозитная панель

Планировка

-2

ПЛАН 1-ОГО ЭТАЖА

Хозяйственный блок включает гараж на четыре автомобиля, гардеробную, котельную.
Блок зоны СПА: бассейн, купель, сауна, хамам, комната отдыха, постирочная, раздевалка и туалет.
Жилой блок: гардеробная, гостевой санузел, кабинет, кухня с продуктовой кладовой и объединенную со столовой гостиную зону.

-3

ПЛАН 2-ОГО ЭТАЖА

Второй этаж вмещает в себя спальню супругов со своей гардеробной и ванной, две детских спальни и гостевую спальню, каждая со своей душевой.

-4

Если Вас заинтересовал проект или ВЫ хотите увидеть другие работы Сергея Зенкова, то рекомендуем зайти на сайт zendoms.ru

А наша строительная кампания «Stone Wood House» воплотит в жизнь проект любой сложности. Озвучивайте задание, и мы подготовим для Вас предварительную смету.

☎ Позвоните нам для консультации: 8-965-199-61-04

#проекты загородного дома #проект частный дом #строительство #проектирование #стиль дома лофт #проекты с плоской крышей #загородные дома проекты #проектдома #ремонт #двухэтажный дом #проектдвухэтажногодома #проектдома #загородныйдом #коттедж