Добавить в корзинуПозвонить
Найти в Дзене
ЭТО ВАШ ИНТЕРЬЕР

«Это надо видеть» — супруги купили «запущенную» квартиру у пенсионеров и дали ей новую жизнь (фото до и после)

Герои моей сегодняшней статьи — молодая супружеская пара, которая давно мечтала переехать в новую квартиру, которая будет находится в старинном доме с историей. После долгих поисков, необходимый вариант нашелся, правда интерьер квартиры был в удручающем состоянии. Но данное обстоятельство вообще не смутило наших героев, и они решились на покупку. А после завершения сделки они обратились к дизайнеру. Проект Прихожая и коридор Ремонт начали с небольшой перепланировки. Пол во входной группе оформили плиткой с узором, а стены покрасили в насыщенный зеленый оттенок. Напротив входа установили систему хранения, а возле входной двери поставили пуфик. В коридоре разместили хозяйственный шкаф, который прикрыли драпировкой. Напротив него поставили контрактную консоль с красивым зеркалом. Кухня Вход на кухню перенесли в гостиную и установили здесь распашные двери. На полу использовали светлую плитку акцентным орнаментом. Слева от входа, где раньше был проход на кухню, теперь установили функционал
Оглавление

Герои моей сегодняшней статьи — молодая супружеская пара, которая давно мечтала переехать в новую квартиру, которая будет находится в старинном доме с историей. После долгих поисков, необходимый вариант нашелся, правда интерьер квартиры был в удручающем состоянии. Но данное обстоятельство вообще не смутило наших героев, и они решились на покупку. А после завершения сделки они обратились к дизайнеру.

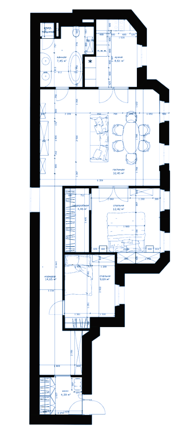
Проект

  • Местоположение: г. Санкт-Петербург
  • Площадь квартиры: 94 кв. м
  • Владельцы: супружеская пара
-2

Прихожая и коридор

Ремонт начали с небольшой перепланировки. Пол во входной группе оформили плиткой с узором, а стены покрасили в насыщенный зеленый оттенок. Напротив входа установили систему хранения, а возле входной двери поставили пуфик. В коридоре разместили хозяйственный шкаф, который прикрыли драпировкой. Напротив него поставили контрактную консоль с красивым зеркалом.

Кухня

Вход на кухню перенесли в гостиную и установили здесь распашные двери. На полу использовали светлую плитку акцентным орнаментом. Слева от входа, где раньше был проход на кухню, теперь установили функциональные колоны с бытовой техникой.

В глубине кухни расположился угловой гарнитур с синими фасадами. Стены тоже покрасили в обволакивающий синий цвет. Газовую колонку спрятали за коробом, предназначенный для вытяжки. Фартук облицевали белой плиткой.

Гостиная

Стены в гостиной покрасили в светлый оттенок и дополнили молдингами и прочим декором. На полу в жилой зоне использовали паркетную доску. В центре комнаты расположился шикарный диван, а напротив него поставили белоснежный комод (так как хозяева не смотрят телевизор, его устанавливать не было смысла).

Сразу за диваном была организована столовая группа с большим деревянным столом. Над обеденной зоной появилась красивая люстра.

Спальня

Так как хозяевам очень нравится синий цвет, он фигурирует не только на кухне, но и в спальне. Часть комнаты отдали под изолированную гардеробную. По центру разместили кровать в бордовом цвете. Прикроватные тумбочки тоже покрашены в синий цвет, чтобы они сливались со стенами.

Гостевая спальня еще не доделана, поэтому фотографий её не представлено.

Ванная комната

После перепланировки ванная комната значительно увеличилась в размерах. На полу уложили узорчатую плитку, а стены оформили двумя видами краски и красивыми обоями. Ванну установили отдельно стоящую, так как хозяйка давно о такой мечтала.

Если вам понравилась статья, то не забудьте поставить лайк и подписаться, чтобы не пропустить новый материал!

Так же пишите в комментариях, что вам понравилось в этом проекте, а что вызывает сомнения.