Добавить в корзинуПозвонить
Найти в Дзене

Одноэтажный дом из газобетона площадью 150 кв. м.

Добрый вечер, подписчики и клиенты. Завершили работу над проектом одноэтажного дома из газобетонных блоков с отделкой фасадов облицовочным кирпичом. Общая площадь дома с террасой 150,02 м². Фасады дома План кровли и заполнение проёмов Визуализация дома
Оглавление

Добрый вечер, подписчики и клиенты. Завершили работу над проектом одноэтажного дома из газобетонных блоков с отделкой фасадов облицовочным кирпичом. Общая площадь дома с террасой 150,02 м².

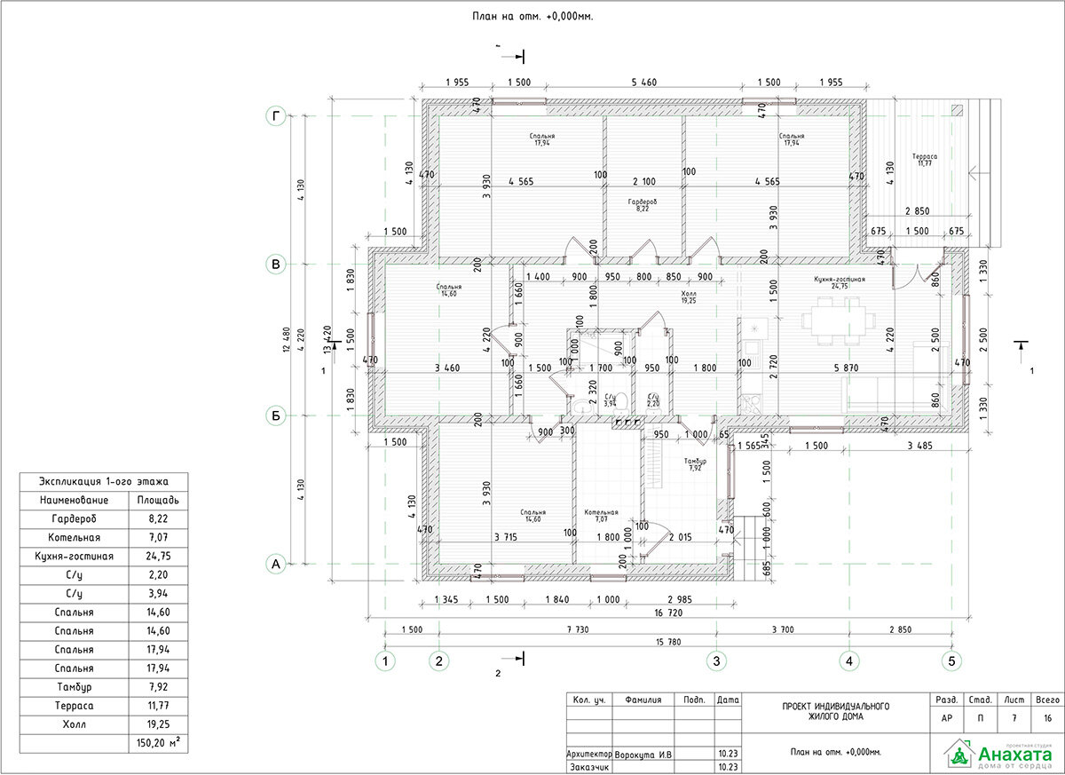
План первого этажа
План первого этажа
Разрез 1-1
Разрез 1-1
Разрез 2-2
Разрез 2-2

Фасады дома

Фасад в осях 1-4
Фасад в осях 1-4
Фасад в осях 4-1
Фасад в осях 4-1
Фасад в осях А-Г
Фасад в осях А-Г

План кровли и заполнение проёмов

План кровли
План кровли
Заполнение оконных и дверных проемов
Заполнение оконных и дверных проемов

Визуализация дома

-10
-11
-12
-13