Добавить в корзинуПозвонить
Найти в Дзене
Филдс

Новостройку 82 м² превратили в «деревенский дом»: интерьер в стиле фармхаус, который никого не оставит равнодушным

Дизайнер Татьяна Крыгина оформила трешку площадью 82 м² в новостройке для взрослой семейной пары. Требовалось создать спокойное, умиротворяющее пространство. Решить эту задачу помог неожиданный выбор стиля. Так, за останову взяли эстетику фармхаус. Планировка Гостиную и кухню объединили, остальные помещения остались в изначальных границах. В двух других комнатах оборудовали спальню и кабинет. Решить вопрос с хранением помогли просторный балкон и отдельная кладовая. Кухня-гостиная Опираясь на избранную концепцию деревенского дома, в отделке стен сочетали мазанку и деревянные доски. Пол уложили ПВХ-плиткой с текстурой состаренного дерева. Картину дополняют стилизованные под фармхаус межкомнатные двери — их изготовили на заказ, а также деревянные оконные откосы, выключатели в духе ретро и открытая проводка. Диванную группу в гостиной дополнили фальшокном с имитацией ставней из досок и отреставрированным винтажным комодом. ТВ-зону разместили вдоль смежной стены. Буфет слева от него — тож
Оглавление

Дизайнер Татьяна Крыгина оформила трешку площадью 82 м² в новостройке для взрослой семейной пары. Требовалось создать спокойное, умиротворяющее пространство. Решить эту задачу помог неожиданный выбор стиля. Так, за останову взяли эстетику фармхаус.

  • Общая площадь: 81,7 м²
  • Место: Красноярск
  • Тип дома: ЖК «Северное сияние»
  • Количество комнат: 3
  • Высота потолка: 2,6 м
  • Кто здесь живет: семейная пара
  • Фото: Дмитрий Куценко

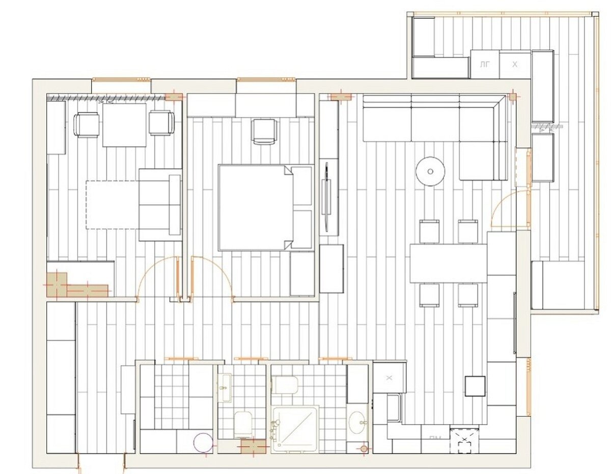
Планировка

Гостиную и кухню объединили, остальные помещения остались в изначальных границах. В двух других комнатах оборудовали спальню и кабинет. Решить вопрос с хранением помогли просторный балкон и отдельная кладовая.

Кухня-гостиная

Опираясь на избранную концепцию деревенского дома, в отделке стен сочетали мазанку и деревянные доски. Пол уложили ПВХ-плиткой с текстурой состаренного дерева. Картину дополняют стилизованные под фармхаус межкомнатные двери — их изготовили на заказ, а также деревянные оконные откосы, выключатели в духе ретро и открытая проводка.

Диванную группу в гостиной дополнили фальшокном с имитацией ставней из досок и отреставрированным винтажным комодом. ТВ-зону разместили вдоль смежной стены. Буфет слева от него — тоже винтажный. Биокамин справа вносит деревенский уют.

Обеденная группа выступает условной границей между гостиной и кухней. Стол из массива, выполненный на заказ, имитирует необработанную фактуру дерева. Стулья к нему подобрали из разных комплектов, чтобы поддержать атмосферу расслабленности и непринужденности.

-4

Гарнитур с ретрофиленками и фасадами с расстекловкой расположили буквой П и дополнили отдельно стоящим холодильником, боковую стену которого оформили грубыми досками. Впечатление деревенской кухни углубляет плитка на фартуке с состаренным эффектом.

Спальня

В отделке спальни помимо мазанки и досок также задействовали обои с изображением полевых цветов, которые вносят в интерьер природные мотивы. Они перекликаются с растениями в кадках на подоконнике. Кровать дополнили ретробра с открытыми проводами, также подобрали соответствующее постельное белье.

От привычных прикроватных тумб отказались. С одной стороны поставили стеллаж из массива, с другой — стол для рукоделия, опорой которому служит подстолье старой швейной машинки. Высокий шкаф для вещей выполнили на заказ в той же стилистике, что и остальную мебель.

-7

Кабинет

Интерьер кабинета создавался преимущественно под хозяина. Там он занимается йогой и просто отдыхает. Оставили свободное пространство для практик, также поставили диван, который может служить дополнительным спальным местом. Для хранения предусмотрели стеллаж и закрытый шкаф для книг.

Прихожая и коридор

Вдоль одной из стен в прихожей спроектировали вместительную систему хранения с встроенной скамьей-банкеткой. Антресольный ряд оставили открытым, чтобы украсить прихожую аутентичными коробами и корзинками. Напротив разместили большое зеркало в раме из грубого дерева и фактурную консоль для мелочей.

Санузлы

Ванную и туалет сохранили раздельными. Чтобы не выбиваться из стилистики, для стен подобрали керамогранит под состаренные доски. Пол отделали плиткой-пэчворк. В ванной эстетику фармхаус также подчеркивает тумба под раковину, а в уборной — ретроунитаз с верхним бачком.

Интересные мнения в комментариях приветствуются. Если материал понравился — ставь лайк!

🖤 Филдс — это не только блог на Дзене, но и магазин дизайнерских предметов интерьера. Заходите на сайт, чтобы увидеть мебель, которую дизайнеры выбирают для своих проектов.