Добавить в корзинуПозвонить
Найти в Дзене

Дизайн интерьера квартиры в Караганде

Дизайн-проект – это инструкция к вашему ремонту. Чем детальнее дизайн-проект, тем меньше будет сложностей в процессе ремонтных работ. В нашей студии «Dimetra» все чертежи разрабатываются индивидуально под ваш проект по техническому заданию. Работает команда: дизайнер интерьера, строитель и электроинженер. Благодаря дизайн-проекту вы не только получите удобное, продуманное и эстетически привлекательное жилище. Вы сэкономите бюджет, так как мы заранее просчитаем под ваш бюджет все материалы и предоставим скидки в магазинах города. В УСЛУГУ ВХОДИТ: ПОРЯДОК РАБОТЫ И ОПЛАТЫ: Возможна 100%-оплата в кредит или рассрочку от банков Kaspi и Jusan. Мы — «Dimetra» — студия дизайна, ремонта и мебели под ключ в г. Караганде. Привносим уют, красоту и удобство в жилые пространства от 50 м² 🔑 Над дизайн-проектом работает команда: дизайнер интерьера, строитель, электроинженер и иногда мебельщик. Ремонтируем более 1000 м² в год. Своя бригада 13 человек. Гарантия на ремонт 5 лет. Для получения бесплатно
Оглавление

Дизайн-проект – это инструкция к вашему ремонту. Чем детальнее дизайн-проект, тем меньше будет сложностей в процессе ремонтных работ. В нашей студии «Dimetra» все чертежи разрабатываются индивидуально под ваш проект по техническому заданию. Работает команда: дизайнер интерьера, строитель и электроинженер.

Благодаря дизайн-проекту вы не только получите удобное, продуманное и эстетически привлекательное жилище. Вы сэкономите бюджет, так как мы заранее просчитаем под ваш бюджет все материалы и предоставим скидки в магазинах города.

-2

В УСЛУГУ ВХОДИТ:

  • Заключение договора и выдача электронного чека.
  • Замеры в квартире.
  • Брифование (анкетирование).
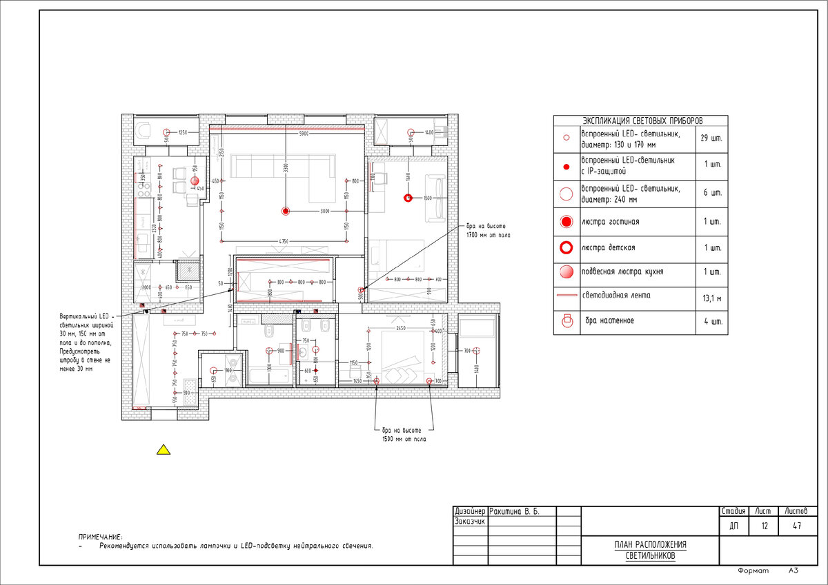
  • Разработка планировки, плана розеток, привязки светильников и другие чертежи.
  • Инженерные чертежи по электрике и сантехнике от специалистов с опытом более 15 лет.
  • Подбор материалов в магазинах Караганды (по вашему желанию – на рынках других городов и стран).
  • 3D-визуализации – реалистичные иллюстрации будущего интерьера.
  • Спецификация материалов, мебели, светильников и т.д.
  • Сопровождение по магазинам.
  • Акт выполненных работ и чеки по всем покупкам.
-3

ПОРЯДОК РАБОТЫ И ОПЛАТЫ:

  1. Бесплатная консультация онлайн или в офисе.
  2. Заключение договора. Вы оплачиваете 50% от стоимости, получаете электронный чек.
  3. Совместно заполняем бриф (техническое задание).
  4. Выезд на замеры.
  5. Разработка чертежей. Все чертежи разрабатываются постепенно, один за другим. Каждый чертёж вы утверждаете.
  6. Разработка стиля оформления.
  7. Создание 3Д-визуализаций.
  8. Утверждение.
  9. Печать альбома и вручение.
  10. Оплачиваете оставшиеся 50% от стоимости, получаете электронный чек и акт выполненных работ.

Возможна 100%-оплата в кредит или рассрочку от банков Kaspi и Jusan.

-4

Мы — «Dimetra» — студия дизайна, ремонта и мебели под ключ в г. Караганде.

Привносим уют, красоту и удобство в жилые пространства от 50 м² 🔑 Над дизайн-проектом работает команда: дизайнер интерьера, строитель, электроинженер и иногда мебельщик. Ремонтируем более 1000 м² в год. Своя бригада 13 человек. Гарантия на ремонт 5 лет.

Для получения бесплатной консультации обращайтесь:

  • Телефон: +7 706 616 09 22
  • Адрес: г. Караганда, ул. Ермекова 116, 2 этаж, офис 207 (по предварительной записи).