Найти в Дзене

Как поделить комнату с одним окном на 2 помещения?

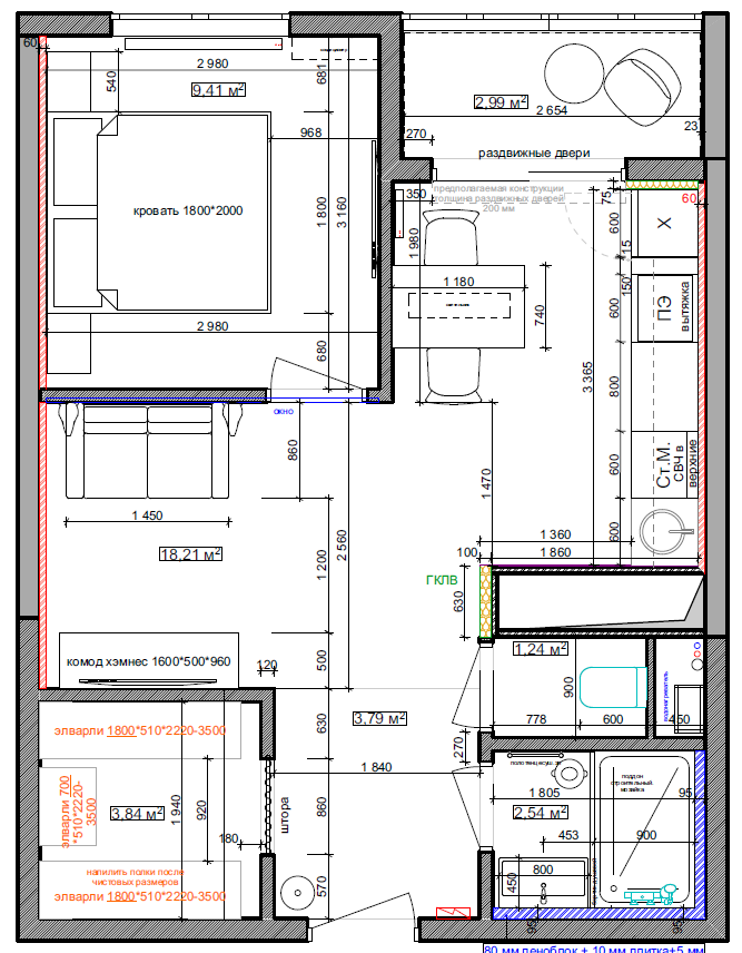
На написание этой статьи меня натолкнул комментарий подписчицы. Бывают такие ситуации, когда нужно как-то разместить людей, обозначив каждому из них личное пространство. Вот из того что есть создать. Часто бывает, что так я разграничиваю спальню и гостиную. Но как быть, если хочется, чтобы естественный свет проникал в новое помещение, а окно только 1? Вот тут мы вспоминаем, нетленную классику. Окно в Европу ванную. Да-да, оно самое. Архи того времени были повернуты на инсоляции, поэтому эти окна и лепили. Все уже придумали, осталось только подогнать под существующие реалии. А именно - подбираете размер и рельеф стекла. В стекольной мастерской по необходимым размерам изготавливаете такие световые полоски в рамах. (нет, никто не просит окно на пол стены делать, достаточно 20-35 см, в зависимости от высоты потолка.) Рельеф не только визуально лучше смотрится, но и искажает картинку. Матирование стекла в этом случае съедает больше света. Главное - уведомить строителей, потому, что необх

На написание этой статьи меня натолкнул комментарий подписчицы.

Бывают такие ситуации, когда нужно как-то разместить людей, обозначив каждому из них личное пространство. Вот из того что есть создать.

Часто бывает, что так я разграничиваю спальню и гостиную.

Фото собственность автора.
Фото собственность автора.

Но как быть, если хочется, чтобы естественный свет проникал в новое помещение, а окно только 1?

Вот тут мы вспоминаем, нетленную классику.

Кадр из х/ф "Собачье сердце"
Кадр из х/ф "Собачье сердце"

Окно в Европу ванную. Да-да, оно самое. Архи того времени были повернуты на инсоляции, поэтому эти окна и лепили.

https://www.ivd.ru/stroitelstvo-i-remont/vnutrennie-konstrukcii/zagadka-veka-dlya-chego-nuzhno-bylo-okno-v-vannoj-v-hrushchevke-i-chto-sdelat-s-nim-segodnya-112792
https://www.ivd.ru/stroitelstvo-i-remont/vnutrennie-konstrukcii/zagadka-veka-dlya-chego-nuzhno-bylo-okno-v-vannoj-v-hrushchevke-i-chto-sdelat-s-nim-segodnya-112792

Все уже придумали, осталось только подогнать под существующие реалии. А именно - подбираете размер и рельеф стекла. В стекольной мастерской по необходимым размерам изготавливаете такие световые полоски в рамах. (нет, никто не просит окно на пол стены делать, достаточно 20-35 см, в зависимости от высоты потолка.) Рельеф не только визуально лучше смотрится, но и искажает картинку. Матирование стекла в этом случае съедает больше света.

Главное - уведомить строителей, потому, что необходимо правильно собрать такую стену из подходящего материала.

Фото собственность автора.
Фото собственность автора.

Естественный свет будет проникать во второе помещение, в котором нет окна. Да, его будет меньше. И потребуется разнообразное хорошее освещение без биения. Но между вариантом "или так" "или никак", думаю каждый понимает компромиссность данного решения.

Такое окно можно сделать и во встроенной мебели. Как и саму перегородку.

https://design.pibig.info/6028-kak-razdelit-komnatu-shkafom.html
https://design.pibig.info/6028-kak-razdelit-komnatu-shkafom.html

В целом, каждая планировка индивидуальна и подходить нужно с учетом всех факторов, которые просто невозможно затронуть в статье. Поэтому я провожу индивидуальные консультации, на которых разбираю основные сложные моменты и рассказываю о том, какие перспективы есть у исходника.

С вас как всегда лайк за авторский контент. Кроме злого дизайнера никто и не напишет.

📄 Мой сайт (фото реализованных объектов и прайс)

📷 Мои инстаграм (запрещен и порицаем в РФ) В хайлайтс гигантское количество подборок из строительных и мебельных магазинов.

📝 Мой телеграмм-канал (инфа с текущих строек, подборки и находки необычных смесов, света и пр. и немного о жизни)