Добавить в корзинуПозвонить
Найти в Дзене

Дом с лаконичным экстерьером и удачной планировкой для семьи до 6 человек

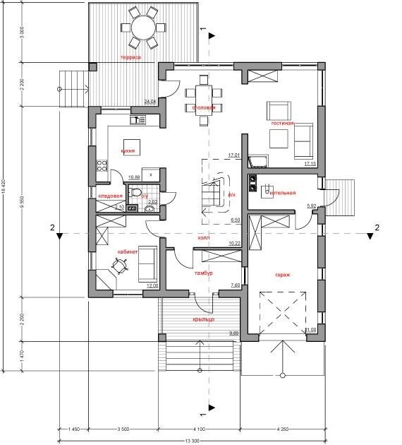
«Мюнстер» — это двухэтажный дом, завораживающий своей лаконичной эстетикой. Строгость форм и уникальность наружной отделки, сочетающей окрашивание и отделку деревом, создают образ надежной семейной крепости для семьи до 6 человек. В этом коттедже созданы все условия для гармоничной жизни, комфорта и полноценного отдыха каждого члена семьи и гостя. На первом этаже расположились тамбур, холл, кабинет, санузел, кухня с кладовой, столовая и гостиная. Столовая ведет на просторную открытую террасу. На втором этаже находятся три спальни и ванная комната. Автовладельцы оценят наличие гаража, который органично включен в экстерьер и позволит максимально бережно хранить свой автомобиль. Площадь дома - 225 кв.м.
Габариты - 18.4 x 13.3 м. Планировки Чтобы узнать стоимость проекта и строительства дома, а также более подробные его характеристики проходите по ссылке => проект «Мюнстер». Оставляйте заявку или связывайтесь с нашими менеджерами.⭐ Больше проектов Вы можете увидеть на нашем сайте stone-w

«Мюнстер» — это двухэтажный дом, завораживающий своей лаконичной эстетикой. Строгость форм и уникальность наружной отделки, сочетающей окрашивание и отделку деревом, создают образ надежной семейной крепости для семьи до 6 человек.

В этом коттедже созданы все условия для гармоничной жизни, комфорта и полноценного отдыха каждого члена семьи и гостя. На первом этаже расположились тамбур, холл, кабинет, санузел, кухня с кладовой, столовая и гостиная. Столовая ведет на просторную открытую террасу. На втором этаже находятся три спальни и ванная комната. Автовладельцы оценят наличие гаража, который органично включен в экстерьер и позволит максимально бережно хранить свой автомобиль.

Площадь дома - 225 кв.м.
Габариты - 18.4 x 13.3 м.

Планировки

Чтобы узнать стоимость проекта и строительства дома, а также более подробные его характеристики проходите по ссылке => проект «Мюнстер».

Оставляйте заявку или связывайтесь с нашими менеджерами.Больше проектов Вы можете увидеть на нашем сайте stone-wood-house.ru

Если среди просмотренных вариантов Вы так и не нашли подходящий проект дома, наши архитекторы готовы создать индивидуальный проект, предусматривающий все Ваши задумки и пожелания.

🎁 БОНУСЫ!!!Проект дома при заказе строительства бесплатно!
После завершения строительства на все конструктивные и несущие элементы дома гарантия — 5 лет.


🏡 Приглашаем Вас посетить наши строящиеся дома, чтобы Вы могли вживую оценить профессионализм, компетентность и ответственность нашей компании.

Есть вопросы по проекту или строительству? Задайте их нашим специалистам:

8-965-199-61-04

#проектдома #проектирование #коттедж #строимдом #строительствоиремонт #ремонт #недвижимость #строительство #загороднаянедвижимость #проекты загородного дома #проект частный дом #загородные дома проекты #проектдома #двухэтажный дом #проектдвухэтажногодома #резиденция #коттедж #архитектор #дизайн #проектодноэтажногодома #дом с гаражом проекты # дома с террасами #загородныйдом