Добавить в корзинуПозвонить
Найти в Дзене
Бутылин PRO интерьер

Узкий длинный коридор. Убрать нельзя оставить

Если в квартире есть длинный и узкий коридор, часто встает вопрос, сохранять его или избавляться. С одной стороны, коридор съедает полезную площадь, в нем мало света и сложно разместить мебель. С другой, он выступает буферной зоной между изолированными комнатами. Поэтому не всегда нужно избавляться от коридора. В этой статье покажем на примерах из наших проектов, что делать с бесполезными коридорами. Разберем два примера, когда его стоит убрать и два — когда можно оставить. Убрать. Расширяем пространство за счет коридора Чаще всего перегородку узкого коридора предлагается снести, чтобы увеличить пространство гостиной. В комнате становится светлее и просторнее, появляется больше вариантов размещения мебели. Пример 1. Четырехкомнатная квартира 114 м.кв. Уютная квартира, в которой мы избавились от длинного узкого коридора. Вместо него создали просторную гостиную-кухню с камином. От прежней перегородки осталась только небольшая реечная, которая визуально скрывает зону отдыха от прихожей. П
Оглавление

Если в квартире есть длинный и узкий коридор, часто встает вопрос, сохранять его или избавляться. С одной стороны, коридор съедает полезную площадь, в нем мало света и сложно разместить мебель. С другой, он выступает буферной зоной между изолированными комнатами. Поэтому не всегда нужно избавляться от коридора.

В этой статье покажем на примерах из наших проектов, что делать с бесполезными коридорами. Разберем два примера, когда его стоит убрать и два — когда можно оставить.

Убрать. Расширяем пространство за счет коридора

Чаще всего перегородку узкого коридора предлагается снести, чтобы увеличить пространство гостиной. В комнате становится светлее и просторнее, появляется больше вариантов размещения мебели.

Пример 1. Четырехкомнатная квартира 114 м.кв.

Уютная квартира, в которой мы избавились от длинного узкого коридора. Вместо него создали просторную гостиную-кухню с камином. От прежней перегородки осталась только небольшая реечная, которая визуально скрывает зону отдыха от прихожей.

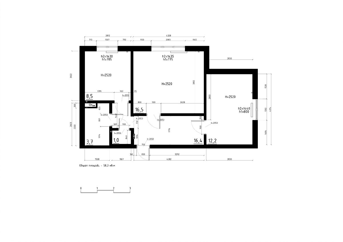
Пример 2. Двухкомнатная квартира 58 м.кв.

Здесь мы избавились от коридора, даже не слишком узкого. Зато благодаря увеличению пространства выделили дополнительную спальню для родителей за стеклянной перегородкой у окна. Кроме этого в прихожей и гостиной стало больше естественного света.

Оставить. Используем коридор функционально

Есть ситуации, когда длинный коридор становится функционально оправдан. Если в квартире важно изолировать комнаты или стены коридора используются для хранения. А иногда и невозможно снести перегородки. Ниже пара примеров.

Пример 3. Двухкомнатная квартира 85 м.кв.

Узкий коридор в этой квартире находится отдельно от остальных комнат, поэтому вариант с объединением не подходит. Мы встроили шкафы вдоль всего коридора и получили вместительную систему хранения. Чтобы визуально скрыть узкие габариты, двери шкафа, потолок и стены выполнены в белом цвете, а на противоположной стене разместили большое зеркало.

Пример 4. Трехкомнатная квартира 86 м.кв.

Здесь мы улучшили коридор за счет расширения и выравнивания. В ниши встроили вместительные шкафы со стороны коридора, и колонку с бытовой техникой со стороны кухни. В коридоре стало просторнее, а ненужных углов - меньше.

Выбирая квартиру, обращайте внимание на форму коридора. Будете вы использовать его в качестве прохода, или же попробуете сделать полноценной частью комнаты?

Мы готовы создать несколько вариантов планировочных решений, чтобы помочь вам найти решение даже в сложной планировке.

Для получения консультации дизайнера и расчета стоимости планировки по вашим запросам, просто оставьте заявку.