Добавить в корзинуПозвонить
Найти в Дзене
ЭТО ВАШ ИНТЕРЬЕР

"А вы смогли бы здесь жить?" -— родители купили дочке квартиру 23 м² и показали, как сделали ремонт (дочка такого не ожидала)

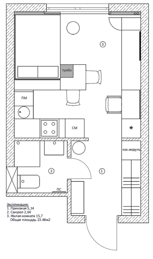
После того как наша героиня поступила в университет, её родители решили сделать ей шикарный подарок, а именно — они купили квартиру. Так как бюджет был ограниченным, купленная квартира не блещет своей площадью — общая площадь составляет 23,48 м², а жилая 15,7. Но несмотря на это, квартиру обустроили так, что здесь уместили всё необходимое и даже больше (дочь была в восторге). Проект Прихожая По просьбе молодой хозяйки — интерьер сделали в светлых тонах. На полу в прихожей использовали светлую плитку, а стены покрашены моющейся краской. Входную дверь тоже заменили, чтобы она вписывалась в новый интерьер. Слева от входа разместили обувницу, а напротив неё расположилась вместительная система хранения с зеркальными дверцами. В этой же системе хранения находится хозяйственная секция. Комната При входе в помещение организовали полноценную кухонную зону. Здесь встал вместительный гарнитур в виде буквы "П". Верхние фасады имитируют деревянную поверхность, а нижние выполнены в классическом бел
Оглавление

После того как наша героиня поступила в университет, её родители решили сделать ей шикарный подарок, а именно — они купили квартиру. Так как бюджет был ограниченным, купленная квартира не блещет своей площадью — общая площадь составляет 23,48 м², а жилая 15,7. Но несмотря на это, квартиру обустроили так, что здесь уместили всё необходимое и даже больше (дочь была в восторге).

Проект

  • Местоположение: Подмосковье
  • Площадь квартиры: 23 кв. м
  • Владельцы: девушка студентка

Прихожая

По просьбе молодой хозяйки — интерьер сделали в светлых тонах. На полу в прихожей использовали светлую плитку, а стены покрашены моющейся краской. Входную дверь тоже заменили, чтобы она вписывалась в новый интерьер. Слева от входа разместили обувницу, а напротив неё расположилась вместительная система хранения с зеркальными дверцами. В этой же системе хранения находится хозяйственная секция.

-2

Комната

При входе в помещение организовали полноценную кухонную зону. Здесь встал вместительный гарнитур в виде буквы "П". Верхние фасады имитируют деревянную поверхность, а нижние выполнены в классическом белом цвете. Несмотря на небольшую площадь кухни, здесь удалось расположить всё необходимое. За фасадами скрываются стиральная и посудомоечные машины (холодильник находится справа от входа в комнату).

Часть столешницы использовали, как столовую группу. Здесь же установили деревянные рейки, которые визуально зонируют кухню от спальни, но при этом не крадут естественный свет.

Сразу за этой перегородкой находится компактная спальня. У стены поставили двуспальную кровать изголовьем к кухне. Стену возле кровати сделали акцентной и оформили её мягкими декоративными панелями.

-5

На противоположной стене появилась телевизионная стенка и сам телевизор. Эта стенка так же включает в себя небольшую банкетку. Здесь же организовали небольшое рабочее место для хозяйки.

Ванная комната

Стены и пол в ванной комнате облицевали двумя видами светлой плитки. От классической ванны пришлось отказаться, а вместо неё здесь установили небольшую душевую кабинку.

-7

Если вам понравилась статья, то не забудьте поставить лайк и подписаться, чтобы не пропустить новый материал!

Так же пишите в комментариях, что вам понравилось в этом проекте, а что вызывает сомнения.

Если вам интересна тематика дач, загородных домов и сада, то смело заходите на мой второй новый канал)