Добавить в корзину
Позвонить
Найти в Дзене
Войти
Архитектура, дизайн и ремонт
Подписаться
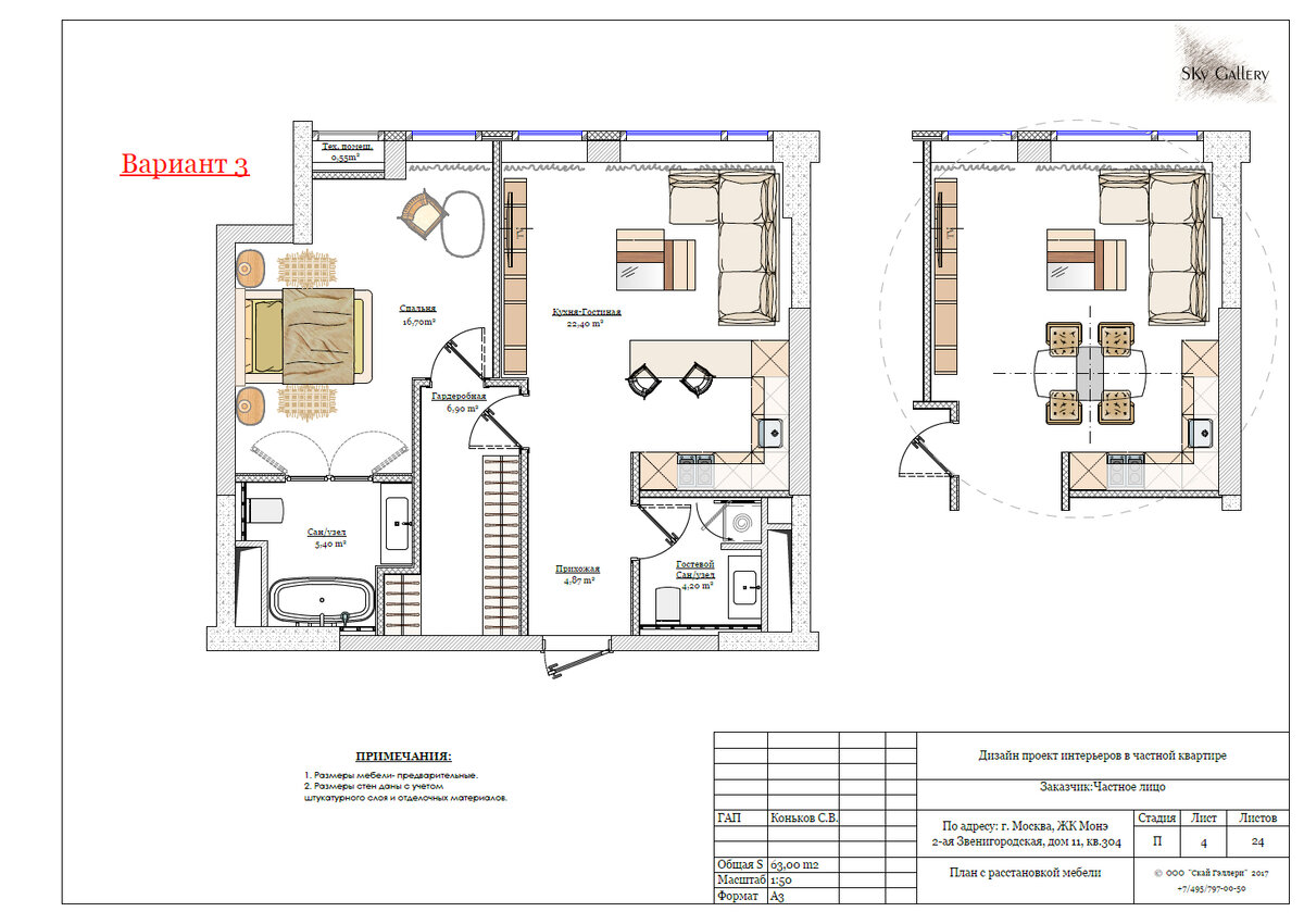
ЖК Монэ, Варианты Планировки с расстановкой мебели
6 ноября 2023
6 ноя 2023
3
...
Читать далее
350479030.785.1779284338019.93641