Добавить в корзину
Позвонить
Найти в Дзене
Войти
Архитектура, дизайн и ремонт
Подписаться
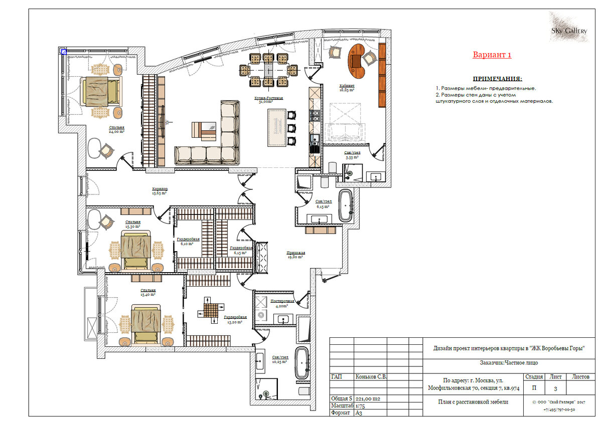
ЖК Воробьевы горы, Варианты Планировки с расстановкой мебели
6 ноября 2023
6 ноя 2023
7
...
Читать далее
3520491134.1404.1779284472827.75164