Добавить в корзину
Позвонить
Найти в Дзене
Войти
ФИЗМАТ
30 подписчиков
Подписаться
Построение эпюр внутренних усилий и опредление перемещений в статически определимой раме
5 ноября 2023
5 ноя 2023
8
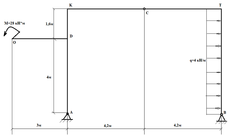
1. Расчетная схема.
1. Расчетная схема.
...
Читать далее
1. Расчетная схема.
3785792931.959.1779702366893.58794