Найти в Дзене
ДОМ с умом

Проект "Эритея" отличная альтернатива трёхкомнатной квартире: 2 спальни и кухня-гостиная

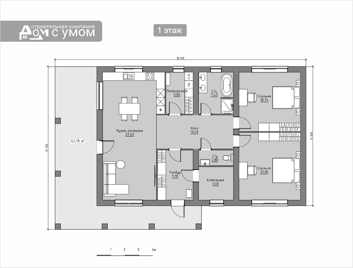
Это одноэтажный дом площадью 122 квадратных метра. Коттедж обладает привлекательным внешним видом и удобной организацией внутреннего пространства. В нем нет ничего лишнего, но при этом есть все для комфортной загородной жизни. Характеристики: Общая площадь: 170 кв.м
Жилая площадь: 122,3 кв.м
Габариты: 18 м х 11,7 м
Фундамент: монолитная железобетонная плита
Стены: газобетонный блок 400 мм
Отделка фасада: декоративная штукатурка и планкен
Чердачное перекрытие - сборные железобетонные плиты перекрытия
Крыша - из металлочерепицы по деревянной стропильной системе Планировка: Современный коттедж в минималистичном стиле отлично подойдет для проживания семьи из 3 человек. В доме есть все, что нужно для создания семейного гнезда – просторная кухня-гостиная с выходом на летнюю террасу, два санузла, две спальни, а также гардеробные и постирочная. ▪️▪️▪️▪️▪️▪️▪️▪️▪️▪️▪️▪️▪️▪️▪️▪️▪️▪️▪️▪️▪️▪️▪️▪️▪️▪️▪️▪️▪️▪️▪️▪️▪️
📌Жилая площадь – 122,3 кв.м
📌Кухня-гостиная - 37,4 кв.м
📌Спальни – 2 ш
Оглавление

Это одноэтажный дом площадью 122 квадратных метра. Коттедж обладает привлекательным внешним видом и удобной организацией внутреннего пространства. В нем нет ничего лишнего, но при этом есть все для комфортной загородной жизни.

Характеристики:

Общая площадь: 170 кв.м
Жилая площадь: 122,3 кв.м
Габариты: 18 м х 11,7 м
Фундамент: монолитная железобетонная плита
Стены: газобетонный блок 400 мм
Отделка фасада: декоративная штукатурка и планкен
Чердачное перекрытие - сборные железобетонные плиты перекрытия
Крыша - из металлочерепицы по деревянной стропильной системе

Планировка:

Современный коттедж в минималистичном стиле отлично подойдет для проживания семьи из 3 человек. В доме есть все, что нужно для создания семейного гнезда – просторная кухня-гостиная с выходом на летнюю террасу, два санузла, две спальни, а также гардеробные и постирочная.

-2

▪️▪️▪️▪️▪️▪️▪️▪️▪️▪️▪️▪️▪️▪️▪️▪️▪️▪️▪️▪️▪️▪️▪️▪️▪️▪️▪️▪️▪️▪️▪️▪️▪️
📌Жилая площадь – 122,3 кв.м
📌Кухня-гостиная - 37,4 кв.м
📌Спальни – 2 шт.
📌Терраса - 47,7 кв.м

▪️▪️▪️▪️▪️▪️▪️▪️▪️▪️▪️▪️▪️▪️▪️▪️▪️▪️▪️▪️▪️▪️▪️▪️▪️▪️▪️▪️▪️▪️▪️▪️▪️
Стоимость проектной документации (серии АР, КР) - 25 000 руб.