Найти в Дзене

Как превратить блочную коробку в стильный дом. Часть 1.

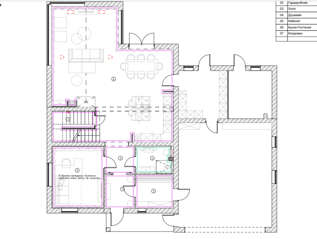
На этапе проектирования дома архитектор учитывает ваши пожелания и рисует план помещений в соответствии с ними. Но по завершению строительных работ вы получаете лишь стены из выбранного материала и черновые перекрытия, плюс крышу. Чтобы превратить «коробку» в уютное жилое пространство потребуется приложить усилия, к счастью, эту работу можно переложить на плечи дизайнеров-интерьера. Сегодня расскажем об одном таком проекте студии Remplanner, это двухэтажный дом из блоков, и жить в нем будет семья с 2 детьми. В этой статье всё о планировке и оформлении 1 этажа. Немного о планировке – у нас есть пристроенный к дому гараж, из него есть вход в дом, плюс имеется бойлерная с отдельным входом и холодная кладовая. Эти три помещения отображены на плане, но не являются частью дизайн-проекта по понятным причинам. Первый этаж у нас главным образом общественная территория – 75 м2 занимает кухня-гостиная. Также здесь расположена гардеробная, душевая, кабинет главы семьи и небольшая прихожая. Прихожа
Портфолио Remplanner
Портфолио Remplanner

На этапе проектирования дома архитектор учитывает ваши пожелания и рисует план помещений в соответствии с ними. Но по завершению строительных работ вы получаете лишь стены из выбранного материала и черновые перекрытия, плюс крышу. Чтобы превратить «коробку» в уютное жилое пространство потребуется приложить усилия, к счастью, эту работу можно переложить на плечи дизайнеров-интерьера. Сегодня расскажем об одном таком проекте студии Remplanner, это двухэтажный дом из блоков, и жить в нем будет семья с 2 детьми. В этой статье всё о планировке и оформлении 1 этажа.

Портфолио Remplanner
Портфолио Remplanner

Немного о планировке – у нас есть пристроенный к дому гараж, из него есть вход в дом, плюс имеется бойлерная с отдельным входом и холодная кладовая. Эти три помещения отображены на плане, но не являются частью дизайн-проекта по понятным причинам.

Первый этаж у нас главным образом общественная территория – 75 м2 занимает кухня-гостиная. Также здесь расположена гардеробная, душевая, кабинет главы семьи и небольшая прихожая.

Прихожая отделена от жилой части раздвижными дверьми в цвет стен. Хоть она и отапливается, зимой там будет прохладнее, ну и с точки зрения отделения грязной зоны такой вариант практичнее.

Портфолио Remplanner
Портфолио Remplanner

Выглядит она довольно скромно – реечная вешалка, большой серый шкаф с рифлеными фасадами, зеркала и пуфы. Между зеркалами дверь – она ведет в гардеробную.

Портфолио Remplanner
Портфолио Remplanner

Особенность гардеробной в том, что она проходная, через нее можно попасть в гараж и наоборот – пройти в дом прямо из гаража, очень удобно в плохую погоду. Так что в торцах гардеробной находятся двери.

Портфолио Remplanner
Портфолио Remplanner

Еще в этой гардеробной есть окно, а значит естественное освещение, что бывает крайне удобно. Но самая крутая вещь – выдвижные стеллажи с обувью! Эту опцию точно оценит каждая женщина – легким нажатием открываем целую колонну с обувью, где все на своем месте, все на виду!

Также здесь предусмотрены открытые полки для чемоданов, сумок и каких-то повседневных вещей. Напротив стеллажей большой шкаф во всю стену.

Портфолио Remplanner
Портфолио Remplanner

В нем три большие секции, центральная с зеркальными фасадами, наполнение стандартное для наших шкафов и гардеробных: выдвижные ящики в нижней части, штанги в средней и полки для хранения объемных вещей наверху.

Возвращаемся в коридор, проходим через раздвижные двери и попадаем в жилое пространство. Слева и справа межкомнатные двери. Левая со звукоизоляцией – за ней кабинет главы семьи.

Портфолио Remplanner
Портфолио Remplanner

Изначальное пожелание было оформить все в черном цвете, мы предложили альтернативу – матовый темный графит. Он также смотрится стильно, но не такой драматичный и обладает всеми плюсами черного цвета.

Портфолио Remplanner
Портфолио Remplanner

Традиционным компаньоном темного цвета является дерево, это всегда идеальное сочетание, если вы стремитесь к классическому, благородному интерьеру. Одну стену кабинета занимает шкаф с открытыми полками, причем задние стенки полок имеют черный, матовый цвет, в сочетании с подсветкой теплого цвета выглядят атмосферно. Сам шкаф выполнен из МДФ с отделкой натуральным шпоном, его мы подбирали в тон инженерной доски, которой застелен пол во всем доме.

Портфолио Remplanner
Портфолио Remplanner

На обоих окнах римские шторы из натурального льна, окрашенного в темный цвет, как и стены. Откосы тоже покрашены, а вот подоконники из массива дерева, дуб с покрытием воском.

За счет использования 3D панелей на всех стенах, кабинет выглядит необычайно фактурным, даже в таком темном цвете. Минимальный декор на стенах и большой цветок в углу не нарушают строгость интерьера и не отвлекают от рабочего процесса. Еще один плюс - на темном фоне прекрасно "растворяются" черные радиаторы и ТВ, добавляя интерьеру строгости и минималистичного шика.

Портфолио Remplanner
Портфолио Remplanner

Напротив кабинета дверь в санузел. Здесь размещается душевая, инсталляция с черным подвесным унитазом и умывальник с закругленной тумбой.

Портфолио Remplanner
Портфолио Remplanner

Пол оформлен керамогранитом с текстурой дерева, такой же вариант, только в другом оттенке, использован для отделки стен с душевой и умывальником. При этом использована укладка елочкой.

Портфолио Remplanner
Портфолио Remplanner

Остальные стены отделаны крупноформатным керамогранитом с имитацией серого мрамора.

Портфолио Remplanner
Портфолио Remplanner

Интересный прием – установка встроенного короба-витрины с живыми растениями и подсветкой на стене возле инсталляции. Оригинальный декор имитирующий окно и способствующий поддержанию микроклимата в помещении.

Портфолио Remplanner
Портфолио Remplanner

Далее идет лестница на второй этаж, пространство под ней превращено в хозблок. Сама лестница заслуживает отдельного внимания – это железобетонная конструкция обшитая инженерной доской.

Подсветка здесь включается через датчики движения, установленные вверху и внизу, и встроена она в перила, на поворотной площадке тоже предусмотрена подсветка.

На верху кроме стеклянного ограждения имеется мобильное, складное, используемое для того, чтобы маленькие дети или животные не могли без присмотра спускаться или заходить на 2 этаж.

Портфолио Remplanner
Портфолио Remplanner

Переходим в самое главное помещение в доме – кухню-гостиную, оформлена она в сдержанных серых тонах с теплыми деревянными текстурами в отделке и мебели. Сразу отметим, что помещение функционально делится на 4 зоны, которые угадываются почти сразу.

Портфолио Remplanner
Портфолио Remplanner

Первая – кухня. Стильная, современная, прежде всего практичная, но не лишенная декоративной составляющей: витрина со стеклянным фасадом в торце. Здесь у нас сочетается МДФ в эмали и фактурном пластике с имитацией светлого ореха.

Портфолио Remplanner
Портфолио Remplanner

Пластик использован для обрамления и изготовления столешниц и фартука в рабочей зоне. В отличие от натурального дерева, он долговечнее, устойчив к царапинам и не требует регулярного обновления покрытия.

Портфолио Remplanner
Портфолио Remplanner

В кухне два уровня подсветки рабочей зоны, общий свет обеспечивают накладные потолочные светильники, а локальную подсветку острова реечные подвесы. Кстати, сам остров тут «парящий» - эффект достигнут благодаря белому, контрастному цоколю и подсветке по всему периметру. Чтобы сохранить функциональность острова и добавить ему опцию барной стойки, столешница была расширена, а две опоры по углам обеспечивают ей надежность и устойчивость.

Портфолио Remplanner
Портфолио Remplanner

Следующая зона – столовая. Между ней и кухней можно заметить дверь скрытого монтажа, которая ведет в большую кладовую, она позволяет разгрузить кухню и дает возможность в любой момент сходить за нужными продуктами.

Портфолио Remplanner
Портфолио Remplanner

Сама столовая верх минимализма – простой прямоугольный стол с натуральным шпоном, классические деревянные полукресла в мягкой обивке серого цвета. Над столом дизайнерская люстра из трех колец, на стене в торце стола большое зеркало в деревянной раме. Завершают образ стильные, плотные шторы из натуральной ткани, обрамляющие панорамное окно с выходом в сад.

Кстати, вы могли заметить, что нигде нет внутренних блоков кондиционирования. Потому что здесь используется рекуператор, поддерживающий комфортную температуру и свежесть воздуха в доме в любое время года. В потолке и верхней части кухни можно увидеть решетки воздуховодов. Также отопление обеспечивают внутрипольные конвекторы в месте установки панорамных окон, чугунные радиаторы и теплый водяной пол.

Далее у нас идут каминная и ТВ зона, или же зона кинотеатра. Их разделяет большой диван, точнее это модульный диван на две стороны. В каминной зоне его дополняет большое, низкое кресло и резной столик из натурального дерева.

Для этого проекта мы выбрали современную П-образную стеклянную топку – любоваться игрой живого пламени можно с трех сторон, то есть одинаково красиво такой камин выглядит и из кухни-столовой, и из гостиной. Благодаря особой технологии подачи воздуха в топку (воздухозаборная решетка в каменном основании), происходит постоянный обдув стекол, и они не покрываются копотью.

Портфолио Remplanner
Портфолио Remplanner

В зоне открытия дверцы топки и по всей ширине каминной зоны на полу уложен керамогранит, как того требует пожарная безопасность. Нижняя часть топки и соседняя с ней дровница облицованы натуральным камнем, а сверху дымоход обшит гипсокартоном с базальтовой термоизоляцией и декорирован фрезерованными МДФ-панелями с натуральным шпоном.

Портфолио Remplanner
Портфолио Remplanner

Можно использовать и деревянные панели, но МДФ выходит дешевле и практичнее. В верхней части короба две узких вентрешетки, они обеспечивают отвод излишков тепла от дымохода.

Портфолио Remplanner
Портфолио Remplanner

Чтобы просмотр фильмов был комфортным в любое время суток, для панорамных окон предусмотрены жалюзи и плотные шторы блэкаут. На выбор есть два экрана – плазма с большой диагональю и экран для кинопроектора, который прячется в специальную потолочную нишу. Там же, на потолке, расположены скрытые колонки саунд-системы.

В следующий раз расскажем о планировке и оформлении интерьера второго этажа, где расположились спальня, детские и кабинет хозяйки дома.

Портфолио Remplanner
Портфолио Remplanner