Найти в Дзене

Маленькая квартира 52 м2 с продуманной планировкой

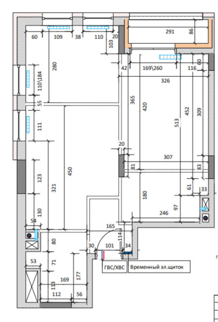
Мы в Remplanner очень любим небольшие квартиры с огромным потенциалом. Сегодня рассказываем об одной из них, ее площадь за вычетом лоджии менее 50 м2, но – спойлер – лоджию мы присоединили. В итоге увеличили площадь до 52.5 м2 и разместили на ней: детскую, спальню, кухню-гостиную, ванную комнату и большую гардеробную. Ниже рассказываем, как это было! Детская площадью 9,5 м2 получила сразу 3 окна, несмотря на это, удалось вписать и кровать, и шкаф, и рабочее место с компактным стеллажом и полками. Плотные римские шторы и высокое изголовье кровати обеспечат защиту от холода от окна, так что в таком размещении кровати нет ничего страшного. К тому же справа от нее большой вертикальный радиатор. Оформлена комната в изумрудно-бежевых тонах – это основная цветовая гамма всей квартиры. Так как площадь маленькая, основной цвет здесь бежевый, а изумрудный выступает акцентным. Это фотообои с популярным изображением туманного леса и, подобранные в тон, велюровое покрывало и декоративная наволочк

Мы в Remplanner очень любим небольшие квартиры с огромным потенциалом. Сегодня рассказываем об одной из них, ее площадь за вычетом лоджии менее 50 м2, но – спойлер – лоджию мы присоединили. В итоге увеличили площадь до 52.5 м2 и разместили на ней: детскую, спальню, кухню-гостиную, ванную комнату и большую гардеробную. Ниже рассказываем, как это было!

Детская площадью 9,5 м2 получила сразу 3 окна, несмотря на это, удалось вписать и кровать, и шкаф, и рабочее место с компактным стеллажом и полками.

Плотные римские шторы и высокое изголовье кровати обеспечат защиту от холода от окна, так что в таком размещении кровати нет ничего страшного. К тому же справа от нее большой вертикальный радиатор.

Портфолио Remplanner
Портфолио Remplanner

Оформлена комната в изумрудно-бежевых тонах – это основная цветовая гамма всей квартиры. Так как площадь маленькая, основной цвет здесь бежевый, а изумрудный выступает акцентным.

Портфолио Remplanner
Портфолио Remplanner

Это фотообои с популярным изображением туманного леса и, подобранные в тон, велюровое покрывало и декоративная наволочка. При работе с интерьером маленьких детских не стоит делать их слишком пестрыми, основной цвет может быть и ярким, но спокойным: синим, зеленым.

Портфолио Remplanner
Портфолио Remplanner

А вот в спальне родителей, площадью 16,8 м2, изумрудный вполне можно назвать доминирующим цветом. Стена в изголовье кровати декорирована молдингами и круглым гипсовым панно с фактурным рисунком. Само по себе панно белого цвета, но в этом проекте окрашено в бежево-серый, сочетающийся со шторами и обивкой кровати.

Портфолио Remplanner
Портфолио Remplanner

Как было сказано выше – мы присоединили к комнате лоджию, это сделало ее на 3 м2 просторнее, но потребовало качественного утепления стен, пола и потолка, а также замены окон на более теплые.

В итоге в зоне бывшей лоджии мы получили заниженный потолок и небольшой выступ стены. Первое обыграли с помощью подсветки, второе стало декоративным элементом благодаря рейкам из МДФ.

Портфолио Remplanner
Портфолио Remplanner

Обставлена спальня лаконично – большой шкаф купе с глянцевыми дверями, кровать в мягкой обивке, пара тумб с закругленными углами и подвесная тумба под ТВ. Ничего лишнего, все строго утилитарно.

Одна из причин – наличие гардеробной, ее площадь 4.5 м2 и там удалось расположить не только вместительную систему хранения, но еще и мини-хозблок, а также зону постирочной – стиральную и сушильную машину. Благодаря этому не пришлось загромождать лишними шкафами остальное пространство, так что, в очередной раз, советуем – выделяйте место под гардеробную.

Портфолио Remplanner
Портфолио Remplanner

Все межкомнатные двери в этой квартире выходят в кухню-гостиную, но это ее не портит! Конечно, кто-то скажет, что это никакая не гостиная, а кухня с диваном, но здесь соблюдены основные правила: есть отдельная обеденная зона с раскладным круглым столом (кстати, такая форма стола в маленьких пространствах всегда выгоднее) и независимо стоящий диван, не являющийся частью обеденной зоны.

Портфолио Remplanner
Портфолио Remplanner

Такая кухня-гостиная вполне справится с ролью общественного пространства, где можно провести вечер с семьей или пообщаться с гостями. Плюс, диван всегда может стать дополнительным спальным местом.

Портфолио Remplanner
Портфолио Remplanner

Кухня угловая, причем в ее проекте красиво сочетаются зеленый и белый, левый угол начинается с белой колонны, а правый – с темно-зеленой, в итоге имеем гармоничный и не банальный переход между двумя цветами.

Портфолио Remplanner
Портфолио Remplanner

Филенчатые фасады из МДФ покрыты матовой эмалью, для фартука использован широкоформатный керамогранит, а столешница – пластик с текстурой светлого дерева. В тон столешнице был выбран стол с натуральным шпоном, а вот стулья, внезапно, винного цвета.

Портфолио Remplanner
Портфолио Remplanner

На самом деле сочетание красного и зеленого одно из самых естественных, тем более, когда речь о глубоких, благородных оттенках, изумрудном и винном.

Портфолио Remplanner
Портфолио Remplanner

Но чтобы создать связующую нить, дизайнер выбрал картину с подходящей цветовой гаммой, так что стулья получили своего крохотного компаньона и выглядят максимально органично.

Как вы можете видеть – прихожая занимает минимальную площадь, меньше двух метров, но этого достаточно, т.к. справа от входа открытая вешалка и полка для обуви, а слева дверь в гардеробную. Чтобы прихожая не казалась тесной и темной, мы заменили входную дверь от застройщика на новую с большим зеркалом почти во все полотно.

Портфолио Remplanner
Портфолио Remplanner

Первая дверь справа на входе в кухню ведет в ванную, ее площадь чуть больше 5 м2, оформлена она в тех же бежево-изумрудных тонах, что и вся квартира.

Портфолио Remplanner
Портфолио Remplanner

Основа – светло-бежевая плитка 25х50 см, на пол была выбрана плитка с черно-белыми квадратами, эта расцветка перекликается с черными и белыми элементами сантехники. Шкафчик над инсталляцией из МДФ и окрашен в тон бежевой плитки.

Портфолио Remplanner
Портфолио Remplanner

За изумрудную часть отвечает ниша с ванной. Сформирована она искусственно – стенка проектировалась с учетом размера ванной, и никаких встроенных полочек здесь нет.

Портфолио Remplanner
Портфолио Remplanner

Такое расположение ванной может создать трудности с ее установкой или демонтажем, в нашем случае ванна акриловая, легкая, дающая определенную свободу маневрирования при установке. Чугунную в такую нишу вписать вряд ли удастся. Экран у ванны тоже из МДФ в тон плитки, с нишей для ног и откидным механизмом.

Портфолио Remplanner
Портфолио Remplanner

Плитка темно-изумрудного, насыщенного цвета двух видов – гладкая, матовая большого формата и небольшая квадратная с эффектом 3D. Будь вся ванная комната бежевая, она смотрелась бы скучно, а если сделать ее полностью зеленой – получилось бы мрачноватое помещение. У нас же выдержан баланс светлого и темного, а уровень яркости оформления максимально комфортен для глаз.

Портфолио Remplanner
Портфолио Remplanner

Надеемся, эта «изумрудная» квартира с необычной планировкой понравится вам также, как и нашим заказчикам. Еще больше реализованных проектов с разными планировками вы найдете в портфолио, а если вам нужен индивидуальный дизайн-проект – будем рады помочь вам в этом!