Найти в Дзене
Олег Лихачёв

Проект усадьбы в посёлке "Берендеево царство".Главный дом.

Главный дом площадью 1102 кв м имеет двухсветную гостиную, кухню, столовую, детскую гостиную, кабинет, 6 спален, 7 санузлов, спа-зону с бассейном, тренажерный зал, бильярдную и художественную мастерскую. 4 жилых этажа дома соединяются пассажирским гидравлическим лифтом. Поскольку дом стоит на крутом склоне, на пруд развернуты три этажа с большими видовыми окнами и мансарда. А с обратной стороны, со стороны сада, видны только два этажа и мансарда. Технический же этаж полностью скрыт под землей. В мансарде, кроме бильярдной, расположена художественная керамическая мастерская. Хозяин дома и все дети очень хорошо рисуют, и к тому же они освоили технику изготовления керамических изделий – и декоративных, и утилитарных. То есть сами делают и расписывают посуду. В мастерской стоят печи для обжига глины, гончарные станки, на полках – пигменты, ангобы, глазури. Поэтому дом богато декорирован уникальными керамическими изделиями собственного производства. А на кухнях в обоих домах много самодель

Главный дом площадью 1102 кв м имеет двухсветную гостиную, кухню, столовую, детскую гостиную, кабинет, 6 спален, 7 санузлов, спа-зону с бассейном, тренажерный зал, бильярдную и художественную мастерскую. 4 жилых этажа дома соединяются пассажирским гидравлическим лифтом.

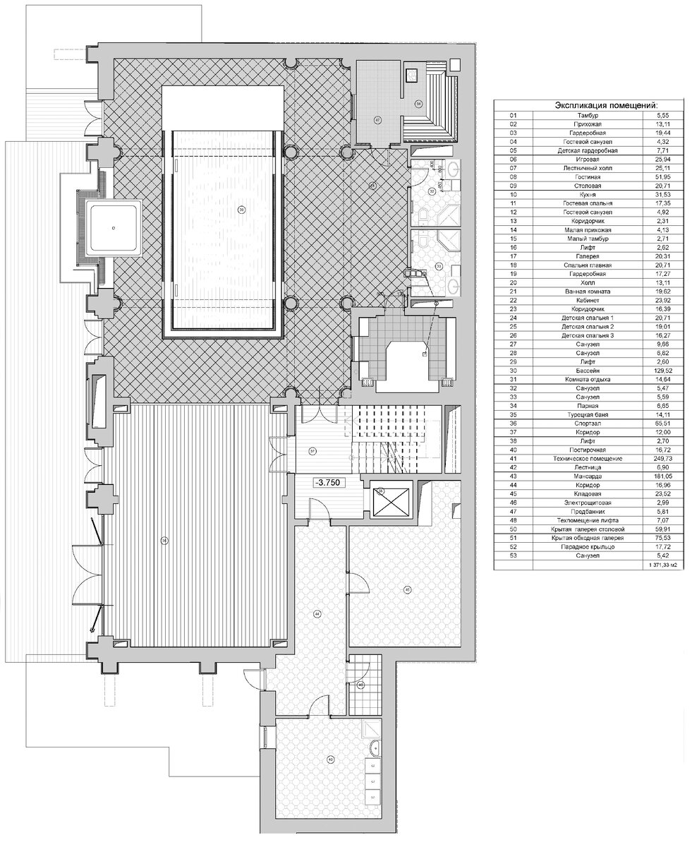
План на отметке -3,750. Цокольный этаж.
План на отметке -3,750. Цокольный этаж.

Поскольку дом стоит на крутом склоне, на пруд развернуты три этажа с большими видовыми окнами и мансарда. А с обратной стороны, со стороны сада, видны только два этажа и мансарда. Технический же этаж полностью скрыт под землей.

План на отметке 0,000. Первый этаж.
План на отметке 0,000. Первый этаж.

План на отметке 7,000. Мансардный этаж.
План на отметке 7,000. Мансардный этаж.

В мансарде, кроме бильярдной, расположена художественная керамическая мастерская. Хозяин дома и все дети очень хорошо рисуют, и к тому же они освоили технику изготовления керамических изделий – и декоративных, и утилитарных. То есть сами делают и расписывают посуду. В мастерской стоят печи для обжига глины, гончарные станки, на полках – пигменты, ангобы, глазури. Поэтому дом богато декорирован уникальными керамическими изделиями собственного производства. А на кухнях в обоих домах много самодельной, красивой и очень удобной посуды, которой с удовольствием пользуются и хозяева, и гости.

В интерьере мы не стремились к роскоши. Наша задача была создать семейное гнездо, где всем было бы спокойно, уютно и тепло. С отделкой помещений постаралась сама природа - стены бревенчатого дома своей богатой фактурой заменяют любое декорирование. Хозяйка дома в минуты отдыха очень любит рассматривать причудливые узоры и трещинки на грубовато обтесанных бревнах. На полу мы использовали доску лиственницы, тонированную ореховым цветом, которая тоже имеет богатую фактуру. Цветовая гамма мебели, керамической плитки, текстиля очень спокойная и приглушенная, без лишних контрастов.

Столовая.
Столовая.

Камин в гостиной островного типа. Он расположен таким образом, чтобы из гостиной можно было видеть одновременно разные стихии – огонь в камине, водоем за окном, лес, небо.