Добавить в корзинуПозвонить
Найти в Дзене
Филдс

Советский интерьер на современный лад: дизайнер показала трешку 91 м² в Санкт-Петербурге для пары

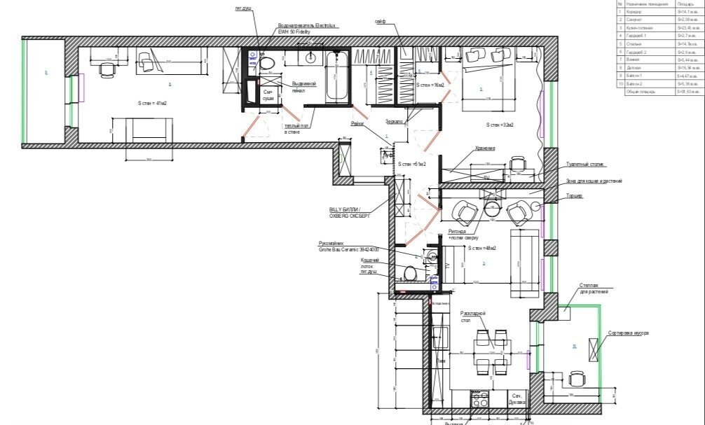
Дизайнер Анастасия Заркуа оформила трешку площадью 91 м² для молодой пары. Заказчики хотели получить интерьер в сочных оттенках, которые сочетались бы друг с другом и не надоедали в повседневной жизни. В итоге удалось найти баланс и создать комфортное пространство для двоих. Планировка Вытянутая форма просторной кухни-гостиной позволила комфортно поделить помещение на две основные зоны. При спальне спроектировали гардеробную. Еще одна находится через стену — вход в нее открывается из коридора. Также в квартире имеются два санузла — хозяйский и гостевой. Кухня-гостиная Стены выкрасили в светлый оттенок, маленькую выделили сложным зеленым цветом, который отчасти перекликается с фасадами кухонного гарнитура напротив. Пол уложили практичным керамогранитом под дерево. Собственно гостиную обозначили ковром с потертым эффектом. Яркие акценты вносят диван в насыщенной терракотовой обивке, римские шторы с желтыми кантами, а также постер и диптих, которые объединяют основные цвета интерьера. К
Оглавление

Дизайнер Анастасия Заркуа оформила трешку площадью 91 м² для молодой пары. Заказчики хотели получить интерьер в сочных оттенках, которые сочетались бы друг с другом и не надоедали в повседневной жизни. В итоге удалось найти баланс и создать комфортное пространство для двоих.

  • Общая площадь: 91 м²
  • Место: Санкт-Петербург
  • Количество комнат: 3
  • Высота потолка: 2,8 м
  • Кто здесь живет: молодая пара
  • Стилист: Наталья Орешкова
  • Фото: Татьяна Никитина

Планировка

Вытянутая форма просторной кухни-гостиной позволила комфортно поделить помещение на две основные зоны. При спальне спроектировали гардеробную. Еще одна находится через стену — вход в нее открывается из коридора. Также в квартире имеются два санузла — хозяйский и гостевой.

Кухня-гостиная

Стены выкрасили в светлый оттенок, маленькую выделили сложным зеленым цветом, который отчасти перекликается с фасадами кухонного гарнитура напротив. Пол уложили практичным керамогранитом под дерево.

Собственно гостиную обозначили ковром с потертым эффектом. Яркие акценты вносят диван в насыщенной терракотовой обивке, римские шторы с желтыми кантами, а также постер и диптих, которые объединяют основные цвета интерьера. Кроме того, оформление обильно освежили зелеными растениями.

-3

Напротив дивана организовали ТВ-зону. Тумба под телевизором — советская, ее отреставрировали и встроили в современный интерьер. Другой винтаж в помещении — стулья фабрики Лигна, они тоже родом из СССР.

Кухню спроектировали буквой Г, с обеих сторон гарнитур замыкают колонны с техникой. Спрятать коммуникации и придать мебели вид единой встроенной конструкции помогли коробы из гипсокартона — их надстроили сверху.

Нижний ярус шкафов и акцентные фасады приобрели в ИКЕА, дубовые дверцы неглубоких верхних секций выполнили на заказ. Фартук довели до потолка, его облицевали мелкой плиткой, использовав необычную раскладку.

-6

Балкон

К кухне прилегает балкон, там обустроили мини-кабинет. Помимо рабочего стола и ящика для хранения бумаг предусмотрели подвесные витринные шкафы для коллекции моделей автомобилей и кораблей.

Спальня

Спальню выполнили в более спокойной серо-голубой гамме. Уюта также добавляют деревянные фактуры, в том числе дубовые изголовье, стул и винтажные прикроватные тумбы производства СССР. Пол уложили инженерной доской.

Над постелью повесили лаконичные постеры. Напротив окна открывается вход в гардеробную. В изножье разместили столик-консоль с зеркалом, который может служить как туалетной зоной, так и рабочим местом.

Прихожая и коридор

С нейтральным коридором, украшенным броскими картинами в простенках, контрастирует акцентная прихожая. Так, входную дверь заключили в насыщенный объем цвета бутылочного стекла. В этот же оттенок выкрасили фасады встроенной системы хранения, соответствующего тона подобрали и пуф.

Санузлы

В отделке ванной сочетали плитку и покраску яркого желтого оттенка. Белые участки стен, шкаф с раковиной и сантехника создают контраст и немного уравновешивают насыщенную палитру. При входе организовали хозблок со стиральной и сушильной машинами, а также секцией для хранения наверху. Дополнительный шкаф предусмотрели над инсталляцией.

В гостевом санузле низ стен оформили плиткой-терраццо, а верх — яркой оранжевой краской. Над инсталляцией также спроектировали место для хранения. Кроме того, установили небольшой умывальник.

Интересные мнения в комментариях приветствуются. Если материал понравился — ставь лайк!

🖤 Филдс — это не только блог на Дзене, но и магазин дизайнерских предметов интерьера. Заходите на сайт, чтобы увидеть мебель, которую дизайнеры выбирают для своих проектов.