Найти в Дзене

Правила эксплуатации КМУ DAYUN

Этот мощный грузовик DAYUN с бортовой платформой и краном – отличное решение для транспортировки и поднятия грузов.
Основные характеристики
КМУ XCMG. кран с максимальной грузоподъемностью 5 тонн и длиной стрелы 12 метров.
Грузоподъемность. До 12 тонн с обеспечением перевозки разнообразных грузов.
Двигатель. Мощный и надежный мотор с отличной производительностью.
Кабина. Комфортабельная кабина с современными управляющими системами для водителя.
Бортовая платформа. Просторная и надежная, оборудована боковыми бортами для удобной загрузки и разгрузки.
Безопасность. Оборудовано системами безопасности, включая системы контроля стабильности и антиблокировочные тормоза. Бортовая платформа с краново-манипуляторной установкой производства XCMG SQS 125-4
Максимальная грузоподъемность, кг 5 000
Максимальный грузовой момент, ТМ 12,5
Рекомендуемая мощность, кВт 18
Гидравлический поток 40
Номинальное рабочее давление, МПа 18
Угол поворота на 360°
Место управления рядом с колонной, с двух сторон
Вы
Оглавление
DAYUN X120 CGC1120D с КМУ
DAYUN X120 CGC1120D с КМУ

Этот мощный грузовик DAYUN с бортовой платформой и краном – отличное решение для транспортировки и поднятия грузов.


Основные характеристики


КМУ XCMG. кран с максимальной грузоподъемностью 5 тонн и длиной стрелы 12 метров.
Грузоподъемность. До 12 тонн с обеспечением перевозки разнообразных грузов.
Двигатель. Мощный и надежный мотор с отличной производительностью.
Кабина. Комфортабельная кабина с современными управляющими системами для водителя.
Бортовая платформа. Просторная и надежная, оборудована боковыми бортами для удобной загрузки и разгрузки.
Безопасность. Оборудовано системами безопасности, включая системы контроля стабильности и антиблокировочные тормоза.

Бортовая платформа с краново-манипуляторной установкой производства XCMG SQS 125-4


Максимальная грузоподъемность, кг 5 000
Максимальный грузовой момент, ТМ 12,5
Рекомендуемая мощность, кВт 18
Гидравлический поток 40
Номинальное рабочее давление, МПа 18
Угол поворота на 360°
Место управления рядом с колонной, с двух сторон
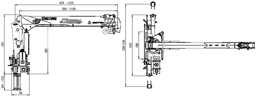
Вылет стрелы, мм 11 200
Максимальная высота подъема, мм 13 000
Вес, кг 2 260
Монтажное расстояние, мм 900
Количество секций, шт 4
Угол подъема основной стрелы, º 0 - 75

Габаритные размеры КМУ
Габаритные размеры КМУ

Эксплуатация бортовой платформы


Бортовая платформа грузового DAYUN X120 CGC1120D формируется и сваривается тремя стальными бортами. Поскольку большая часть платформы представляет собой тонколистовую деталь, то для предотвращения жестких ударов перевозимый груз необходимо загружать равномерно.
Открытие и закрытие заднего борта: поверните левую, правую и заднюю рукоятки бортов вверх, чтобы освободить зажимную пластину, после чего можно открыть задний борт.
При закрывании прежде откройте задний борт, а затем поверните ручку вниз, чтобы его заблокировать.
Открытие и закрытие левого и правого бортов: поверните переднюю и заднюю ручки двух боковых бортов, чтобы их разблокировать. При этом можно открыть и левые, и правые борта.
При закрывании сначала закройте левые и правые борта, а затем поверните ручки вниз, чтобы заблокировать их.
Правильная эксплуатация обеспечивает бесперебойную и безотказную работу краноманипуляторных установок.
Невнимательность при операциях настройки (проверки) может повлечь сбои в работе крана манипулятора и аварийные ситуации. Не проводите установку и переоборудование КМУ самостоятельно.


Сделав заказ на бортовой грузовой автомобиль DAYUN с КМУ именно у нас, Вы получите полный спектр услуг, начиная от грамотного консультирования опытными менеджерами и заканчивая проверкой после ремонта.