Добавить в корзинуПозвонить
Найти в Дзене
AMS³

Как сделать план квартиры в Archicad

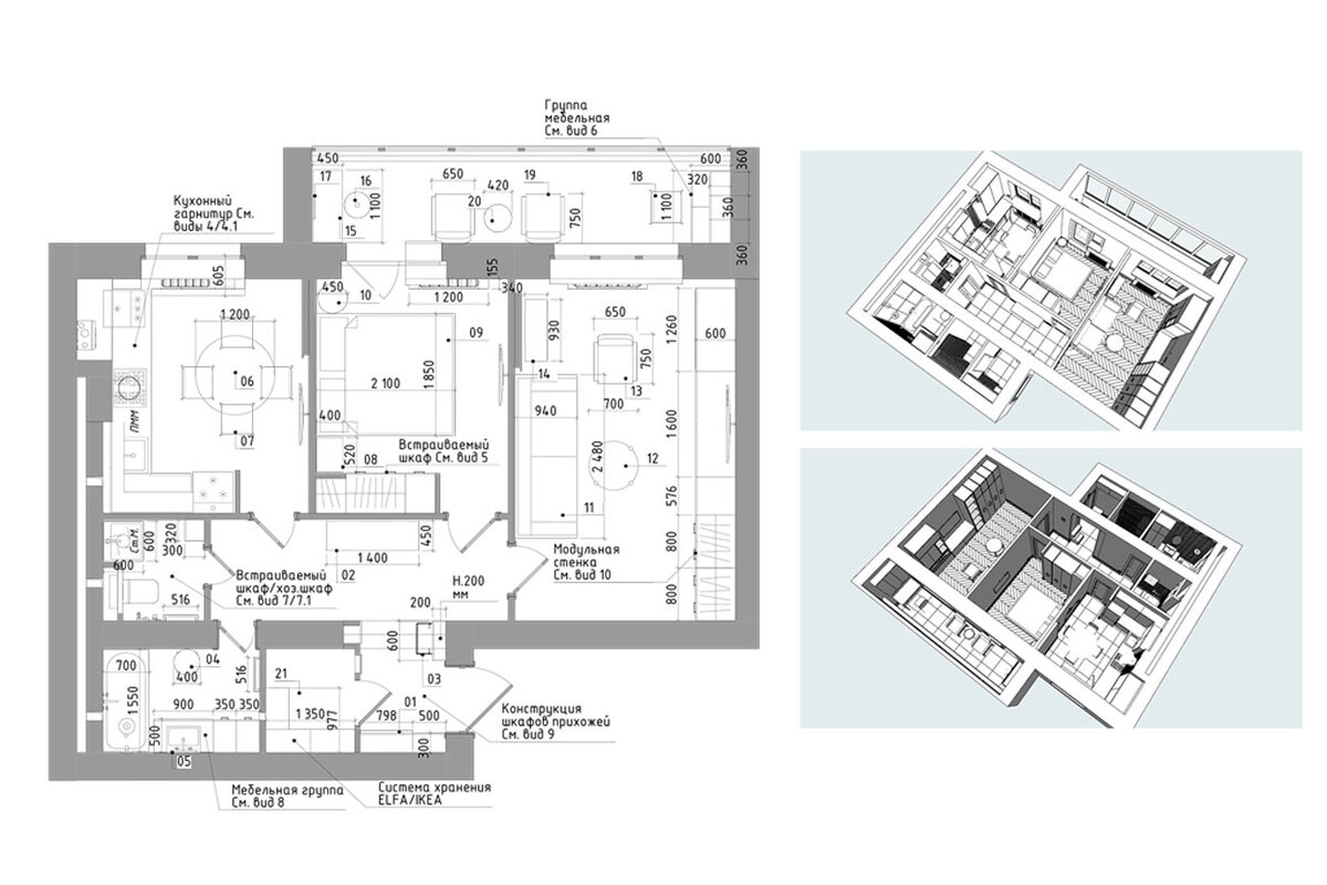
Обмерный план в Archicad может содержать сложную конфигурацию стен. Они имеют разную толщину, выступы и ниши. Ориентируясь на чертеж плана, следуют правильно пересекать линии привязки стен, чтобы добиться корректного их сопряжения. В этом уроке разберем, как перенести план в Archicad и учесть нестандартные фрагменты примыкания. Видео будет полезно тем, кто работает с планом БТИ или обмерами. Для начала необходимо создать замкнутый контур. Затем разделить стены и изменить их толщину. Чтобы линии привязки имели правильные пересечения, будем корректировать смещения базовых линий. Так получится быстро сделать обмерный план в Archicad, а сама BIM модель будет корректной. Экспресс-курс "Быстрый старт в Archicad"  Вы освоите одну из лучших программ для проектирования зданий и дизайна интерьера. Научитесь оформлению проектной документации и созданию визуализаций. Обогатите резюме и станете востребованным специалистом. На курсе вы научитесь: Открыть программу курса Преимущества курса: Прокачайт

Обмерный план в Archicad может содержать сложную конфигурацию стен. Они имеют разную толщину, выступы и ниши. Ориентируясь на чертеж плана, следуют правильно пересекать линии привязки стен, чтобы добиться корректного их сопряжения.

В этом уроке разберем, как перенести план в Archicad и учесть нестандартные фрагменты примыкания. Видео будет полезно тем, кто работает с планом БТИ или обмерами. Для начала необходимо создать замкнутый контур. Затем разделить стены и изменить их толщину. Чтобы линии привязки имели правильные пересечения, будем корректировать смещения базовых линий. Так получится быстро сделать обмерный план в Archicad, а сама BIM модель будет корректной.

Экспресс-курс "Быстрый старт в Archicad" 

Вы освоите одну из лучших программ для проектирования зданий и дизайна интерьера. Научитесь оформлению проектной документации и созданию визуализаций. Обогатите резюме и станете востребованным специалистом.

На курсе вы научитесь:

  • моделировать здания в 3D;
  • создавать объемный интерьер;
  • формировать связанные проекции (планы, разрезы, фасады, 3D виды);
  • извлекать данные в спецификации;
  • оформлять чертежи;
  • компоновать виды на макетах;
  • сохранять проект в PDF.

Открыть программу курса

-2

Преимущества курса:

  • Структурированный подход. Это короткие пошаговые видеоуроки в логической последовательности "от простого к сложному", что позволяет вам быстро усваивать материал.
  • Практический опыт. Курс содержит задания и практические упражнения, что помогает вам лучше усваивать материал и применять полученные знания в вашей работе.
  • Поддержка и обратная связь. Преподаватели и эксперты в курсе могут ответить на ваши вопросы и помочь решить проблемы, что недоступно при просмотре видео на YouTube.

Прокачайте свои навыки и карьеру в дизайне с помощью курса "Быстрый старт в Archicad"!

Только 3 дня на курс действует скидка -50%. Записывайтесь сегодня, чтобы не упустить место на курсе!