Найти в Дзене
Лесстрой Портал

Вставьте ссылку на изображение

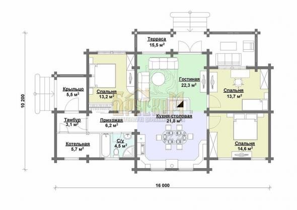
Дом общей площадью 126м2, площадь застройки 10.2*16м, от наших подрядчиков БрусКом
Ссылка на проект: https://lesstroy.net/user/16337/project/52498/ Одноэтажный коттедж Сказка из профилированного бруса для семьи из 4-5 человек. Планировка предусматривает кухню-столовую, гостиную и три спальни. Просторная терраса станет отличным местом для отдыха от дел и рутины, городского шума и суеты. Особенность дома — высокие потолки в гостиной. Панорамные окна необычной формы дадут больше света и воздуха, визуально увеличат пространство комнат. Окна украсят фасад дома и привлекут внимание окружающих. В комплектацию входит: 1. Стеновой комплект с крепежными элементами 2. Межвенцовый утеплитель (джут) 3. Балки перекрытия (брус 100×150 мм) 4. Потолочные балки (доска обрезная хвойных пород 50 ×150 мм) 5. Стропильная система (доска обрезная хвойных пород 50×150 мм) с крепежными элементами 6. Обрешетка (доска обрезная хвойных пород 25×100 или 150 мм) 7. Материал временной кровли (рубероид) 8. Погрузка,

Дом общей площадью 126м2, площадь застройки 10.2*16м, от наших подрядчиков БрусКом


Ссылка на проект:
https://lesstroy.net/user/16337/project/52498/

-2

Одноэтажный коттедж Сказка из профилированного бруса для семьи из 4-5 человек. Планировка предусматривает кухню-столовую, гостиную и три спальни. Просторная терраса станет отличным местом для отдыха от дел и рутины, городского шума и суеты. Особенность дома — высокие потолки в гостиной. Панорамные окна необычной формы дадут больше света и воздуха, визуально увеличат пространство комнат. Окна украсят фасад дома и привлекут внимание окружающих. В комплектацию входит: 1. Стеновой комплект с крепежными элементами 2. Межвенцовый утеплитель (джут) 3. Балки перекрытия (брус 100×150 мм) 4. Потолочные балки (доска обрезная хвойных пород 50 ×150 мм) 5. Стропильная система (доска обрезная хвойных пород 50×150 мм) с крепежными элементами 6. Обрешетка (доска обрезная хвойных пород 25×100 или 150 мм) 7. Материал временной кровли (рубероид) 8. Погрузка, доставка на участок и разгрузка материала 9. Антисептирование материала 10. Установка (монтаж ) дома на вашем участке. В указанную стоимость не входят и отдельно рассчитываются: Стоимость фундамента (в зависимости от его типа применительно к Вашему участку) Стоимость кровли (в зависимости от материала согласно Вашим предпочтениям) Стоимость внешней и внутренней отделки Возможно изменение проекта. Возможно строительство из: оцилиндрованного бревна с Финским профилем профилированного бруса