Добавить в корзинуПозвонить
Найти в Дзене

Загородный дом 65м2 с террасой, панорамными окнами и отделкой в стиле «сканди»

На фотографиях вы видите дом под Санкт-Петербургом, который мы изготовили для семейной пары с детьми! Дочитайте статью до конца, чтобы узнать, сколько он стоит → Планировка Dacar 65 В коллекции LetWood Group есть несколько планировок для 65-метрового дома. Однако наибольшей популярностью пользуется вариант с двумя спальнями, прихожей и встроенной сауной →  Планировка позволяет наслаждаться жизнью в загородном доме на все 100%:  Здесь можно разместить большой обеденный стол, диван, телевизор или даже еще одно спальное место.  Установить электросауну можно в любой дом LetWood Group! Обратитесь к нашим менеджерам в комментариях, они проконсультируют вас по стоимости Отделка модульного дома Дом от Let Wood Group можно купить с готовой отделкой в минималистичном стиле «сканди». Вы получите полностью готовый к переезду дом с уже проведенными внутренними работами: Так выглядит ванная комната с сантехникой и отделкой Жизнь в модульном доме В двухкомнатном Dacar 65 будет комфортно семье с де
Оглавление

На фотографиях вы видите дом под Санкт-Петербургом, который мы изготовили для семейной пары с детьми! Дочитайте статью до конца, чтобы узнать, сколько он стоит →

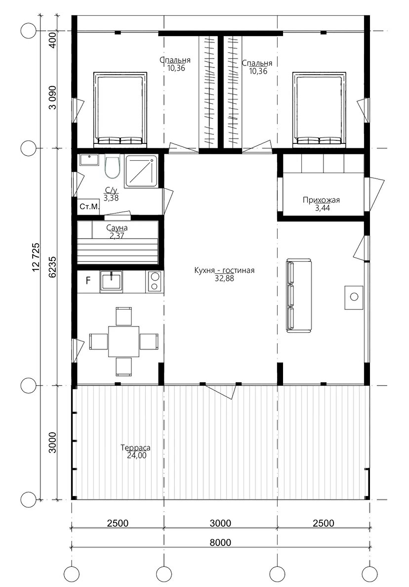
Планировка Dacar 65

В коллекции LetWood Group есть несколько планировок для 65-метрового дома. Однако наибольшей популярностью пользуется вариант с двумя спальнями, прихожей и встроенной сауной → 

-2

Планировка позволяет наслаждаться жизнью в загородном доме на все 100%: 

  • устраивать завтраки или заниматься йогой на террасе под шум деревьев (нам часто удается сохранить взрослые деревья благодаря бережной сборке дома на участке!
-3
  • собирать гостей за большим столом в светлой кухне-гостиной

Здесь можно разместить большой обеденный стол, диван, телевизор или даже еще одно спальное место. 

-4
  • устраивать спа с походом в сауну хоть каждый день!

Установить электросауну можно в любой дом LetWood Group! Обратитесь к нашим менеджерам в комментариях, они проконсультируют вас по стоимости

-5

Отделка модульного дома

Дом от Let Wood Group можно купить с готовой отделкой в минималистичном стиле «сканди». Вы получите полностью готовый к переезду дом с уже проведенными внутренними работами:

  • Стены и потолок — имитация бруса белого цвета
  • Внутренняя отделка торцевых стен — обшивочная доска 200 мм серого цвета
  • Ветровые планки — листовой металл с полимерным покрытием (код цвета - RAL 7024)
  • Межкомнатные двери — 5 шт, с фурнитурой
  • Покрытие пола и стен сан. узла — керамогранит Kerama Marazzi + тёплый пол
-6

Так выглядит ванная комната с сантехникой и отделкой

Жизнь в модульном доме

В двухкомнатном Dacar 65 будет комфортно семье с детьми! В объединенном пространстве кухни-гостиной можно организовать зону отдыха с большим диваном и установить стильную кухню удобной зоной готовки

-7
-8

Как может выглядеть кухня-гостиная с мебелью 

В доме много панорамных окон, но не нужно переживать за микроклимат — двухкамерные стеклопакеты отлично держат тепло, обладают достаточным уровнем звукоизоляции и хорошо защищены от запотевания. 

-9

Дом изготовлен по принципу «термоса» — его конструкция не выпускает тепло, что позволяет экономить до 30% на электроэнергии. Dacar 65 подходит для русской зимы: современные утеплители (каменная вата) и «теплые» полы позволяют наслаждаться домашним уютом даже в самые сильные морозы.

-10

💸 Dacar 65 с отделкой, полностью готовый к жизни, будет стоить 5 390 000₽

Дом можно купить в ипотеку или воспользоваться программой беспроцентной рассрочки! Оставьте заявку в комментариях, чтобы наши менеджеры рассчитали ваш ипотечный платеж 

🎁 При покупке дома LetWood Group дарит подарки: кухню, меблировку или садовую мебель! Что бы вы выбрали в подарок на новоселье? 

Москва:

📞 8 (499) 647-44-41

Сайт: https://moscow.letwood.ru  

Санкт-Петербург:

📞 8 (812) 670-07-25

Сайт: https://letwood.ru

НАШИ СОЦСЕТИ:

ВК: https://vk.com/letwoodgroup  

Telegram: https://t.me/letwood