Добавить в корзинуПозвонить
Найти в Дзене
ЭнергоТранс ЖБИ

Заземление воздушных линий напряжением 0,4 кв с изолированными проводами

Для обеспечения нормальной работы электроприемников нормируемого уровня электробезопасности и защиты от атмосферных перенапряжений на ВЛИ должны быть выполнены заземляющие устройства. От подстанций к различным потребителям, электроэнергия передается по двум основным линиям (воздушные и под землей). В свою очередь, воздушные линии электропередачи разделяют на два вида ВЛ и ВЛИ. Грозозащитные заземления выполняются: на опорах через 120 м; на опорах с ответвлениями к вводам в помещения, в которых может быть сосредоточено большое количество людей (школы, ясли, больницы и др.) или представляющих большую хозяйственную ценность (животноводческие помещения, склады, мастерские и др.); на конечных опорах, имеющих ответвления к вводам; за 50 м от конца линии, как правило, на предпоследней опоре; на опорах в створе пересечения с воздушными линиями более высокого напряжения. Повторные заземления нулевого провода для воздушных линий с изолированными проводами выполняются как и для воздушных линий 0
Оглавление

Воздушные линии электропередачи, являются установками повышенной опасности. Поэтому, для повышения надежности данных установок, применяются различные контраварийные меры, одной из которых является повторное заземление нулевого провода на столбе. Наличие данной схемы подключения, позволяет свести к минимуму вероятность поражения человека током.

Для обеспечения нормальной работы электроприемников нормируемого уровня электробезопасности и защиты от атмосферных перенапряжений на ВЛИ должны быть выполнены заземляющие устройства.

ВЛИ: расшифровка и назначение

От подстанций к различным потребителям, электроэнергия передается по двум основным линиям (воздушные и под землей). В свою очередь, воздушные линии электропередачи разделяют на два вида ВЛ и ВЛИ.

Грозозащитные заземления выполняются: на опорах через 120 м; на опорах с ответвлениями к вводам в помещения, в которых может быть сосредоточено большое количество людей (школы, ясли, больницы и др.) или представляющих большую хозяйственную ценность (животноводческие помещения, склады, мастерские и др.); на конечных опорах, имеющих ответвления к вводам; за 50 м от конца линии, как правило, на предпоследней опоре; на опорах в створе пересечения с воздушными линиями более высокого напряжения.

-2

Повторные заземления нулевого провода для воздушных линий с изолированными проводами выполняются как и для воздушных линий 0,38 кВ на деревянных и железобетонных опорах.

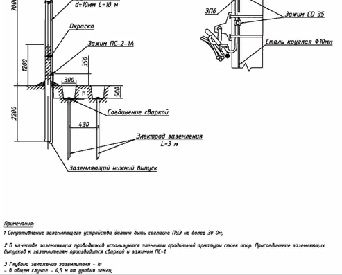
Сопротивление повторного заземлителя зависит от удельного сопротивления грунта р и от количества заземлителей на линии.

Общее сопротивление растеканию тока заземлителей линии (в том числе и естественных) в любое время года должно быть не более 10 Ом.

Заземляющие проводники для повторных и грозозащитных заземлений следует выполнять из круглой стали или проволоки диаметром не менее 6 мм. При применении неоцинкованных заземляющих проводников необходимо предусматривать меры по защите их от коррозии.

Корпуса светильников уличного освещения, ящиков, щит ков и шкафов, а также все металлоконструкции опор должны быть занулены. На железобетонных опорах для связи с заземлителем следует использовать арматуру стойки и подкоса (при на личии). На деревянных опорах (конструкциях) крепежная арма тура не заземляется, за исключением опор, на которых выполнено повторное или грозозащитное заземление нулевого провода.

Приемка в эксплуатацию воздушных линий с самонесущими изолированными проводами

Приемка воздушных линий с изолированными проводами в эксплуатацию производится в соответствии с требованиями правил приемки в эксплуатацию законченных строительством объектов распределительных сетей напряжением 0,38—20 кВ. Каждая воздушная линия с изолированными проводами, вводимая в эксплуатацию, должна быть подвергнута приемосдаточным испытаниями в соответствии с требованиями ПУЭ.

-3

Особенности ВЛИ:

  • Надежность;
  • Стойкость к различным климатическим условиям;
  • Дешевизна электромонтажных работ.

ВЛИ – воздушные линии электропередачи с применением самонесущих изолированных проводников (СИП), с напряжением до 1 кВ и в которых нейтраль глухозаземлена.

Надежность данных линий определяется тем, что на проводниках отсутствует стеклянная линейная изоляция.

К стойкости к климатическим условиям относят различные факторы. Например, прочные проводники, способны выдерживать высокие нагрузки при обледенении, при сильных порывах ветра не происходит схлестывания проводов (обычно это приводит к отключению подачи электроэнергии), так как данные проводники покрыты внешней изоляцией.

Стоит отметить, что благодаря конструктивным особенностям кабелей, достаточно сложно произвести несанкционированное подключение к электросети.

Нормальную работу электроприемников, обеспечивают посредством устройства заземления. Характеристики заземляющего устройства прописаны в правилах ПУЭ.

После ввода в эксплуатацию и непосредственно во время работы, производятся различные контрольно – измерительные мероприятия. К ним относят испытания проводников, которые проводят только после того, как от сети отключены все потребители.

Осуществляется контроль и заземлителей (выборочно), при которых заземляющий контур несущей конструкции раскапывается и производится замер сопротивления.

Заземление опор ВЛ 0,4 кВ: устройство

В качестве опорных конструкций для воздушных линий электропередачи, применяют два вида столбов, которые обладают отличными конструктивными особенностями, и заземление которых производится согласно правилам ПУЭ.

-4

Типы опор:

  • Деревянная;
  • Железобетонная.

Деревянная конструкция, собирается из двух круглых бревен (без коры). Размеры бревен варьируются в пределах: длина 5 – 13 метров, ширина 12 – 26 см. Для обеспечения продолжительности работы данной конструкции, деревянные опоры покрывают специальным антисептическим составом. Деревянные столбы подразделяют на два типа (С 1 и С 2).

Столбы из железобетона, выполнены в виде прямоугольных или трапециевидных конструкций. Данные опоры, обозначаются специальной маркировкой в виде (СВ). После буквенного обозначения, пишутся цифры указывающие на размеры столба.

Например, СВ 110, означает, что железобетонный столб имеет длину 11 метров. Существует несколько разновидностей опор, с маркировкой СВ.

Подключение проводников производится следующим образом. Нулевые проводники (рабочий и защитный), подключаются в верхней части железобетонной конструкции. Стоит отметить, для обеспечения правильного подключения, при условии, что конструкция оснащена подкосным столбом, необходимо подключать проводники и к нему.

Подключение на столбе ЛЭП, производится согласно специальной схемы при помощи различных крепежных элементов.

Для осуществления повторного заземления на деревянном столбе, нужно установить заземлитель из металлической проволоки. Данная проволока, прикрепляется к заземлителю, который вбивается в землю. Для проволоки более 6 мм, подбирается заземлитель из оцинковки, менее 6 мм, из металла.

Повторное заземление нулевого провода: характеристики

Повторное заземление нулевых проводников, производится различными способами. Например, на вводе в здании, на деревянных и бетонных столбах ЛЭП и освещения. Для данного заземления, используют два типа заземлителей.

Виды заземлителей:

  • Естественный;
  • Искусственный.

Стоит отметить, что значения сопротивления естественных заземлителей, никак не определяются и в различных условиях, данные показатели могут изменяться. Поэтому, чтобы задать нужные параметры заземляющей конструкции, используют искусственные заземлители.

В качестве основной системы заземления, применяется схема TN, которая в свою очередь, подразделяется на три типа: TN – C, TN – S, TN – C – S.

Система TN – C, является устаревшей. При данной схеме, электроэнергия к потребителям, подается по двухжильным кабельным линиям, нулевой проводник, которого подключается к нейтрали, которая заземлена на подстанции. Данный проводник выполняет две функции и является PEN проводником.

Стоит отметить, что данная система, не может должным образом обеспечить защиту человека, так как нет заземления. Поэтому в качестве заземлителя, используют защитный ноль, который прокладывается до щитка и зануляется.

Практичной, недорогостоящей и отвечающей правилам ПУЭ, является система TN – C – S. Такое подключение, производится посредством фазного и PEN проводника, который идет от трансформаторной подстанции (КТП) и разделяется на PE и N проводники только при вводе в здание.

Система TN – S, является самой практичной, но в свою очередь достаточно дорогостоящей. При прокладывании данных линий, применяются пятижильные кабели, жилы которых отдельно подключаются на подстанции.

Заземляющий контур: правила ПУЭ

Для обеспечения безопасного использования различных электроприборов и установок, используют заземление. Данное устройство используют для уравнивания электрических потенциалов.

Особенности конструкции заземления:

  • Расположение;
  • Выбор материала;
  • Устройство.

Располагают заземляющие контуры двумя основными способами: пояс вокруг здания или отдельно стоящий заземляющий контур.

Конструктивно данные контуры выполняются следующим образом. Если контур располагается вокруг здания, по периметру в землю вбиваются заземлители, с шагом не более 2, 75 метра. Далее они соединяются металлической половой посредством сварки.

От данного контура, к главной заземляющей шине прокладывается заземляющий проводник. Если контур отдельный или дополнительный, то в землю забиваются три заземлителя образующие равносторонний треугольник.

Материал для контура заземления обычно металл. В качестве заземлителей используют металлические пруты или уголки. В качестве соединителя, используется металлическая полоса. Подключение заземляющего провода к контуру производится только при помощи медной перемычки.

Устройство контура производится следующим образом. По периметру здания или равносторонним треугольником, выкапывается траншея, глубина которой составляет не менее 40 см.

В грунт забиваются заземлители. Длина каждого заземлителя должна быть не менее 3 метров. После, используя сварочный аппарат, и металлическую полосу, заземлители соединяются в единый контур. В любом удобном месте, к контуру прикрепляется медная пластина, к которой подключается заземляющий проводник.

🔥 Подписывайтесь на канал – это лучший способ поддержать!

👍 Поддержите статью лайком, если было интересно.

💬 Не забывайте делиться своим мнением в комментариях!