Добавить в корзинуПозвонить
Найти в Дзене

Дизайн интерьера квартиры 163 кв.м в современнном стиле, продуманный до мелочей и очень понравившийся заказчику

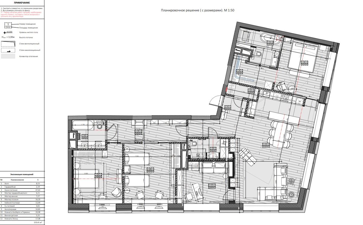
Рада приветствовать на своем канале, друзья! С вами Алена Чмелева, я - профессиональный архитектор и дизайнер. И сегодня я решила рассказать вам об этом из моих любимых проектов, в который я и моя команда вложили всю душу и сердце. Теплый, уютный и действительно очень красивый интерьер, в котором все продумано до мелочей. Квартира для семьи с детьми. ЖК Втб арена Парк, 163 м2. Год создания проекта 2021-2022 Год реализации 2023. Планировка Для меня всегда очень важно учесть все пожелания клиентов. Здесь посыл был такой: зонированные помещения и четкие планировочные решения. Просторный холл, две гардеробные, три санузла, две детских комнаты, а также комфортная и просторная кухня-гостиная. Мы выполнили все пожелания заказчика, при этом добавив ряд улучшений, о которых в проекте поначалу речь и не шла. Ну обо все подробнее. На следующем фото видно, как изменилась планировка после первого варианта. Вообще, это всегда очень большой труд, и когда все идеально на этапе планирования, сам пр
Оглавление

Рада приветствовать на своем канале, друзья! С вами Алена Чмелева, я - профессиональный архитектор и дизайнер. И сегодня я решила рассказать вам об этом из моих любимых проектов, в который я и моя команда вложили всю душу и сердце.

Теплый, уютный и действительно очень красивый интерьер, в котором все продумано до мелочей. Квартира для семьи с детьми.

ЖК Втб арена Парк, 163 м2.

Год создания проекта 2021-2022

Год реализации 2023.

Планировка

Для меня всегда очень важно учесть все пожелания клиентов. Здесь посыл был такой: зонированные помещения и четкие планировочные решения. Просторный холл, две гардеробные, три санузла, две детских комнаты, а также комфортная и просторная кухня-гостиная.

Мы выполнили все пожелания заказчика, при этом добавив ряд улучшений, о которых в проекте поначалу речь и не шла. Ну обо все подробнее.

фото и проект автора
фото и проект автора

На следующем фото видно, как изменилась планировка после первого варианта.

фото автора
фото автора

Вообще, это всегда очень большой труд, и когда все идеально на этапе планирования, сам проект идет быстрее.

СТИЛЬ И ИДЕИ

Теплая палитра бежево-коричневых оттенков идеально вписалась в задуманный дизайн. Никаких лишних деталей и перегруженных элементов.

фото и проект автора
фото и проект автора

Природные оттенки, интересный подход к подаче материала. Геометрические формы и четкие силуэты. Здесь вы не найдете напыщенности и излишеств. Всё очень лаконично и стильно.

фото и проект автора
фото и проект автора

СПАЛЬНЯ

Это место, где ты отдыхаешь, где ты просто хочешь расслабиться и не думать ни о чем. Мы постарались сделать так, чтобы в спальне обстановка располагала именно к этому.

фото и проект автора
фото и проект автора

фото и проект автора
фото и проект автора

Здесь нет ничего лишнего, много дополнительного освещения, есть место для отдыха и очень комфортная для глаз цветовая палитра. Нет ярких элементов и кричащих оттенков, что способствует теплому настроению и улучшает взаимоотношения в паре.

фото и проект автора
фото и проект автора

ДЕТСКИЕ КОМНАТЫ

Конечно, любой родитель хочет сделать для своего ребенка все самое лучшее. В этом проекте, на мой взгляд, всё получилось просто идеально. И детские комнаты отвечают тем самым прекрасным представлениям о счастливом детстве.

фото и проект автора
фото и проект автора

Удобные и просто классные места для отдыха, спортивный уголок и действительно комфортные полки для хранения небольшого количества вещей. Кстати, эта конструкция мобильна и сюда можно добавить еще полок любых размеров по необходимости.

фото и проект автора
фото и проект автора
фото и проект автора
фото и проект автора
фото и проект автора
фото и проект автора

Дизайн детской комнаты - не кричащий, а очень спокойный и уравновешенный. Обошлись без ярких оттенков, палитра выдержана в теплых тонах, как и весь единый стиль квартиры.

фото и проект автора
фото и проект автора

В центре, в изголовье кроватей - интересная инсталляция земного шара с подсветкой и очертания созвездий на стенах. Мальчишки остаются мальчишками ) Помните, как в нашем детстве многие хотели стать космонавтами?

КУХНЯ-СТОЛОВАЯ

фото и проект автора
фото и проект автора

Самое главное здесь, пожалуй, зона отдыха. Огромный диван, на котором могут разместиться все члены семьи. Заказчик хотел, чтобы в этой зоне была большая столовая группа с дополнительным освещением, удобное кресло и стильная кухня с высокими полками для хранения. Все пожелания были учтены.

фото и проект автора
фото и проект автора

Согласитесь, что за таким столом приятно собираться самим и приглашать гостей. Прямо-таки хочется сесть сюда и просто поболтать и приятно провести время, правда?

ЗОНА КУХНИ

фото и проект автора
фото и проект автора

Если рассматривать эту зону, то она зрительно отделена от гостиной роскошной напольной плиткой. Здесь можно увидеть удобный остров, который визуально отделяет одно помещение от другого.

фото и проект автора
фото и проект автора

Поэтому, собственно говоря, нам и кажется, что тут несколько отдельных пространств. Это было одним из основных пожеланий заказчика, что мы успешно воплотили в жизнь.

фото и проект автора
фото и проект автора

Сама кухонная мебель весьма лаконична с продуманными зонами для хранения и удобной рабочей зоной. Хозяйка квартиры осталась очень довольна!

ВАННЫЕ КОМНАТЫ

Как я уже говорила выше, здесь их несколько. Все они полностью соответствуют образу жизни и пожеланиям заказчиков.

фото и проект автора
фото и проект автора

Несколько раковин, оформленных внутри единой каменной столешницы, удобны в использовании и хороши для большой семьи. Один чистит зубы, другой умывается, особенно, если все спешат в школу и на работу. Согласитесь, это супер удобно?

фото и проект автора
фото и проект автора

В этот санузел гармонично вписалась небольшая ванная с тропическим душем. Все также лаконично, продуманно и комфортно

Если говорить о втором санузле, то он оформлен в более темной цветовой палитре.

фото и проект автора
фото и проект автора
фото и проект автора
фото и проект автора

Здесь максимально продуманы все конструкции для стирки и сушки белья, все аккуратно встроено в специальный шкаф, и не нужно ставить ничего отдельно и стационарно, а это очень удобно.

фото и проект автора
фото и проект автора

Душевая кабина с полкой внутри позволяет человеку делать все необходимые манипуляции во время мытья, не выходя наружу за чем-то необходимым. Всё находится внутри.

В еще одном санузле мы предложили сделать ванную для отдыха. Многие не любят принимать душ, а предпочитают понежиться в ванной. Для этих целей и была продумана в концепции всего дизайн-проекта третья ванная комната. Смотрите, какая уютная!

фото и проект автора
фото и проект автора
фото и проект автора
фото и проект автора

КАБИНЕТ

Он не очень большой, но здесь есть всё, что нужно для комфортного времяпрепровождения и работы.

фото и проект автора
фото и проект автора

Удобный стол, зона отдыха с небольшим диваном, вполне вместительный шкаф и комфортные места для хранения печатной продукции.

фото и проект автора
фото и проект автора
-27

Все также оформлено в едином стиле с общей концепцией всего проекта. Темные оттенки, сочетания серого, коричневого и бежевого. На мой взгляд, немного брутально и в то же время строго и эффектно. Как вам?

фото и проект автора
фото и проект автора

В гардеробных сделаны полки, удобные системы хранения для одежды любой длины, продуманы места для хранения больших кофров и коробок.

фото и проект автора
фото и проект автора

На первый взгляд кажется, что места здесь немного, но если приглядеться, то сюда можно вместить очень даже приличное количество вещей.

Я благодарю вас за то, что вы читаете мой канал! Если у вас есть вопросы по проекту, его планировке или оформлению, я буду рада ответить на всё!

В социальных сетях Art Concept мы регулярно делимся полезной информацией о дизайне интерьеров. Присоединяйтесь!

VK

Телеграм

YouTube

Подробнее о дизайн-бюро, команде и услугах, вы можете узнать на нашем сайте.

С вами архитектор, дизайнер интерьеров Алена Чмелева