Добавить в корзинуПозвонить
Найти в Дзене
Бутылин PRO интерьер

3 перепланировки, которые улучшили жизнь в квартире

Удачное решение в планировке делает квартиру комфортнее и влияет на то, удобно ли будет готовить, отдыхать и общаться дома. В статье подробно разберу 3 решения из нашей практики. Смотрите, как даже небольшие изменения улучшают жилье и его функционал. 1. Увеличили количество комнат Двухкомнатная квартира, 58,3 м.кв. Классический пример трансформации двухкомнатной квартиры в трехкомнатную. Основной недостаток исходной планировки – это прихожая-коридор, занимающая 16,4 кв.м., а это почти 30% (!) квартиры. Учитывая, что здесь будет жить семья из 3 человек, мы хотели выделить две спальни, кроме гостиной. Я предложил разные варианты планировки, включая и радикальный подход: уменьшить гостиную до минимальных размеров, чтобы выделить спальню с кроватью и системой хранения. Из прихожей-коридора и второй половины гостиной получилась уютная гостиная-прихожая. Между спальней и гостиной мы установили стеклянную перегородку. Она пропускает естественный свет и визуально объединяет две зоны в едино
Оглавление

Удачное решение в планировке делает квартиру комфортнее и влияет на то, удобно ли будет готовить, отдыхать и общаться дома.

В статье подробно разберу 3 решения из нашей практики. Смотрите, как даже небольшие изменения улучшают жилье и его функционал.

1. Увеличили количество комнат

Двухкомнатная квартира, 58,3 м.кв.

Классический пример трансформации двухкомнатной квартиры в трехкомнатную.

Основной недостаток исходной планировки – это прихожая-коридор, занимающая 16,4 кв.м., а это почти 30% (!) квартиры. Учитывая, что здесь будет жить семья из 3 человек, мы хотели выделить две спальни, кроме гостиной.

Я предложил разные варианты планировки, включая и радикальный подход: уменьшить гостиную до минимальных размеров, чтобы выделить спальню с кроватью и системой хранения.

Из прихожей-коридора и второй половины гостиной получилась уютная гостиная-прихожая. Между спальней и гостиной мы установили стеклянную перегородку. Она пропускает естественный свет и визуально объединяет две зоны в единое пространство.

2. Исправили форму помещения

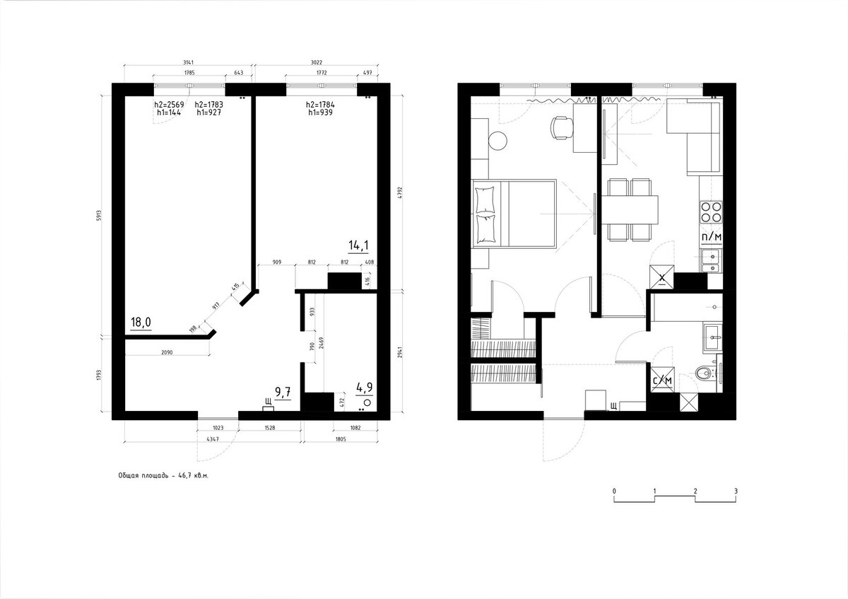
Однокомнатная квартира, 46,7 м.кв.

План до и после перепланировки
План до и после перепланировки

Другой пример перепланировки компактной квартиры. Здесь та же распространенная проблема – огромная прихожая-гардероб 9,7 кв.м.

А стена с проемом в спальню имеет странный поворот на 45 градусов, что губительно для планировки.

В первую очередь, мы разделили одну большую гардеробную на две: одну для прихожей и одну для спальни. Все перегородки мы выровняли и убрали ненужные повороты на 45 градусов, что разгрузило пространство и сделало открытие двери эргономически правильным.

Небольшим, но значимым дополнением было установка на кухне стеклянной двери во всю высоту, чтобы пропустить естественный свет в прихожую. Это расширяет небольшое пространство.

3. Создали функциональную кухню-гостиную

Трехкомнатная квартира, 85,6 м.кв.

Рассмотрим последний пример – квартира, где мы объединили кухню с гостиной.

Здесь улучшения кажутся незаметными на первый взгляд, однако небольшие изменения в планировке значительно влияют на повседневную жизнь. Объединение кухни и гостиной – не новое решение, но здесь выполнило сразу 3 функции.

Во-первых, получился коридор правильной формы с полноценной системой хранения. Во-вторых, кухня с островом оформлена без верхних шкафов, что весьма эффектно. А в-третьих, общее пространство располагает к общению.

Найти функциональные решения помогает диалог с заказчиком в процессе работы.

Мы обсуждаем каждую деталь и возможные плюсы и минусы. Это помогает принимать осознанные решения.

Если вы в поиске грамотных решений планировки своей квартиры или дома, оставьте заявку, чтобы получить консультацию.