Добавить в корзинуПозвонить
Найти в Дзене
Филдс

Молодая девушка оформила свою типовую однушку 40 м² «не как у всех» и показала планировку до и после

Дизайнер Екатерина Кузнецова оформила евродвушку площадью 40 м² для девушки. Интерьер выполнили в стилистике минимализм с нотками бохо. В проекте заметно превалируют природные мотивы. Планировка до и после Типовую однушку превратили в евродвушку. Чтобы это удалось, пришлось пожертвовать гардеробом. На его месте теперь располагается кухня. Спальню при этом немного уменьшили и отделили простенком, дополненным стеклянными перегородками. Ванную увеличили за счет коридора. Гостиная Отделку гостиной выполнили в светлых тонах. Диван песочного цвета — раскладной. Его можно использовать в качестве дополнительного спального места. Шторы и одна из подушек на кровати перекликаются с декоративной штукатуркой в кухне и спальне. Телевизор закрепили на простенке, отделяющем комнату от спальни. Тумба, как и вся корпусная мебель в квартире, сливается со стенами. Кухня Гарнитур построили Г-образно. В верхнем ярусе закрытые шкафы разбавили открытыми секциями, одна из которых обращена в сторону гостиной
Оглавление

Дизайнер Екатерина Кузнецова оформила евродвушку площадью 40 м² для девушки. Интерьер выполнили в стилистике минимализм с нотками бохо. В проекте заметно превалируют природные мотивы.

  • Общая площадь: 40 м²
  • Место: Москва
  • Количество комнат: евродвушка
  • Высота потолка: 2,9 м
  • Кто здесь живет: молодая девушка
  • Фото: Глеб Хлопунов

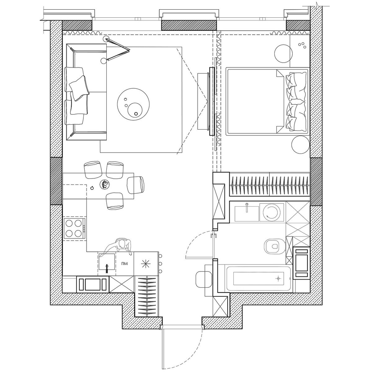
Планировка до и после

Типовую однушку превратили в евродвушку. Чтобы это удалось, пришлось пожертвовать гардеробом. На его месте теперь располагается кухня. Спальню при этом немного уменьшили и отделили простенком, дополненным стеклянными перегородками. Ванную увеличили за счет коридора.

Гостиная

Отделку гостиной выполнили в светлых тонах. Диван песочного цвета — раскладной. Его можно использовать в качестве дополнительного спального места. Шторы и одна из подушек на кровати перекликаются с декоративной штукатуркой в кухне и спальне.

Телевизор закрепили на простенке, отделяющем комнату от спальни. Тумба, как и вся корпусная мебель в квартире, сливается со стенами.

Кухня

Гарнитур построили Г-образно. В верхнем ярусе закрытые шкафы разбавили открытыми секциями, одна из которых обращена в сторону гостиной. В нижнем ряду предусмотрели бар.

Зону фартука оформили терракотовой штукатуркой, а сверху покрыли лаком. То же покрытие использовали для фасада, который маскирует скрытую нишу с полками.

Продолжением гарнитура стала барная стойка, которая частично лежит на рабочей поверхности. Плетеные стулья вносят нотки стилистики бохо.

Спальня

В спальне скомбинировали краску серо-коричневого оттенка и ту же штукатурку, что и на фартуке в кухне. Зеркало у окна помогает отражать в комнату больше естественного света. Разное число подвесов по бокам от кровати разбивает привычную симметрию.

В комнате запланировали высокий встроенный шкаф, фасады которого не отличить от стен. Это основная система хранения в квартире.

-8

Прихожая

Входную дверь оформили в цвет стенам, как и дверь скрытого монтажа, ведущую в санузел. Компактную подвесную консоль вмонтировали между двумя зеркалами, а для более масштабного хранения предусмотрели шкаф. Его сделали частью единой мебельной конструкции с кухонным гарнитуром. В нишу на границе санузла и спальни встроили деревянный стеллаж.

Санузел

В санузле использовали краску и два вида керамогранита: под дерево и с рисунком терраццо. Тумба под раковину получилась очень вместительной, внутри одной из секций скрыли стиральную машину. А в углу выделили место для достаточно глубокого встроенного шкафа. Его открытые секции дополнили подсветкой. Черные элементы — профили душевой, смесители и аксессуары — помогают внести контраст.

Интересные мнения в комментариях приветствуются. Если материал понравился — ставь лайк!

🖤 Филдс — это не только блог на Дзене, но и магазин дизайнерских предметов интерьера. Заходите на сайт, чтобы увидеть мебель, которую дизайнеры выбирают для своих проектов.