Добавить в корзинуПозвонить
Найти в Дзене
Дизайн интерьера

План розеток

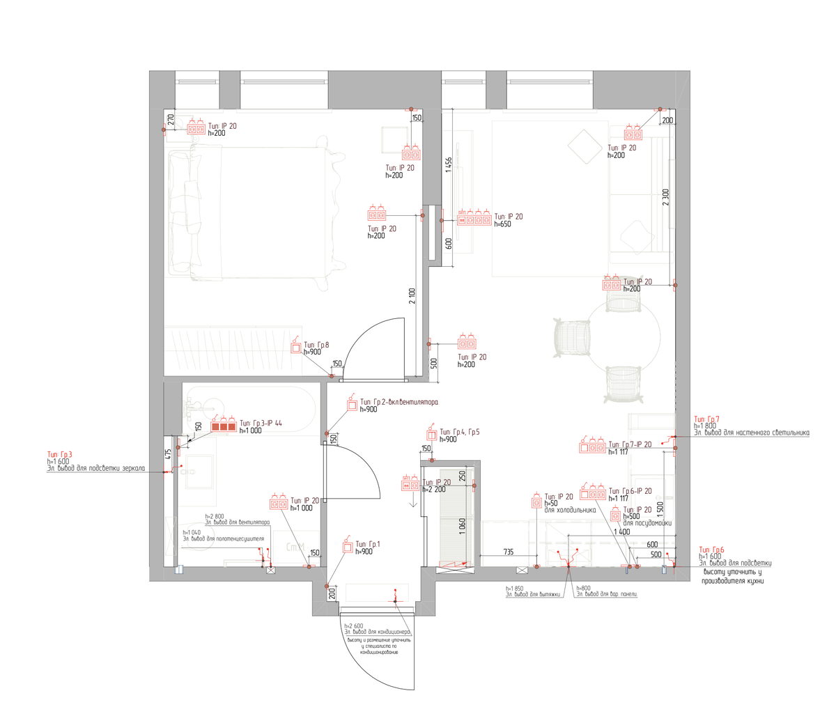
После создания плана с расположением выключателей, я готовлю план с размещением розеток. Для этого необходимо сначала составить список помещений и определить, какая техника потребует розеток. Обычно, при входе в гардероб или шкаф, на высоте 2200 мм от пола, устанавливаются розетки для подключения роутера. Также, если у вас есть робот-пылесос, предусматривается место для его базы и соответствующая розетка. Для проводного пылесоса, при входе в каждое помещение, необходимо предусмотреть розетку на высоте 200-300 мм от пола. В зоне телевизора розетки могут размещаться внутри тумбы под телевизором, над ней и за самим телевизором. Если телевизор установлен на стене и требуется подключение дополнительного оборудования, то провода укладываются в кабель-канал. Установка кабель-канала выполняется на этапе отделочных работ. В кухне розетки, относящиеся к рабочей поверхности, устанавливаются на высоте 150-200 мм от столешницы. Розетки для измельчителя и посудомоечной машины размещаются под р

После создания плана с расположением выключателей, я готовлю план с размещением розеток. Для этого необходимо сначала составить список помещений и определить, какая техника потребует розеток.

Обычно, при входе в гардероб или шкаф, на высоте 2200 мм от пола, устанавливаются розетки для подключения роутера. Также, если у вас есть робот-пылесос, предусматривается место для его базы и соответствующая розетка.

-3
Пример расположения робота-пылесоса (центр установки розетки будет 60мм от пола сбоку)
Пример расположения робота-пылесоса (центр установки розетки будет 60мм от пола сбоку)

Для проводного пылесоса, при входе в каждое помещение, необходимо предусмотреть розетку на высоте 200-300 мм от пола.

-5

В зоне телевизора розетки могут размещаться внутри тумбы под телевизором, над ней и за самим телевизором. Если телевизор установлен на стене и требуется подключение дополнительного оборудования, то провода укладываются в кабель-канал. Установка кабель-канала выполняется на этапе отделочных работ.

Пример расположения розеток и подключения через кабель-канал
Пример расположения розеток и подключения через кабель-канал

В кухне розетки, относящиеся к рабочей поверхности, устанавливаются на высоте 150-200 мм от столешницы. Розетки для измельчителя и посудомоечной машины размещаются под раковиной на высоте 450-600 мм. Остальные розетки для кухонной техники, расположенной ниже, размещаются в цоколе кухни.

Если планируется установка настольных ламп на подоконнике или подвешивание гирлянды на окне, необходимо предусмотреть розетки в откосе окна.

В спальне, розетки возле тумбочек можно размещать, например, внизу, чтобы скрыть провода и зарядные устройства. А выключатели устанавливаются над тумбочкой. Однако при этом следует учитывать габариты мебели, которая будет размещена в комнате.

Пример расположения розеток возле кровати , внизу под столиком.
Пример расположения розеток возле кровати , внизу под столиком.

Также не забывайте в ванной комнате учесть количество розеток для электрических зубных щёток, фена и другого оборудования!