Найти в Дзене

Компактный дом с необычной геометрией для большой семьи

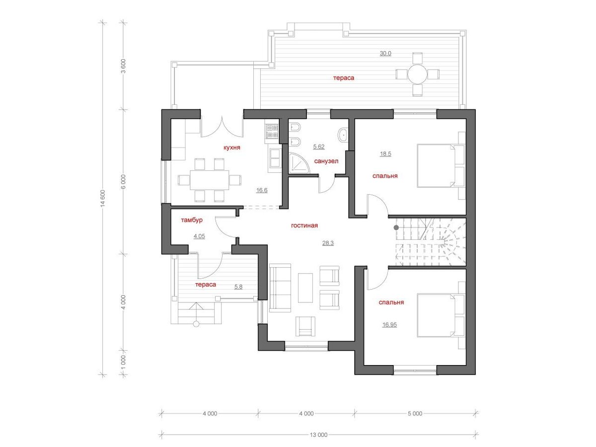
Большие семьи зачастую сталкиваются с проблемой выбора комфортабельного дома, в котором каждый член семьи сможет наслаждаться простором комнат, удобством планировки и эстетикой фасада. Проект дома «Кадевара» разработан специально для тех, кто уже отчаялся найти идеальный вариант! Семья из 6-10 человек по достоинству оценит внутреннее пространство: в этом коттедже предусмотрено 5 больших и светлых спален и два санузла, гарантирующих комфортное проживание каждому домочадцу. Кухня, гостиная и терраса создают все условия для полноценного отдыха в кругу семьи и друзей. Современный фасад, обшитый натуральным камнем и облицовочным кирпичом, привлекает внимание своей необычной геометрией. Особый шик внешнему облику придают многоскатная крыша сложной конфигурации, покрытая черепицей, и уникальный балкон треугольной формы с колонной. Площадь дома - 177 кв.м.
Габариты - 14.6 x 13.0 м. Планировка «Кадевара» — это удивительная семейная крепость, которая подарит вашей семье непередаваемый комфор

Большие семьи зачастую сталкиваются с проблемой выбора комфортабельного дома, в котором каждый член семьи сможет наслаждаться простором комнат, удобством планировки и эстетикой фасада.

Проект дома «Кадевара» разработан специально для тех, кто уже отчаялся найти идеальный вариант!

Семья из 6-10 человек по достоинству оценит внутреннее пространство: в этом коттедже предусмотрено 5 больших и светлых спален и два санузла, гарантирующих комфортное проживание каждому домочадцу. Кухня, гостиная и терраса создают все условия для полноценного отдыха в кругу семьи и друзей.

Современный фасад, обшитый натуральным камнем и облицовочным кирпичом, привлекает внимание своей необычной геометрией. Особый шик внешнему облику придают многоскатная крыша сложной конфигурации, покрытая черепицей, и уникальный балкон треугольной формы с колонной.

Площадь дома - 177 кв.м.
Габариты - 14.6 x 13.0 м.

Планировка

«Кадевара» — это удивительная семейная крепость, которая подарит вашей семье непередаваемый комфорт и уют.

Специалисты компании Stone Wood House всегда готовы построить этот дом специально для Вас на максимально выгодных условиях с гарантией 5 лет.

Чтобы узнать стоимость проекта и строительства дома, а также более подробные его характеристики проходите по ссылке => проект «Кадевара». Оставляйте заявку или связывайтесь с нашими менеджерами.

Больше проектов Вы можете увидеть на нашем сайте stone-wood-house.ru

Если среди просмотренных вариантов Вы так и не нашли подходящий проект дома, наши архитекторы готовы создать индивидуальный проект, предусматривающий все Ваши задумки и пожелания.

⭐ Мы спроектируем и построим «под ключ» дом Вашей мечты высокого качества!

☎ Позвоните нам для консультации: 8-965-199-61-04

#проектдома #проектирование #коттедж #строимдом #строительствоиремонт #ремонт #недвижимость #строительство #загороднаянедвижимость #проекты загородного дома #проект частный дом #загородные дома проекты #проектдома #двухэтажный дом #проектдвухэтажногодома #резиденция #коттедж #архитектор #дизайн #проектодноэтажногодома # дома с террасами #загородныйдом