Найти в Дзене
ЭТО ВАШ ИНТЕРЬЕР

Женщина в возрасте показала, свою "сталинку", в которой недавно сделала ремонт — получился шикарный интерьер в стиле советского ар-деко

Наша героиня вместе с мужем приобрели эту квартиру недавно. Они хоть и возрастные, но при всем при этом очень активная пара. Они живут в другом городе, а в столицу приезжают к детям и по рабочим моментам (у них свой бизнес). И эта квартира покупалась для временных наездов, чтобы каждый раз при приезде в Москву не останавливаться в гостинице. А дом, в котором находится эта квартира, весьма примечательный — в нем раньше проживали очень известные личности, такие как Твардовский, Рокоссовский и многие другие. Проект Прихожая После перепланировки прихожая стала единым пространством с гостиной. Для пола выбрали каменно-полимерную плитку, которая имитирует паркет "ёлочку". Стены же оформлены декоративной штукатуркой с эффектом бархата. Слева от входа встал большой пуф и угловое зеркало, а с другой стороны от входной двери расположился большой шкаф для одежды. Так же здесь появились шторы, которые при необходимости изолируют входную зону от гостиной. Кухня-гостиная Кухню и гостиную было реш
Оглавление

Наша героиня вместе с мужем приобрели эту квартиру недавно. Они хоть и возрастные, но при всем при этом очень активная пара. Они живут в другом городе, а в столицу приезжают к детям и по рабочим моментам (у них свой бизнес). И эта квартира покупалась для временных наездов, чтобы каждый раз при приезде в Москву не останавливаться в гостинице.

А дом, в котором находится эта квартира, весьма примечательный — в нем раньше проживали очень известные личности, такие как Твардовский, Рокоссовский и многие другие.

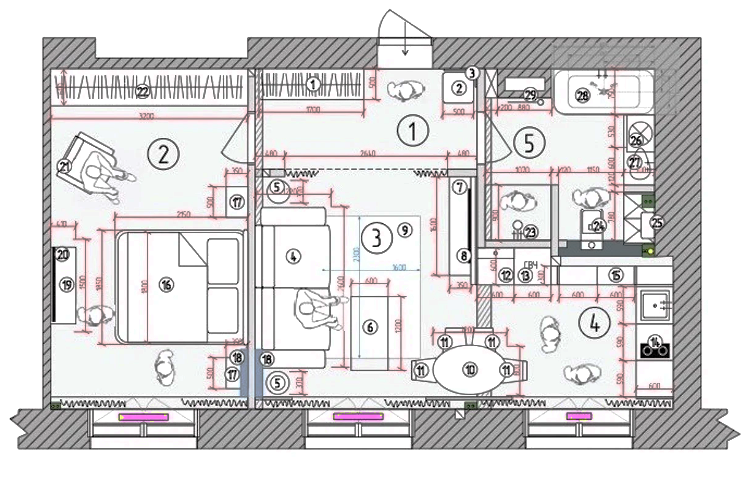
Проект

  • Местоположение: г. Москва
  • Площадь квартиры: 54 кв. м
  • Владельцы: семейная пара

Прихожая

После перепланировки прихожая стала единым пространством с гостиной. Для пола выбрали каменно-полимерную плитку, которая имитирует паркет "ёлочку". Стены же оформлены декоративной штукатуркой с эффектом бархата. Слева от входа встал большой пуф и угловое зеркало, а с другой стороны от входной двери расположился большой шкаф для одежды. Так же здесь появились шторы, которые при необходимости изолируют входную зону от гостиной.

Кухня-гостиная

Кухню и гостиную было решено объединить и создать одно просторное помещение. После прихожей вы попадаете в красивую гостиную. Здесь встал элегантный диван, а напротив него разместили стильную консоль и большой телевизор. Стены дополнили картинами, молдингами и зеркалом.

На стыке между кухонной зоной и гостиной организовали столовую группу с синими стульями, которые являются ярким цветовым пятном в помещении. Обеденный стол на большой ножке тоже является неким арт-объектом. У стены расположился вместительный кухонный гарнитур с функциональными пеналами. Нижние фасады выполнены в светло-бежевом оттенке, а верхние в молочном оттенке.

Спальня

Справа от входа встал вместительный шкаф для одежды с зеркальной вставкой. Посередине комнаты находится большая кровать с мягким изголовьем. Над изголовьем повесили зеркало, а стену напротив кровати оформили фреской с растительным мотивом.

Ванная комната

Ванная комната получилась очень просторной, светлой и элегантной. Вся ванная оформлена керамогранитом под мрамор. Благодаря внушительной площади, здесь удалось разместить всё необходимое и даже больше. Хозяева даже не стали выбирать между ванной и душем, а просто расположили здесь и то и другое.

Если вам понравилась статья, то не забудьте поставить лайк и подписаться, чтобы не пропустить новый материал!

Так же пишите в комментариях, что вам понравилось в этом проекте, а что вызывает сомнения.

Если вам интересна тематика дач, загородных домов и сада, то смело заходите на мой второй новый канал)