Добавить в корзинуПозвонить
Найти в Дзене

Детективная история для архитекторов «Предшественница»

Итак, рекомендация… сериальчик на вечер  «Предшественница» Спросите, что он делает в моей ленте? А я вам отвечу. Сериал детективный. И с первых же минут просмотра начинаешь ломать голову: как блин устроен этот великолепный дом?!  Кто и кого убил отходит на второй план. Режиссер намеренно не показывает нам полноценных планов, чтоб мы так и не поняли, что это за дом и какого он размера.  Ну что же, так даже интереснее. Включаем комп, загружаем архикад… погнали. Через час имеем следующее.  Дом в 300 квадратов. Явно рассчитанный на одного-двух человек, не страдающих боязнью незамкнутых пространств… Мне дом очень нравится. Но смогла ли бы я там жить? Спать в незакрываемой спальне? Ну хз. С другой стороны, а от кого ее закрывать? Если я живу одна🤔 Минуточку, а как же приведения? 👻 Спросите, чьи? Ну как чьи! Да хотя бы девушки, что свернула шею на парящей лестнице без перил🤣😅🥹 и чье убийство мы и расследуем в сериале отвлекаясь на умопомрачительные интерьеры! Ну и на прощание,

Итак, рекомендация… сериальчик на вечер 

«Предшественница»

Спросите, что он делает в моей ленте? А я вам отвечу. Сериал детективный. И с первых же минут просмотра начинаешь ломать голову: как блин устроен этот великолепный дом?! 

Кто и кого убил отходит на второй план. Режиссер намеренно не показывает нам полноценных планов, чтоб мы так и не поняли, что это за дом и какого он размера. 

Ну что же, так даже интереснее. Включаем комп, загружаем архикад… погнали.

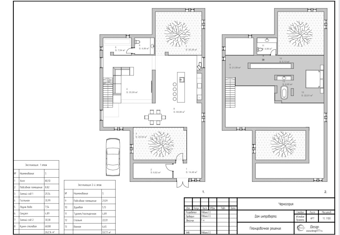
Через час имеем следующее. 

Дом в 300 квадратов.

-2

Явно рассчитанный на одного-двух человек, не страдающих боязнью незамкнутых пространств…

Мне дом очень нравится. Но смогла ли бы я там жить? Спать в незакрываемой спальне? Ну хз. С другой стороны, а от кого ее закрывать? Если я живу одна🤔

Минуточку, а как же приведения? 👻 Спросите, чьи? Ну как чьи! Да хотя бы девушки, что свернула шею на парящей лестнице без перил🤣😅🥹 и чье убийство мы и расследуем в сериале отвлекаясь на умопомрачительные интерьеры!

Ну и на прощание, немножечко эстетики. 

Залипательные интерьеры с лестницей-убийцей, узкими окнами-бойницами, камнем, бетоном и стеклом.

Дом и правда замечательный! 

Мысленно прожила в нем целую жизнь, сошла с ума и убилась на лестнице… и не жалею! Без шуток🤓

Потому что красота требует жертв🫠

Кино рекомендую🍿

-3

-4

-5

P.S. Ну я кое-что поменяла в доме. Но вряд ли вы поймете что, даже если кино посмотрели😋