Добавить в корзинуПозвонить
Найти в Дзене

Практичный дом фахверк "Ольденбург" 253 м2

Изысканный фахверковый дом "Ольденбург" с двускатной кровлей. Этот дом обладает уникальной архитектурой и интерьером, который призван создать комфорт и стиль. На первом этаже имеется просторная прихожая, которая оборудована вместительным гардеробом, который поможет вам организовать прием гостей и хранение одежды и обуви. Большая гостиная с двухсветным пространством, где свет и воздух дарят ощущение простора и свободы. Помимо этого, на первом этаже находятся кухня-столовая с выходом на террасу, кладовая для хранения продуктов и посуды, а также две уютные спальни. Второй этаж имеет просторный холл с панорамными видами благодаря двусветному пространству. Здесь вы также найдете две спальни, которые разделяют общий санузел. И, конечно же, мастер-спальню с просторным гардеробом и приватной ванной комнатой. Этот фахверковый дом с двускатной кровлей предлагает комфорт и роскошь, и подарит вам возможность насладиться свободой и красотой каждого уголка вашего будущего дома. ↓↓ В телеграм-
Дом по проекту
Дом по проекту

Изысканный фахверковый дом "Ольденбург" с двускатной кровлей. Этот дом обладает уникальной архитектурой и интерьером, который призван создать комфорт и стиль.

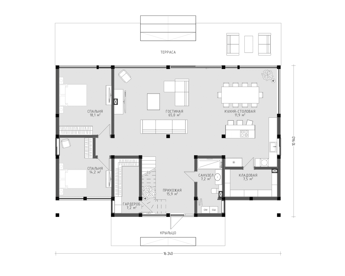
На первом этаже имеется просторная прихожая, которая оборудована вместительным гардеробом, который поможет вам организовать прием гостей и хранение одежды и обуви.

первый этаж
первый этаж

Большая гостиная с двухсветным пространством, где свет и воздух дарят ощущение простора и свободы. Помимо этого, на первом этаже находятся кухня-столовая с выходом на террасу, кладовая для хранения продуктов и посуды, а также две уютные спальни.

второй этаж
второй этаж

Второй этаж имеет просторный холл с панорамными видами благодаря двусветному пространству. Здесь вы также найдете две спальни, которые разделяют общий санузел. И, конечно же, мастер-спальню с просторным гардеробом и приватной ванной комнатой.

Этот фахверковый дом с двускатной кровлей предлагает комфорт и роскошь, и подарит вам возможность насладиться свободой и красотой каждого уголка вашего будущего дома.

↓↓

В телеграм-канале показываем нашу работу

______

Приглашаем в офис и на демонстрационные экскурсии! Оставляйте заявки на сайте!

sales@swsgroup.ru

+7(495) -118-28-18

Ставьте лайк и подписывайтесь на нас!

Больше проектов на нашем сайте swsgroup.ru

Фахверк
4837 интересуются